994 objekt

Prodej bytu 1+kk 46 m² Dusíkova, Brno - Lesná
Prodej bytu 1+kk 46 m² Dusíkova, Brno - Lesná Brno, Brno-město, Lesná, Dusíkova, 23
5 940 000 Kč
129 130 Kč na m²
1-pokoj 46 m²

Ve výhradním zastoupení majitele vám nabízíme slunný byt 1+kk v 6. patře moderního cihlového domu na Lesné. K bytu náleží prostorný balkon, sklep a parkovací stání pod domem. Představte si bydlení, kde se klid, zeleň a pohodlí potkávají s městským komfortem. Právě takové místo nabízí Lesná - jedna z nejžádanějších brněnských čtvrtí, která si získala pověst příjemného, bezpečného a moderního místa k životu. A právě zde, na ulici Dusíkova, se nachází slunný byt 1+kk o rozloze cca 40 m², umístěný v 6. patře moderního cihlového domu s výtahem. Byt působí světlým a útulným dojmem. Dispozice zahrnuje obývací prostor s kuchyňským koutem, koupelnu s vanou a toaletou, vstupní chodbu s úložným prostorem a balkon s výhledem do klidného okolí. Komfort bydlení doplňují elektricky ovládané žaluzie, které umožňují snadno regulovat světlo i soukromí podle aktuální potřeby. Součástí prodeje je také sklepní kóje cca 2m² a vlastní parkovací stání v suterénu domu. Byt je v současnosti pronajatý spolehlivému nájemníkovi s platnou smlouvou ještě na další dva roky, což z něj činí skvělou investiční příležitost s okamžitým výnosem. Dům byl kolaudován v roce 2009 a patří mezi udržované a klidné rezidence. Lokalita Lesná nabízí vše potřebné - obchody, kavárny, restaurace, sportoviště i zastávky MHD jsou doslova pár kroků od domu. A přitom jste stále obklopeni zelení. Tento byt představuje jistou a dlouhodobě hodnotnou investici. Zaujal vás tento byt? Ráda vám ho ukážu na osobní prohlídce - zavolejte mi a domluvte si termín. Pro komunikaci uvádějte evidenční číslo zakázky N114744.

Prodej bytu 3+1 65 m² Kleštínek, Brno - Jehnice
Prodej bytu 3+1 65 m² Kleštínek, Brno - Jehnice Brno, Brno-město, Jehnice, Kleštínek
obchodovatelné
3-pokoj 65 m² 2 tento

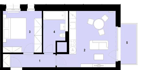
Dovoluji si Vám nabídnout v výhradním zastoupení k prodeji byt o dispozici 3+1 v klidné části města Brna v Jehnicích. Tento jednopodlažní byt se nachází ve druhém nadzemním podlaží menšího cihlového bytového domu se sedlovou střechou. Dům i byt je v dobrém stavu a je ideální volbou pro ty, kteří hledají komfortní a klidné bydlení s dobrou dostupností do centra města. Byt je v osobním vlastnictví. Dispozice bytu: z předsíně (8m2) je napravo vstup do 2 pokojů (15m2 a 17m2), koupelny a toalety. Nalevo z předsíně je vstup do pokoje (12 m2) a kuchyně (6,5m2). Tyto 2 místnosti se dají zmodernizovat vybouráním příčky jako moderně řešený otevřený prostor s kuchyňskou linkou. V pokojích napravo jsou položeny parkety a na nich je nový koberec. V předsíni je linoleum i v pokoji nalevo, v kuchyňi, koupelně a WC je položena dlažba. Dole v prvním podzemním podlaží (suterénu) k bytu patří 2 prostory - první je sklep (cca 3m2) a větší prostor -úložný nebo nebytový prostor s oknem do dvora je o velikosti cca 16m2. Tento prostor je natolik velký, že může složit jako pracovna, dílna atd. K bytu patří též podíl vlastnictví v půdní části bytového domu. Dům je po revitalizaci - zateplení fasády, plastová okna, nové stupačky. Velkou devizou je klidná lokalita v blízkosti přírody a s dobrou dostupností do centra Brna - 2 zastávka z městské části Řečkovice je přímo pod domem. Základní i mateřská škola se sportovištěm se nachází v těsné blízkosti bytového domu. Parkování i pro více aut je bezplatné přímo na pozemku, který je vedle bytového domu a na který mají příjezd a přístup pouze majitelé a uživatelé bytů v předmětném bytovém domě. Tuto velkou výhodu, hezký výhled do zeleně, klidné prostředí odskočené od silniční komunikace a možnost „ hlídat“ malé děti, které si hrají u domu přímo z okna, poznáte nejlépe na osobní prohlídce bytu a jeho blízkého okolí. Prohlídky jsou možné po předchozí domluvě. Pro více informací o této nemovitosti nebo sjednání prohlídky mne prosím kontaktujte

Prodej bytu 1+kk 31 m² Jírova, Brno - Líšeň
Prodej bytu 1+kk 31 m² Jírova, Brno - Líšeň Brno, Brno-město, Líšeň, Jírova
4 190 000 Kč
135 161 Kč na m²
1-pokoj 31 m² 6/8 tento

Nabízíme k prodeji útulný byt o dispozici 1+kk o celkové ploše 31,25 m², nacházející se v žádané lokalitě Brno-Líšeň, na ulici Jírová 2191/1. Byt je situován v panelovém domě, který prošel základní údržbou a je v dobrém technickém stavu. Popis bytu Byt prošel částečnou rekonstrukcí - byla instalována nová kuchyňská linka, položena dlažba a podlaha, a provedena čerstvá výmalba. Koupelna je původní - umakartové jádro, což umožňuje novému majiteli přizpůsobit si ji podle vlastních představ. K bytu náleží sklepní kóje o velikosti cca 2 m², ideální pro uskladnění sezónních věcí. Lokalita Byt se nachází v klidné části Brna-Líšně s výbornou občanskou vybaveností - v okolí se nachází obchody, restaurace, školka, škola i zastávka MHD. Výhodou je také blízkost přírody, například Mariánské údolí, které je ideálním místem pro procházky či sportovní aktivity. Na bytě vázne zástavní právo ve prospěch banky (hypotéka současných majitelů) - převod bude řešen standardním způsobem prostřednictvím advokátní úschovy. Byt je možné financovat hypotečním úvěrem. V případě zájmu o prohlídku prosím zaslat email makléři.

Prodej bytu 1+kk 28 m² Francouzská, Brno - Zábrdovice
Prodej bytu 1+kk 28 m² Francouzská, Brno - Zábrdovice Brno, Brno-město, Zábrdovice, Francouzská, 15
3 960 000 Kč
141 429 Kč na m²
1-pokoj 28 m² 4/4 tento

Na prodej krásný půdní byt ve 4. NP v plně zrekonstruované budově! Hledáte útulný a světlý prostor? Tento půdní byt o rozloze 27,6 m² je ideální volbou pro single, pár nebo investici do menšího bytu s vysokým výnosem. Nachází se na 4. nadzemním podlaží v budově, která prošla kompletní renovací. Byt nabízí útulný obytný prostor. Otevřený layout s dřevěnými trámovými stropy, které dodávají rustikální kouzlo v moderním provedení. Světlý interiér s velkými střešními okny (skylighty) pro hojnost přirozeného světla po celý den. Ložnice/denní místnost s výhledem do nebe, ideální na relaxaci nebo home office. Koupelna je kompaktní, ale stylová - sprchový kout s posuvnými dveřmi, umyvadlo, WC. Kuchyňský kout je připravený na instalaci spotřebičů, s dostatkem místa na vaření a jídlo. Byt je bez zbytečných kompromisů. Ideální pro mladého pracujícího profesionála nebo jako první nemovitost. Jednotka se prodává do osobního vlastnictví. Předpokládané náklady na bydlení 2.500, Kč + spotřeba el. energie. V jednotce je příprava pro klimatizaci a možnost kompletního napojení na centrální jednotku za poplatek. Dům se nachází v rozvíjející se lokalitě s výbornou dostupností do centra města a orientace do vnitrobloku poskytuje klidné a pohodlné bydlení. Veškerá občanská vybavenost obchodů, kaváren a restaurací, je dostupná pěšky, krátkou jízdou kole nebo jednoduše 2 zastávky tramvají. Zároveň je tato oblast známá svým dynamickým rozvojem, který zhodnotí Vaši finanční investici do nemovitosti.

Prodej bytu 2+kk 50 m² Koliště, Brno - Trnitá
Prodej bytu 2+kk 50 m² Koliště, Brno - Trnitá Brno, Brno-město, Trnitá, Koliště, 73
6 200 000 Kč
124 000 Kč na m²
2-pokoj 50 m² 3/4 tento

Nabízíme k prodeji moderní podkrovní mezonetový byt o dispozici 2+kk po celkové renovaci na rohu ulic Koliště a Křenová. Byt je prostorný a je skvělou investiční volbou pro krátkodobý i dlouhodobý pronájem anebo poskytne nový domov těm, kteří jsou rádi v centru dění - v centru města. Nachází se ve 3. NP domu po kompletní renovaci. Celková plocha bytu je 49,6 m². Vstupní chodba poskytuje praktický přístup do koupelny s WC a obytného prostoru, kde se nachází kuchyňská a obývací část se schodištěm do vrchní části. V horní části se pak rozkládá ložnice. Dispozičně je byt velmi dobře řešený s dostatkem přirozeného světla. Byt nabízí příjemné prostředí jak pro jednotlivce, tak i pro pár, který hledá stylové a praktické bydlení v centru města. Samozřejmostí je i příprava na klimatizaci pro větší komfort v letních měsících. K bytu náleží sklepní kóje. Předpokládané měsíční náklady na bydlení: 3 000 Kč + spotřeba elektrické energie. Výhodou tohoto bytu je jeho flexibilita - může být vynikající investiční příležitostí pro krátkodobý či dlouhodobý pronájem nebo dynamickým místem pro vlastní bydlení v centru městském prostředí. Dům se nachází pár minut od centra města Brna. Hlavní vlakové nádraží je vzdáleno cca 200 m, autobusové nádraží na ulici Benešova cca 250 m. Zastávka tramvaje s frekventovanými linkami (č. linky 8, 9, 10) je kousek od domu. Daná lokalita prochází postupnou modernizací - dům se nachází v bezprostřední blízkosti nové výstavby „Dornych“ a Galerie Vaňkovka. Pro více informací či prohlídku nás kontaktujte!

Prodej bytu 3+kk 56 m² Pražákova, Brno - Horní Heršpice
Prodej bytu 3+kk 56 m² Pražákova, Brno - Horní Heršpice Brno, Brno-město, Horní Heršpice, Pražákova, 32
8 490 000 Kč
117 917 Kč na m²
3-pokoj 72 m² 2/4 tento

Nabízíme prostorný a světlý byt 3+kk o 55m2 v 2NP v bytovém domě na ulici Pražákova, který je skvělou volbou pro mladou rodinu. Byt má promyšlenou dispozici a nabízí dostatek soukromí i prostoru pro společné chvíle. Po vstupu do praktického zádveří najdete vlevo samostatnou toaletu. Hlavní obytný prostor s kuchyní (24 m²) je ideální pro setkávání s rodinou a přáteli. Z obývací části je vstup do nadstandardní koupelny s walk-in sprchovým koutem a dále do dvou samostatných ložnic. Větší ložnice má přímý vstup na krásnou 16m² terasu orientovanou jižně do klidné zahrady - ideální místo pro relaxaci nebo dětské hry. Právě teď máte jedinečnou možnost pořídit byt v bytovém domě Pražákova za zahajovací ceny. Vybavení bytu: - elektronicky ovládané vchodové dveře pro maximální pohodlí a bezpečnost - elektrické podlahové topení zajistí rovnoměrné rozložení tepla v každé místnosti a přispívá k úspornějšímu vytápění - rekuperace pro neustálý přísun čerstvého vzduchu při zachování teplotního komfortu. Snižuje vlhkost, znamená také nižší náklady na vytápění díky zpětnému získávání tepla - předokenní žaluzie = větší soukromí, stín a optimální teplotu v interiéru v létě i v zimě. - podlahová krytina SPC (velmi odolný materiál, který kombinuje keramickou vrstvu s linoleem, bezspárová technologie pokládky - nepoškozuje nábytek, lepší tepelná vodivost) - designové obklady a zařizovací předměty prémiových značek Kaldewei, Villeroy & Boch. Celý dům je pečlivě připraven a promyšlen do nejmenších detailů tak, aby Vám nabídl přesně takové bydlení, o jakém jste snili. Energeticky úsporný bytový dům Pražákova je umístěn v uzavřeném areálu a disponuje pokročilými inteligentními technologiemi. K dispozici jsou parkovací stání, garážová stání i garáže a sklepní kóje. Velkou výhodou je blízkost univerzitního Campusu v Bohunicích, Spielberk office centra, a dobrá dostupnost na D1, D2 i do centra Brna. Bytový dům bude osazen inteligentní technologií vstupu. Zapomeňte na klíče, otevřete si pomocí čipu, aplikace nebo rozpoznáním obličeje. Dům nabízí zvýšenou bezpečnost díky omezení neautorizovaného vstupu. Pokud čip někde ztratíte, jednoduše ho přes aplikaci zablokujete. Stavba zahájena, dokončení projektu v červenci 2026. Pokud Vám tento byt nevyhovuje, ozvěte se, v projektu jsou k dispozici větší i menší byty. Rádi se s Vámi sejdeme u kávy a osobně Vám projekt v detailu odprezentujeme.

Prodej bytu 1+1 44 m² Horácké náměstí, Brno - Řečkovice
Prodej bytu 1+1 44 m² Horácké náměstí, Brno - Řečkovice Brno, Brno-město, Řečkovice, Horácké náměstí, 4
5 790 000 Kč
118 163 Kč na m²
1-pokoj 49 m² 12/13 tento

Prodej bytu v osobním vlastnictví 1+1, 44,1 m2 + lodžie 3,8 m2, Brno-Řečkovice, ul. Horácké náměstí, atraktivní a velmi klidná lokalita. Velmi prostorný byt je západně orientován s nádherným, panoramatickým výhledem na Brno, je situován ve 12.NP ve třináctipodlažním panelovém domě s moderními výtahy, celková plocha 44,1 m2 + lodžie 3,8 m2. Byt je v udržovaném stavu, elektřina v bytě po rekonstrukci, nové podlahy. Původní bytové jádro. Dispozice bytu: • prostorná kuchyně s kuchyňskou linkou, plynovým sporákem a spíží o celkové ploše 12 m2 • prostorný pokoj 18.70 m2, který díky své velikosti umožňuje spojení obývacího pokoje s ložnicí • koupelna 2.60 m2 • samostatné WC 0.90 m2 • předsíň 7.10 m2 • komora 2.80 m2 • lodžie 3.80 m2 • sklep 1.70 m2 Dům je po celkové revitalizaci. Nízké měsíční náklady na bydlení 2.973,- Kč + spotřeba elektřiny cca 700,- Kč. Velmi příjemná lokalita pro bydlení s veškerou občanskou vybaveností v nejbližším dosahu a jen pár kroků od Zamilovaného hájku ("Zamilec"), oblíbeného místa pro vycházky s romantickými zákoutími na okraji města, které přímo vybízí k procházkám, venčení mazlíčků i sportovnímu využití. Lokalita je velice dobře dostupná z centra Brna, místní ulice obsluhují denní i noční linky MHD. Veškerá občanská vybavenost v dosahu - škola, školka, městský úřad, supermarket Billa, pošta, večerka, lékárna, ordinace, sportovní hřiště, krytý bazén a ostatní služby. Zastávka MHD tram cca 600 m, bus cca 300 m. Bezproblémové parkování u domu. Byt je ihned volný. Možnost financování hypotečním úvěrem. Pro více informací volejte přímo makléře nabídky.

Prodej bytu 3+1 69 m² Kuršova, Brno - Bystrc
Prodej bytu 3+1 69 m² Kuršova, Brno - Bystrc Brno, Brno-město, Bystrc, Kuršova
8 490 000 Kč
114 730 Kč na m²
3-pokoj 74 m² 5/8 tento

Ve výhradním zastoupení majitele nabízíme k prodeji byt OV 3+1 Brno Bystrc, ul. Kuršova, krásná a klidná lokalita u brněnské přehrady s výhledem do zeleně a na lesy. Byt je po kompletní celkové rekonstrukci, celé nové jádro, koupelna, kuchyně, veškeré nové rozvody v bytě (elektřina, voda a odpady), klimatizace, šatna a lodžie. Dům je po celkové revitalizaci - nová střecha se zateplením, fasády se zateplením, plastová okna s termoizolačními dvojskly, nové rozvody IS v domě, nový výtah, celé sklepy jsou čisté a suché. Situováno v panelovém domě v 5.NP/8 s výtahem. Orientace bytu je na východ (2 dva pokoje a kuchyně) a jedna ložnice na sever. Byt je po kompletní rekonstrukci 2021, vše jako nové - přestavbou bytového jádra byla zvětšena koupelna. Koupelna je nyní s velkým sprchovým koutem, umyvadlem a vestavěnou policovou skříní. WC je samostatné s umyvadlem a místem pro pračku a sušičku. Komplet nová kuch.linka na míru se spotřebiči značky Whirlpool (indukční vaná deska, el.trouba, mikrovlnka, myčka, lednice s mrazákem). V celém bytě jsou komplet nové plovoucí podlahy, nové vnitřní obložkové zárubně a dveře, vyspravené omítky, komplet nový rozvod elektřiny, vody a odpady, klimatizace je umístěná v kuchyni a bez problému vychladí sousední ložnici a obývací pokoj. OV 3+1, CP 74 m2 (byt 69 m2 + lodžie 3,5 m2 + sklep 1,5 m2). Předsíň, obývací pokoj 18,5 m2, pokoje 12+12 m2, kuchyně 10 m2 se vstupem na lodžii 3,5 m2, koupelna 3,5 m2, samostatné WC 2,5 m2, předsíň, šatna 2 m2, sklep 1,5 m2. V domě je k dispozici společná kolárna (kočárkárna). Nízké náklady na bydlení, měsíční platby (teplo, voda, fond oprav a služby) 4.400 Kč + elektřina v bytě 1.300 Kč. Možnost připojení kabel TV a internetu. Parkování na parkovištích před domem a za domem. Možnost pronájmu garáže dvě ulice od domu. V místě kvalitní občanská vybavenost. Nedaleko domu se nachází škola, školka, pošta i obchody denní potřeby. Do centra Brna je to s MHD cca 25 minut, autem za 15 minut. V bezprostřední blízkosti domu se nachází rozsáhlé lesy pro rekreační i sportovní využití, 10 min klidné chůze je to k vodní nádrži Brněnské přehrady, rekreační oblasti s rozmanitou nabídkou hřišť a sportovišť pro děti i dospělé. Volné dle dohody. Financování Vám zdarma zajistíme, hypotéka s velmi výhodnými podmínkami, ručení kupovaným bytem. Bližší informace vám poskytneme při osobní schůzce v naší RK. Prohlídka dle dohody.

Prodej bytu 3+kk 75 m² Bayerova, Brno - Veveří
Prodej bytu 3+kk 75 m² Bayerova, Brno - Veveří Brno, Brno-město, Veveří, Bayerova, 6
8 200 000 Kč
109 333 Kč na m²
3-pokoj 75 m² 4 tento

Ve výhradním zastoupení majitele nabízíme ke koupi prostorný a velmi příjemný byt o dispozici 3+kk o celkové ploše 75 m², který se nachází ve 3. patře cihlového domu s výtahem na vyhledávané adrese Bayerova ulice, jen pár minut chůze od samotného centra Brna. Díky své dispozici i poloze je ideální jak pro vlastní komfortní bydlení, tak jako zajímavá investiční příležitost k dlouhodobému pronájmu. Dispozice bytu Byt nabízí praktické rozložení místností: - prostorný obývací pokoj s částečně odděleným kuchyňským koutem, - ložnici a druhý pokoj orientované do klidného vnitrobloku, - koupelnu s vanou, druhou koupelnu se sprchovým koutem, - chodbu a šatnu. Kuchyňská linka je vybavená myčkou, lednicí, plynovým sporákem, troubou i digestoří. Vytápění a ohřev vody zajišťuje vlastní plynový kotel, což vám umožní pohodlně regulovat teplo i náklady. Samozřejmostí jsou samostatné měřiče energií a sklepní kóje. Technické informace - plastová okna s dvojskly - dům je zateplený (14 cm polystyren) - nový výtah - velmi nízké provozní náklady Bayerova patří k nejžádanějším adresám v Brně - v těsné blízkosti centra, jen pár minut od Lužánek. V okolí najdete kavárny, restaurace, obchody, školy i kulturní místa. Dopravní dostupnost je skvělá - MHD zastávky i parkování v dosahu. Veškeré informace u daného makléře, prohlídky možné po vzájemné dohodě. Prodávající si vyhrazuje právo vybrat si kupujícího na základě svých zvolených kritérií. Při koupi bytu na investici vám naše společnost může nabídnout následující služby: zajištění vhodného nájemníka, jednorázový či pravidelný úklid, malování, případné vyklízení či stěhování. Rychlý a kvalitní právní, hypoteční a daňový servis (znalecké posudky, PENB) je u nás samozřejmostí.

Prodej bytu 4+kk 109 m² Sirotkova, Brno - Žabovřesky
Prodej bytu 4+kk 109 m² Sirotkova, Brno - Žabovřesky Brno, Brno-město, Žabovřesky, Sirotkova, 38
15 590 000 Kč
143 028 Kč na m²
4-pokoj 109 m² 3 tento

Prodej jedinečného bytu 4+kk s terasou a výhledem na Brno - Sirotkova 38, Brno - Žabovřesky Nabízíme ke koupi naprosto výjimečnou novostavbu prostorného bytu o dispozici 4+kk s krásnou terasou s výhledem na Brno. Byt se nachází ve 2. nadzemním podlaží malého bytového domu na ulici Sirotkova 38 v klidné a vyhledávané části Brna - Žabovřesky. Dispozice: Obývací pokoj: 34 m2 Ložnice: 13.7 m2 Pokoj: 11,4 m2 Dětský pokoj/pracovna: 11,4 m2 Terasa: 11,8 m2 Koupelna 1: 4,8 m2 Koupelna 2: 2,8 m2 Celková plocha bytu vč. terasy 120 m2 Hlavní přednosti bytu: Dispozice 4+kk, ideální pro rodinu nebo náročné jednotlivce Podkrovní charakter s vysokými stropy a střešními okny Velux Dvě koupelny - jedna s vanou a WC, druhá se sprchovým koutem a WC Kvalitní provedení - vinylové podlahy značky Bukoma, moderní obklady a dlažby Hliníková okna s trojskly pro maximální tepelný a zvukový komfort Podlahové topení v celém bytě Krásná terasa s výhledem na Žabovřesky - ideální místo k relaxaci Možnost užívání části zahrady Pouze 4 bytové jednotky v domě - maximální soukromí a klid Bezproblémové parkování přímo před domem (vždy volné místo) Nízké poplatky za správu energie Lokalita: Tichá a žádaná lokalita s výbornou dostupností do centra města. V blízkosti se nachází veškerá občanská vybavenost - školy, školky, obchody, MHD, sportoviště i příroda. Plus provize RK

Prodej bytu 1+kk 43 m² Bratislavská, Brno - Zábrdovice
Prodej bytu 1+kk 43 m² Bratislavská, Brno - Zábrdovice Brno, Brno-město, Zábrdovice, Bratislavská
obchodovatelné
1-pokoj 49 m² 5/9 tento

Bytová jednotka K.5.03 - IHNED k nastěhování. Nabízíme k prodeji moderně navržené jednotky 1+kk o celkové ploše 43,6 m2 s balkonem o velikosti 4,3 m2. Dispozičně jsou jednotky řešeny obývacím pokojem s kuchyňským koutem, koupelnou se sociálním zařízením a předsíní. Jako první v Česku přinášíme koncept klubového bydlení se širokou nabídkou služeb dostupných exkluzivně pro rezidenty (například wellness, fitness, recepci se službou concierge, grill pointy, workout zónu, dobíjecí stanice pro elektromobily, kola a další). V komplexu rezidence Pekárenský dvůr si vybíráte z bytů a apartmánů o dispozicích 1+kk, 2+kk, 3+kk, 4+kk, které z většiny disponují balkonem, terasou, předzahrádkou anebo kombinovaně. Téměř ke všem bytům a apartmánům náleží sklep na uložení potřebných věcí (za povinný příplatek). K jednotkám si můžete navíc přikoupit i prostorné parkovací stání umístěné ve dvoupodlažních podzemních garážích. Pekárenský dvůr představuje rozsáhlý bytový komplex s vlastním klidným vnitroblokem, který nabízí stylové komfortní bydlení v souladu s aktuálními světovými trendy. Architektura domů klade důraz na maximální prosvětlení interiérů, pracuje s vysoce kvalitními a nadčasovými materiály a zároveň odkazuje k industriální minulosti lokality. Skvělé bydlení, v dynamicky se rozvíjející čtvrti brněnských Zábrdovic, podtrhuje docházková vzdálenost historického centra města, výborná dopravní obslužnost, kompletní občanská vybavenost i blízkost oblíbených brněnských parků. Pro více informací o tomto výjimečném projektu nás neváhejte kontaktovat.

Prodej bytu 3+kk 77 m² Bratislavská, Brno - Zábrdovice
Prodej bytu 3+kk 77 m² Bratislavská, Brno - Zábrdovice Brno, Brno-město, Zábrdovice, Bratislavská
obchodovatelné
3-pokoj 123 m² 2/7 tento

AKCE na bytovou jednotku O.2.01 v centru Brna s parkováním ZDARMA - IHNED k nastěhování. Nabízíme k prodeji moderně navržené jednotky 3+kk o celkové ploše 77,8 m2 s terasou o velikosti 43 m2. Dispozičně jsou jednotky řešeny obývacím pokojem s kuchyňským koutem, se dvěma samostatnými ložnicemi, technickou místností nebo šatnou, sociálním zařízením a předsíní. Jako první v Česku přinášíme koncept klubového bydlení se širokou nabídkou služeb dostupných exkluzivně pro rezidenty (například wellness, fitness, recepci se službou concierge, grill pointy, workout zónu, dobíjecí stanice pro elektromobily, kola a další). V komplexu rezidence Pekárenský dvůr si vybíráte z bytů a apartmánů o dispozicích 1+kk, 2+kk, 3+kk, 4+kk, které z většiny disponují balkonem, terasou, předzahrádkou anebo kombinovaně. Téměř ke všem bytům a apartmánům náleží sklep na uložení potřebných věcí (za povinný příplatek). K jednotkám si můžete navíc přikoupit i prostorné parkovací stání umístěné ve dvoupodlažních podzemních garážích. Pekárenský dvůr představuje rozsáhlý bytový komplex s vlastním klidným vnitroblokem, který nabízí stylové komfortní bydlení v souladu s aktuálními světovými trendy. Architektura domů klade důraz na maximální prosvětlení interiérů, pracuje s vysoce kvalitními a nadčasovými materiály a zároveň odkazuje k industriální minulosti lokality. Skvělé bydlení, v dynamicky se rozvíjející čtvrti brněnských Zábrdovic, podtrhuje docházková vzdálenost historického centra města, výborná dopravní obslužnost, kompletní občanská vybavenost i blízkost oblíbených brněnských parků. Pro více informací o tomto výjimečném projektu nás neváhejte kontaktovat.

Prodej bytu 2+kk 48 m² Rybářská, Brno - Staré Brno
Prodej bytu 2+kk 48 m² Rybářská, Brno - Staré Brno Brno, Brno-město, Staré Brno, Rybářská
8 698 000 Kč
181 208 Kč na m²
2-pokoj 48 m² 8 tento

V rámci druhé etapy moderního rezidenčního projektu Rezidence Rybářka nabízíme k prodeji byt o dispozici 2+kk s podlahovou plochou 51,1 m², situovaný v 8. nadzemním podlaží osmipodlažní novostavby. Tento byt je ideální volbou pro ty, kteří hledají komfortní bydlení v centru města. Dispozice bytu zahrnuje vstupní chodbu (8,3 m²), obývací pokoj s kuchyňským koutem (21,5 m²), ložnici (12,8 m²) a koupelnu s WC (5,5 m²). K bytu dále náleží balkon o velikosti 9,5 m², který nabízí příjemné soukromí a prostor pro relaxaci. K jednotce je možné dokoupit sklep za cenu 60.000 Kč/m² a kryté parkovací stání za 790.000 Kč. Rezidence Rybářka se nachází v atraktivní lokalitě nedaleko centra Brna, v těsné blízkosti nově vybudované náplavky u řeky Svratky. Procházky podél vody, ranní běh nebo večerní drink na břehu - to vše máte doslova pár kroků od domova. Lokalita zároveň nabízí výbornou dostupnost do centra města, kompletní občanskou vybavenost a blízkost přírody. Projekt klade důraz na moderní technologie, úsporné řešení vytápění a vysoký standard provedení. Komfortní bydlení doplňuje možnost parkování v podzemní garáži a příjemné prostředí zeleného vnitrobloku. Máte zájem o více informací? Neváhejte nás kontaktovat - rádi vám představíme nejen tento byt, ale i další dostupné jednotky v projektu.

Prodej bytu 1+kk 36 m² Kalová, Brno
Prodej bytu 1+kk 36 m² Kalová, Brno Brno, Brno-město, Kalová
5 160 000 Kč
143 333 Kč na m²
1-pokoj 36 m² 2 tento

Rezidence Mariacela - Vaše komfortní bydlení poblíž nového Jižního centra Brna, v oblasti s dynamickým rozvojem, v bezprostřední blízkosti nového hlavního nádraží a parku Mariacela. Mariacela roste na nároží ulic Dornych a Kalová, Brno. Jedná se o moderní polyfunkční projekt, který spojuje inovativní technologie s pohodlím domova. Díky chytré domácnosti, rekuperaci vzduchu a chlazeným stropům nabízí zdravé a komfortní bydlení po celý rok. Mariacela znamená nejen nižší náklady, ale i dlouhodobě udržitelné bydlení s energetickým štítkem A. Celkem 94 exkluzivních jednotek různých dispozic s balkonem, lodžií či terasou, umístěných v 1.až 9.nadzemním podlaží. Horní patra umožňují krásný výhled na brněnské dominanty. Naopak v přízemí domu je navženo 7 komerčních prostor určených pro obchody či služby. V podzemních patrech, kam vás pohodlně doveze výtah, se pak nachází: - GARÁŽOVÁ STÁNÍ v ceně od 800.000,-Kč, pohodlný vjezd/výjezd zajišťují automatická sekční garážová vrata. V hromadné garáži - příprava na wallbox (el.nabíjení aut) - SKLEPY různých velikostí přístupné i přímo z garážových stání. Výběr sklepu je na kupujícím, cena sklepu není součástí ceny jednotky. Výstavba Rezidence Mariacela zahájena v I.Q/2025, termín dokončení ve IV.Q/2027. Rádi Vám poskytneme podrobnější informace nebo se podívejte na webové stránky projektu rezidencemariacela.

Prodej bytu 2+kk 38 m² Kalová, Brno
Prodej bytu 2+kk 38 m² Kalová, Brno Brno, Brno-město, Kalová
5 721 000 Kč
150 553 Kč na m²
2-pokoj 38 m² 2 tento

Rezidence Mariacela - Vaše komfortní bydlení poblíž nového Jižního centra Brna, v oblasti s dynamickým rozvojem, v bezprostřední blízkosti nového hlavního nádraží a parku Mariacela. Mariacela roste na nároží ulic Dornych a Kalová, Brno. Jedná se o moderní polyfunkční projekt, který spojuje inovativní technologie s pohodlím domova. Díky chytré domácnosti, rekuperaci vzduchu a chlazeným stropům nabízí zdravé a komfortní bydlení po celý rok. Mariacela znamená nejen nižší náklady, ale i dlouhodobě udržitelné bydlení s energetickým štítkem A. Celkem 94 exkluzivních jednotek různých dispozic s balkonem, lodžií či terasou, umístěných v 1.až 9.nadzemním podlaží. Horní patra umožňují krásný výhled na brněnské dominanty. Naopak v přízemí domu je navženo 7 komerčních prostor určených pro obchody či služby. V podzemních patrech, kam vás pohodlně doveze výtah, se pak nachází: - GARÁŽOVÁ STÁNÍ v ceně od 800.000,-Kč, pohodlný vjezd/výjezd zajišťují automatická sekční garážová vrata. V hromadné garáži - příprava na wallbox (el.nabíjení aut) - SKLEPY různých velikostí přístupné i přímo z garážových stání. Výběr sklepu je na kupujícím, cena sklepu není součástí ceny jednotky. Výstavba Rezidence Mariacela zahájena v I.Q/2025, termín dokončení ve IV.Q/2027. Rádi Vám poskytneme podrobnější informace nebo se podívejte na webové stránky projektu rezidencemariacela.

Prodej bytu 1+kk 37 m² Kalová, Brno
Prodej bytu 1+kk 37 m² Kalová, Brno Brno, Brno-město, Kalová
5 488 000 Kč
148 324 Kč na m²
1-pokoj 37 m² 6 tento

Rezidence Mariacela - Vaše komfortní bydlení poblíž nového Jižního centra Brna, v oblasti s dynamickým rozvojem, v bezprostřední blízkosti nového hlavního nádraží a parku Mariacela. Mariacela roste na nároží ulic Dornych a Kalová, Brno. Jedná se o moderní polyfunkční projekt, který spojuje inovativní technologie s pohodlím domova. Díky chytré domácnosti, rekuperaci vzduchu a chlazeným stropům nabízí zdravé a komfortní bydlení po celý rok. Mariacela znamená nejen nižší náklady, ale i dlouhodobě udržitelné bydlení s energetickým štítkem A. Celkem 94 exkluzivních jednotek různých dispozic s balkonem, lodžií či terasou, umístěných v 1.až 9.nadzemním podlaží. Horní patra umožňují krásný výhled na brněnské dominanty. Naopak v přízemí domu je navženo 7 komerčních prostor určených pro obchody či služby. V podzemních patrech, kam vás pohodlně doveze výtah, se pak nachází: - GARÁŽOVÁ STÁNÍ v ceně od 800.000,-Kč, pohodlný vjezd/výjezd zajišťují automatická sekční garážová vrata. V hromadné garáži - příprava na wallbox (el.nabíjení aut) - SKLEPY různých velikostí přístupné i přímo z garážových stání. Výběr sklepu je na kupujícím, cena sklepu není součástí ceny jednotky. Výstavba Rezidence Mariacela zahájena v I.Q/2025, termín dokončení ve IV.Q/2027. Rádi Vám poskytneme podrobnější informace nebo se podívejte na webové stránky projektu rezidencemariacela.

Prodej bytu 2+kk 47 m² Plynárenská, Brno - Zábrdovice
Prodej bytu 2+kk 47 m² Plynárenská, Brno - Zábrdovice Brno, Brno-město, Zábrdovice, Plynárenská, 1
7 098 000 Kč
151 021 Kč na m²
2-pokoj 47 m² 5/9 tento

Prosvětlený byt s balkónem je součástí nového městského projektu Brno Jedna, který nabízí moderní bydlení s kompletním zázemím a výbornou dostupností do centra města. Jednotka č. 1409 o dispozici 2+kk a celkové ploše 52,7 m² vám nabídne harmonický prostor pro život, ať už hledáte vlastní zázemí, nebo jste pár začínající společnou kapitolu. Vzdušný obývací pokoj s kuchyňským koutem volně přechází do ložnice, kterou doplňuje elegantní koupelna se sprchovým koutem a toaletou. Díky orientaci obývacího pokoje na východ je byt krásně prosvětlený po celý den. Součástí jednotky je balkón o výměře 5,3 m², abyste si mohli vychutnat ranní kávu na čerstvém vzduchu. Ke každé jednotce je možné přikoupit sklepní kóji nebo parkovací stání. Byt bude připraven k okamžitému nastěhování s dokončenými podlahami, vybavenou koupelnou a připraveným prostorem pro kuchyňskou linku. Vyšší standard zahrnuje kvalitní materiály, trojskla a u vybraných jednotek i přípravu na venkovní stínění. Brno Jedna je více než jen dům, je to místo, kde se dobře žije. Střešní terasa s grilem, workout zóna, kolárna, prádelna i kočárkárna, to vše vám nabídne pohodlí městského života. V okolí roste nová čtvrť s parkem, cyklostezkami i službami. Centrum města pak máte na dosah za pouhých 5 minut MHD či autem. Předpokládaný termín dokončení a předávání jednotek je na konci roku 2027.

Prodej bytu 1+1 33 m² Charbulova, Brno - Černovice
Prodej bytu 1+1 33 m² Charbulova, Brno - Černovice Brno, Brno-město, Černovice, Charbulova, 104
4 350 000 Kč
69 048 Kč na m²
1-pokoj 63 m² -1/4 tento

Pokud hledáte pohodlné a zároveň praktické bydlení s výbornou dostupností do centra Brna, právě jste ho našli. Nabízíme k prodeji byt v osobním vlastnictví o dispozici 1+1 a užitné ploše 32,8 m², který se nachází v suterénním podlaží čtyřpatrového kompletně revitalizovaného cihlového domu. Bytový dům v roce 2010 prošel rekonstrukcí: - Nová střecha - Kompletní zateplení - Nová plastová okna s dvojskly - Nové rozvody vody - Nové rozvody elektřiny v mědi - Nový zdroj vytápění v podobě tepelného čerpadla Díky tomu nabízí byt moderní standard a pohodlí, na které se můžete ihned spolehnout. Má praktické dispoziční řešení - centrální chodba zajišťuje samostatné vstupy do koupelny a přes průchozí kuchyni do pokoje. Jistě oceníte také samostatnou místnost, která může sloužit třeba jako šatník. K bytu náleží dvůr ve vnitrobloku o velikosti 30 m². Byt je vhodný nejen jako startovací bydlení, ale i jako výhodná investice na pronájem. Nájemníka pro Vás máme. Lokalita nabízí perfektní spojení klidného bydlení, městského komfortu a skvělé dostupnosti do centra Brna. Tato část města je v posledních letech na vzestupu - rozvíjí se, modernizuje a přitom si zachovává příjemnou, sousedskou atmosféru. Jedním z hlavních benefitů je bezprostřední blízkost Parku Řehořova, který se nachází hned vedle domu. Park nabízí upravené travnaté plochy, lavičky, stromy i prostor pro volnočasové aktivity. Jen pár minut chůze od domu najdete zastávky MHD, které zajišťují rychlé spojení do centra i ostatních městských částí. Například tramvají se na Hlavní nádraží dostanete během 10 minut. Řidiče potěší i dobré napojení na městský okruh a dálnici. V blízkosti bytového domu se nachází obchody, restaurace, kavárny, lékárna, stejně jako školy, školky a sportoviště. Vše, co potřebujete, máte na dosah ruky. Příležitost pro ty, kteří chtějí být na dosah městu, ale zároveň mít kolem sebe klid a zeleň.

Prodej bytu 2+1 66 m² Elišky Machové, Brno - Žabovřesky
Prodej bytu 2+1 66 m² Elišky Machové, Brno - Žabovřesky Brno, Brno-město, Žabovřesky, Elišky Machové
8 999 000 Kč
130 420 Kč na m²
2-pokoj 69 m² 1/4 tento

Nabízíme k prodeji prostorný a světlý byt 2+1 (nadstandardní 2+kk) o podlahové ploše 66 m². Byt se nachází ve 2. nadzemním podlaží rodinného domu se 4 bytovými jednotkami a společnou zahradou o rozloze 64 m2. K bytu náleží skladová kóje (3 m2). Dům je v řadové zástavbě situován ve velmi klidné jednosměrné ulici s možností parkování před domem a splňuje všechny současné nároky na moderní bydlení. Celý dům prošel v letošním roce kompletní rekonstrukcí, včetně nových rozvodů elektřiny, vody, kanalizace, topení, fasády,střechy, oken, dveří a podlah. V nabízeném bytě je obytný prostor spojený s kuchyní a jídelnou nadstandardně prosvětlený díky velkým oknům orientovaným do zahrad. Ložnice je orientována do klidné jednosměrné ulice Elišky Machové. Nad okny ve všech místnostech je provedena příprava pro montáž předokenních žaluzií. Koupelna je vybavena sprchovým koutem, umyvadlem s osvětleným zrcadlem, topným žebříčkem. WC je samostatné, závěsné s bidetovou sprškou a umývátkem. Pro instalaci kuchyňské linky jsou provedeny všechny nápojné body. Byt také disponuje samostatným úložným prostorem (komorou s dveřmi), kde je provedena příprava pro umístění pračky. Technické vybavení je ve vysokém standardu, okna s trojskly v kompozitních rámech Rehau GENEO, dubové parkety v obývacím pokoji a ložnici, vinylová podlaha SPC experto 6 mm v části kuchyně a předsíně, interiérové dveře s plnou výplní Premium Vekra v nejvyšší kvalitě odhlučnění. Náklady na vytápění bytu budou velmi nízké díky kvalitnímu zateplení, novým oknům, a i s ohledem na vysoce účinný nový kondenzační plynový kotel Enbra. Cena je uvedena včetně provize i právního servisu. Všechny stavební práce byly dokončeny v říjnu 2025, nabízený byt je ihned k nastěhování. Lokalita: Byt se nachází ve velmi žádané, klidné části Brna - Žabovřesky, na ulici Elišky Machové. V docházkové vzdálenosti je veškerá občanská vybavenost - školy, školky, obchody, restaurace, sportovní i zdravotnická zařízení. Velkou výhodou je také blízkost zastávek MHD ve směru do centra Brna a velmi rychlé napojení na brněnský okruh a dálniční síť kolem Brna. V bezprostřední blízkosti se nachází jedna z největších zelených ploch města, lesopark Wilsonův les, který je ideálním místem pro sport, procházky a relaxaci. Hlavní přednosti bytu: • Prostorný a světlý interiér 2+1 s nadstandardní výškou stropů (celková užitná plocha 66 m²) • Samostatná skladová kóje (3 m²) • Klidná a velmi žádaná lokalita Brno - Žabovřesky s kompletní občanskou vybaveností a výbornou dostupností MHD • V bezprostřední blízkosti Wilsonova lesa, místa pro relaxaci a volný čas • Klidná zahrada ve vnitrobloku pro možnost oddychu V případě zájmu Vám poskytnu více informací a domluvím osobní prohlídku. Neváhejte mě kontaktovat!

Prodej bytu 3+kk 88 m² Rybářská, Brno - Staré Brno
Prodej bytu 3+kk 88 m² Rybářská, Brno - Staré Brno Brno, Brno-město, Staré Brno, Rybářská
13 468 000 Kč
153 045 Kč na m²
3-pokoj 88 m² 6 tento

V rámci druhé etapy moderního rezidenčního projektu Rezidence Rybářka nabízíme k prodeji byt o dispozici 3+kk s podlahovou plochou 94,4 m², situovaný v 6. nadzemním podlaží osmipodlažní novostavby. Tento byt je ideální volbou pro ty, kteří hledají komfortní bydlení v centru města. Dispozice bytu zahrnuje vstupní chodbu (13,9 m²), obývací pokoj s kuchyňským koutem (26,4 m²), ložnici (23,4 m²), pokoj (12,3 m²), komoru (2,4 m²), koupelnu s WC (3,5 m²) samostatnou koupelnu (5,4 m²) a WC (1,5 m²). K bytu dále náleží balkon o velikosti 10,8 m², která nabízí příjemné soukromí a prostor pro relaxaci. K jednotce je možné dokoupit sklep za cenu 60.000 Kč/m² a kryté parkovací stání za 790.000 Kč. Rezidence Rybářka se nachází v atraktivní lokalitě nedaleko centra Brna, v těsné blízkosti nově vybudované náplavky u řeky Svratky. Procházky podél vody, ranní běh nebo večerní drink na břehu - to vše máte doslova pár kroků od domova. Lokalita zároveň nabízí výbornou dostupnost do centra města, kompletní občanskou vybavenost a blízkost přírody. Projekt klade důraz na moderní technologie, úsporné řešení vytápění a vysoký standard provedení. Komfortní bydlení doplňuje možnost parkování v podzemní garáži a příjemné prostředí zeleného vnitrobloku. Máte zájem o více informací? Neváhejte nás kontaktovat - rádi vám představíme nejen tento byt, ale i další dostupné jednotky v projektu.

Otevřít mapu Mapa