118 objekty

Prodej bytu 2+kk 44 m² Vokrojova, Praha - Modřany
Prodej bytu 2+kk 44 m² Vokrojova, Praha - Modřany Praha, Praha 4, Modřany, Vokrojova, 10
5 870 000 Kč
133 409 Kč na m²
2-pokoj 44 m² 3/12 tento

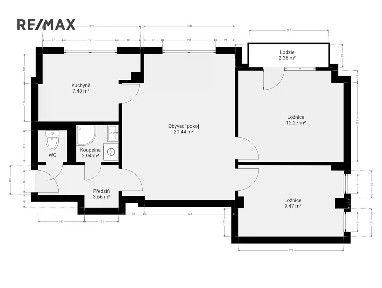
Nabízím k prodeji skvěle dispozičně řešený byt v osobním vlastnictví, o velikosti 2+kk, o výměře 44 m2 v Praze 4 Modřany, ulice Vokrojova. Byt se nachází ve třetím patře dvanáctipatrového panelového domu se dvěma výtahy. Dva pokoje bytu jsou orientovány západním směrem. Byt je hodně světlý, z oken na jih je pěkný výhled na Modřanskou rokli a na část Prahy. Po vstupu do bytu se ocitneme v předsíni. Uprostřed bytu, coby součást zadní části předsíně, se nachází kuchyňský kout se starší použitou kuchyňskou linkou v dobrém stavu. V bytě je samostatně toaleta a oddělená zrekonstruovaná koupelna s vanou. Kromě bytového jádra jež je zděné, je byt v původním stavu před rekonstrukcí. V pokojích je na podlahách starší PVC, v bytovém jádru a na lodžii je pak keramická dlažba. Topení je ústřední dálkové. Byt má menší lodžii orientovanou též na západ. K bytu náleží prostorný sklep v přízemí domu. Dům je klidný a čistý po celkové rekonstrukci. Má novou střechu, zateplení, stoupačky i vstupní portály. Před domem se dá dobře a zdarma zaparkovat. V okolí domu je veškerá občanská vybavenost, hodně zeleně a dětské hřiště. V blízkosti se nachází obchodní centrum a poliklinika. Skvělá dostupnost do centra Prahy. Nastěhování je dle domluvy, byt je již prázdný. Byt je možné financovat hypotékou, kterou vám můžeme pomoci vyřídit. Doporučuji prohlídku.

Prodej bytu 3+kk 80 m² Mezi Vodami, Praha
Prodej bytu 3+kk 80 m² Mezi Vodami, Praha Praha, Praha 4, Mezi Vodami
14 250 000 Kč
178 125 Kč na m²
3-pokoj 80 m² 11 tento

RK NEVOLAT, děkuji. Hledáte velkorysý byt, který si dotvoříte podle vlastního vkusu? -> 110 m² celkem včetně balkonu s krásnými výhledy na řeku -> Garážové parkovací stání + prostorný sklep v ceně -> Bez kuchyňské linky - snadné a rychlé dokončení bez kompromisů. -> Nízké provozní náklady ~4 011 Kč/měs. (SVJ 3 111 Kč + el. ~900 Kč) Byt je nabízen ve stavu z videoprohlídky. Pro domluvu prohlídky napište na vojtech.nesvadba@seznam.cz Prosím o kontakt pouze od přímých zájemců (RK nevolat).

Prodej bytu 2+kk 55 m² Československého exilu, Praha - Modřany
Prodej bytu 2+kk 55 m² Československého exilu, Praha - Modřany Praha, Praha 4, Modřany, Československého exilu, 4
9 990 000 Kč
181 636 Kč na m²
2-pokoj 55 m² 6 tento

Exkluzivně nabízíme naprosto unikátní LOFT v prestižním a jedinečném rezidenčním projektu VANDGUARD se službami 5 hvězdičkového hotelu na světové úrovní. Projekt nabízí krásnou recepci se službami Concierge, welness centrum s infinity bazénem, sauny, fitness centrum, kino sál, střešní terasu s výhledem na prahu a privátní saunou a mnoho dalšího. Jako jediný dům v České republice má výtahy pro auta přímo do Vašeho bytu. Byt který se nabízí v rámci tohoto projektu byl navržen významnou českou architektou a je brán zřetel na maximální využití prostoru snoubící se s naprosto výjmečným designem. Byt bude vybaven a zhotoven přesně tak jak je na fotografiích, které jsou ze stejné již realizované jednotky v rámci tohoto projektu. Veškeré materiály a vybavení je pořízeno ve vysoké kvalitě a umožňuje tak dosáhnout exkluzivity bytu s maximalizací výnosu při pronájmu. Stejný byt se momentálně pronajímá za 500.000 Kč ročně bez služeb. Cena je uvedena bez finální realizace viz fotografie, kterou Vám zajistíme. V případě zájmu lze dokoupit i parkovací stání. Dále Vám rádi pomůžeme s financováním této jednotky hypotéčním úvěrem. K dispozici ihned.

Prodej bytu 5+kk 138 m² Kolmanova, Praha - Modřany
Prodej bytu 5+kk 138 m² Kolmanova, Praha - Modřany Praha, Praha 4, Modřany, Kolmanova
20 265 000 Kč
146 848 Kč na m²
5-pokoj 138 m² 5/5 tento

BJ 5+kk, 147 m2 s terasou 17m2, 5. NP, v atraktivní části Modřan, s výhledem na Vltavu. Navíc s garážovým stáním a sklepem v ceně. Dispozice bytu: Chodba 8, 5 + 9,2 m2 Kuchyňský kout 9,2 m2 Obývací pokoj 40 m2 Ložnice 18,5 m2 Pokoj 9,7 m2 Pokoj 18 m2 Pokoj 9,7 m2 Ložnice 16,6 m2 Komora 3,4 m2 Sklad 1,5 m2 Koupelna 5,6 m2 Koupelna 3,6 m2, + WC Terasa 17 m2 podzemní parkovaní + sklepní prostory, myčka kol, technické vybavení Novostavba, která díky unikátním technologiím šetří náklady na bydlení: 47% úspora pitné vody, stoprocentní vsakování dešťové vody, zelené střechy, které ochlazují prostředí, fototermické panely, elektrické dobíjecí stanice. Bytové domy A+B v kostce: 112 bytových jednotek Průkaz energetické náročnosti budovy PEN B - velmi úsporná. Vysoký standard výbavy (vyšší dveře, prémiové zařizovací předměty a prémiové dřevěné podlahy) Snížené parapety byty provzdušní a prosvětlí. Chytrý videotelefon, který umožní otevírání vstupních dveří čipem, lze si nastavit face ID a pokud přijde návštěva, je možné vytvořit přístupový QR kód. Rekuperace, která kromě tepelného komfortu zajišťuje čerstvý vzduch. Nadstandardní zdravé a udržitelné materiály s certifikáty EPD, FSC a PEF. 24 fototermických panelů

Prodej bytu 3+1 80 m² Urbánkova, Praha - Modřany
Prodej bytu 3+1 80 m² Urbánkova, Praha - Modřany Praha, Praha 4, Modřany, Urbánkova
10 498 000 Kč
131 225 Kč na m²
3-pokoj 80 m² 4/7 tento

Nabízíme k prodeji světlý prostorný byt po kompletní rozsáhlé rekonstrukci o dispozici 3+1 s lodžií o celkové výměře cca 81m2, nacházející se na adrese ul. Urbánkova Praha - Modřany. Tato nemovitost, situovaná ve 3. patře panelové budovy, nabízí pěkný výhled na okolí. Dispozici tvoří vstupní chodba, obývací pokoj s plně vybaveným kuchyňským koutem, tři obytné místnosti, koupelna, oddělené místo pro pračku, velká komora a samostatné WC. K bytu patří sklep 3.2m2. Bydlení je navrženo s ohledem na moderní životní styl, vybaveno kvalitními materiály a promyšlenými detaily. Součástí bytu je také prostorná lodžie cca 4.3m2. Nízkoenergetická budova třídy B prošla revitalizací. V blízkosti nemovitosti se nachází veškerá občanská vybavenost, včetně obchodů a volnočasových aktivit, což činí tuto lokalitu velmi atraktivní pro všechny, kteří hledají pohodlné rodinné bydlení. Doprava do centra města je zajištěna prostřednictvím městské hromadné dopravy, v pěší vzdálenosti zastávka autobusů. V případě zájmu o prohlídku nás neváhejte kontaktovat i přes víkend.

Prodej bytu 3+1 73 m² Vitošská, Praha - Modřany
Prodej bytu 3+1 73 m² Vitošská, Praha - Modřany Praha, Praha 4, Modřany, Vitošská
8 450 000 Kč
108 333 Kč na m²
3-pokoj 78 m² 6/7 tento

Nabízíme prostorný slunný byt s plochou 78,14m² včetně lodžie. Byt se nachází v 6. patře s výhledem do zeleně Modřanské rokle jen 1 min pěšky od tramvajové a autobusové zastávky. Byt má dispozici 3+1, po rekonstrukci je možné i 4+kk. Byt je v soukromém vlastnictví s dobře hospodařícím SVJ. Nejbližší plánovaný projekt SVJ se bude týkat obnovy fasády s možným rozšířením délky lodžií o 1 metr (odsouhlasení je předmětem příští schůze SVJ). Dům je vybaven prostorným výtahem, dvěma východy a zabezpečenou kočárkárnou/kolárnou. Velkou výhodou bytu je jeho úspornost - veškeré náklady na bydlení s výjimkou eletřiny jsou 3500 Kč/měs. K bytu náleží i osobní sklep. Prohlídky možné i o víkendu. Nepřejeme si být osloveni realitními kancelářemi.

Prodej bytu 2+kk 44 m² Na Cikorce, Praha - Modřany
Prodej bytu 2+kk 44 m² Na Cikorce, Praha - Modřany Praha, Praha 4, Modřany, Na Cikorce
9 990 000 Kč
212 553 Kč na m²
2-pokoj 47 m² 1/3 tento

Máme tu pro Vás světlý a prakticky řešený byt 2+KK v novém projektu Na Cikorce. Byt je v 1. patře (vlastně přízemí s přímým vstupem do předzahrádky) a má celkem 46,82 m² a navrch terasu plus předzahrádku. Podívejte se, co všechno nabízí: Chodba (4,32 m²) Hned při vstupu najdete místo na botník nebo vestavěnou skříň, aby jste měli kam odložit bundy a boty. Obývák s kuchyňským koutem (21,26 m²) Super prostorný, hodně světla, kuchyňská linka není součástí bytu. Můžete si sem dát pohodlnou sedačku a stůl, ať se v něm cítíte jako doma. Koupelna (5,29 m²) Moderní řešení, prostor pro sprchu, umyvadlo a místo na pračku. Ložnice (13,63 m²) Klidová zóna, orientovaná směrem do zahrady. Pohodlně sem vměstnáte manželskou postel i skříň, a přitom si zachováte dostatek prostoru. Celková užitná plocha je 44,50 m² a k tomu plochu zdí a sloupů 2,32 m². Venkovní prostor Terasa (6,71 m²) - ideální na ranní kávu nebo večerní grilování. Předzahrádka (19,15 m²) - krásné místo na kytky, truhlíky nebo dětský koutek. Přímo navazuje na obývací pokoj, takže se odsud pohodlně užijete i venkovní zahradu.

Prodej bytu 2+kk 45 m² Na Cikorce, Praha - Modřany
Prodej bytu 2+kk 45 m² Na Cikorce, Praha - Modřany Praha, Praha 4, Modřany, Na Cikorce
9 995 000 Kč
212 660 Kč na m²
2-pokoj 47 m² 1 tento

Nabízíme k prodeji moderní byt 2+kk v nové cihlové výstavbě, která se nachází v klidné části Modřan. Byt je v současné době ve výstavbě a plánované dokončení je na konec roku 2026 s možností nastěhování na jaře/létě 2027. Díky umístění v přízemí e byt zcela bezbariérový a snadno přístupný. Byt disponuje užitnou plochou 45 m², podlahovou plochou 47 m². Nabízí komfortní bydlení doplněné vlastní terasou o velikosti 12 m² a velikou zahradou o rozloze 39 m², která poskytne příjemné místo pro relaxaci nebo ranní kávu či večerní grilování. Energetická třída je B, což zaručuje, že byt je energeticky úsporný s roční spotřebou energie 88 kWh/m² díky moderním technologiím jako je rekuperace. Očekávané měsíční náklady na energie vycházejí na částku 1,155 Kč. Byt bude v osobním vlastnictví a nebude vybaven, což umožní novým majitelům si jej zařídit dle svých představ. Studený nebo teplý den v Praze? Žádný problém, díky výborně řešenému vytápění a ohřevu vody bude v bytě vždy optimální teplota. Lokalita nabízí výbornou dostupnost městské hromadné dopravy, což je výhodou pro spojení s centrem města i dalšími částmi Prahy. Pokud Vás byt zaujal, neváhejte nám napsat nebo zavolat a rádi Vám vše ukážeme osobně. Pro více informací o této nemovitosti nebo sjednání prohlídky nás prosím kontaktujte nebo vyplňte níže uvedený formulář, rádi Vám pomůžeme.

Prodej bytu 4+kk 80 m² Urbánkova, Praha - Modřany
Prodej bytu 4+kk 80 m² Urbánkova, Praha - Modřany Praha, Praha 4, Modřany, Urbánkova
10 498 000 Kč
131 225 Kč na m²
4-pokoj 80 m² 4/7 tento

Nabízíme k prodeji světlý prostorný byt po kompletní rozsáhlé rekonstrukci o dispozici 4+kk s lodžií o celkové výměře cca 81m2, nacházející se na adrese ul. Urbánkova Praha - Modřany. Tato nemovitost, situovaná ve 3. patře panelové budovy, nabízí pěkný výhled na okolí. Dispozici tvoří vstupní chodba, obývací pokoj s plně vybaveným kuchyňským koutem, tři obytné místnosti, koupelna, oddělené místo pro pračku, velká komora a samostatné WC. K bytu patří sklep 3.2m2. Bydlení je navrženo s ohledem na moderní životní styl, vybaveno kvalitními materiály a promyšlenými detaily. Součástí bytu je také prostorná lodžie cca 4.3m2. Nízkoenergetická budova třídy B prošla revitalizací. V blízkosti nemovitosti se nachází veškerá občanská vybavenost, včetně obchodů a volnočasových aktivit, což činí tuto lokalitu velmi atraktivní pro všechny, kteří hledají pohodlné rodinné bydlení. Doprava do centra města je zajištěna prostřednictvím městské hromadné dopravy, v pěší vzdálenosti zastávka autobusů. V případě zájmu o prohlídku nás neváhejte kontaktovat i přes víkend.

Prodej bytu 2+kk 58 m² K Vystrkovu, Praha - Modřany
Prodej bytu 2+kk 58 m² K Vystrkovu, Praha - Modřany Praha, Praha 4, Modřany, K Vystrkovu
8 400 000 Kč
144 828 Kč na m²
2-pokoj 58 m² 2/8 tento

Nabízíme Vám k prodeji krásný byt 2kk, 57,3 m2, byt má krásný balkon, parkovací místo a sklep, v novostavbě Rezidence Modřanka, pár kroků od přírody, pár zastávek od centra. Byt o velikosti 57,3 m2 + balkon9,7 5,4 m2, + garážové stání + sklep. Cena garážového stání je 500.000 Kč, sklep za cenu 100.000 Kč. Byt se nachází ve 2. patře osmi patrového domu a je vybaven kuchyňskou linkou se sklokeramickou varnou deskou, elektrickou troubou a myčkou, koupelnou s vanou, umyvadlem, toaletou. Z obývacího pokoje, spojeného s kuchyňskou částí, je výhled na balkon s krásným výhledem do zeleně vnitrobloku. Na podlahách je dřevěná podlaha, v předsíni a koupelně je keramická dlažba. Byt je aktuálně pronajat, je tedy vhodný i jako investice. U domu je dětské hřiště, klidné posezení ve vnitrobloku. Přímo před rezidencí je autobusová zastávka Cukrovar Modřany, 5 min. dochozí vzdálenosti tramvaj Nádraží Modřany a vlak. Ve vzdálenosti 10 min. autem obchodní centrum Novodvorská Plaza.

Prodej bytu 4+1 98 m² Barunčina, Praha - Modřany
Prodej bytu 4+1 98 m² Barunčina, Praha - Modřany Praha, Praha 4, Modřany, Barunčina, 34
9 499 000 Kč
96 929 Kč na m²
4-pokoj 98 m² 3/4 tento

Nabízíme k prodeji světlý a prostorný byt 4+1 o podlahové ploše 98 m² s lodžií a sklepní kójí (4 m²), nacházející se ve 3. patře čtyřpodlažního zatepleného domu v žádané lokalitě Praha - Modřany. Byt je po částečné rekonstrukci. Okna jsou plastová (dvojsklo). Dispozice bytu: obývací pokoj - 18,5 m², kuchyň - 12,4 m², ložnice - 12,2 m², pokoj - 13,16 m², pokoj - 8,95 m², hala - 13,35 m², předsíň - 5,4 m², koupelna s vanou - 2,46 m2, samostatné WC - 1,1 m², komora - 1,48 m², chodba 3,2 m2, lodžie - 12 m2, sklepní kóje - 4 m². Další informace: byt je v družstevním vlastnictví, převod do osobního vlastnictví je možný. Také je možnost dokoupení garáže o výměře 17 m2 v přízemí domu - cena 1.200.000,-. Velmi oblíbená a klidná část Modřan s kompletní občanskou vybaveností - školy, školky, obchody, zdravotní zařízení, restaurace i sportoviště v docházkové vzdálenosti. Výborná dopravní dostupnost do centra města - zastávka MHD pár minut od domu. Byt je ideální pro rodinu, která hledá prostorné bydlení v klidné části Prahy s výborným zázemím i dopravní dostupností.

Prodej bytu 2+1 79 m² Plovdivská, Praha - Modřany
Prodej bytu 2+1 79 m² Plovdivská, Praha - Modřany Praha, Praha 4, Modřany, Plovdivská
12 700 000 Kč
138 043 Kč na m²
2-pokoj 92 m² 2/7 tento

Hledáte komfortní bydlení v klidné a vyhledávané lokalitě s výbornou dopravní dostupností a kompletní občanskou vybaveností? Pak Vás jistě zaujme tento jedinečný byt s garážovým stáním o dispozici 2+1 a velkorysé ploše 79 m² se dvěma balkony 6,5m2 (plocha balkonu se nezapočítává do plochy bytu) který se nachází v 2NP cihlového domu s výtahem v ulici Plovdivská Praze 4 Modřany. Hlavní přednosti bytu: Celková plocha 79 m² - nadstandardně prostorné pokoje 2x balkon (každý 6,5 m²) - ideální pro relaxaci, posezení či pěstování bylinek Praktická šatna - dostatek úložného prostoru Zděný sklep 2,5m2 - další místo pro uskladnění sezónních věcí Garážové stání v domě - pohodlí a bezpečí pro váš vůz Cihlová konstrukce domu - záruka kvalitního a zdravého bydlení Měsíční náklady na bydlení vycházejí na 4.500 Kč měsíčně + elektřina Byt se nachází v bezprostřední blízkosti Sofijského náměstí - centra městského života v Modřanech. Najdete zde supermarkety, farmářské obchody, drogerie, lékárny, kavárny i oblíbené restaurace, vše pohodlně dostupné pěšky. Lokalita poskytuje perfektní spojení do centra Prahy autem, tramvají, autobusem i vlakem a zároveň nabídne příjemné prostředí plné zeleně a volnočasových aktivit. Lokalita, která má vše, co potřebujete Místo je ideální jak pro páry, tak pro rodiny, které hledají pohodlné a moderní bydlení s kompletní infrastrukturou a zároveň ocení blízkost přírody. Neváhejte mě kontaktovat a domluvte si prohlídku - tento byt nabízí kombinaci prostoru, komfortu a perfektní lokality, která se jen tak nevidí!

Prodej bytu 4+kk 118 m² Na Komořsku, Praha - Modřany
Prodej bytu 4+kk 118 m² Na Komořsku, Praha - Modřany Praha, Praha 4, Modřany, Na Komořsku
19 950 000 Kč
83 824 Kč na m²
4-pokoj 238 m² 1/2 tento

Ráda bych Vám představila výjimečný byt 4+kk o užitné ploše 118,4 m², který Vás na první pohled okouzlí svou atmosférou, promyšleným dispozičním řešením a pocitem domova. Díky důmyslnému řešení působí celý byt mimořádně prakticky a útulně zároveň. Byt se nachází se v klidné a malebné části Komořan, v komorním domě s pouhými čtrnácti bytovými jednotkami, a díky umístění v posledním podlaží nabízí soukromí, klid a nádherný výhled do zeleně. Součástí bytu je soukromá, pečlivě udržovaná zahrada s velkorysou terasou, která přímo vybízí k posezení s kávou, grilování s přáteli nebo odpočinku po náročném dni. Obývací pokoj i obě ložnice mají vlastní vstup na terasu a do zahrady. Dominantou bytu jsou velkoformátová francouzská okna, díky nimž je celý prostor krásně prosvětlený a působí útulně a vzdušně. Za vstupem Vás přivítá prostorná chodba s místem pro šatní skříň, naproti které se nachází klidná pracovna. Po pravé straně najdete koupelnu s vanou. Srdcem bytu je prostorný obývací pokoj s kuchyňským koutem o výměře téměř 40 m². Kuchyňská linka o délce přes čtyři metry nabízí dostatek prostoru pro vaření i ukládání věcí, a je vybavena kvalitními spotřebiči značky Electrolux - indukční varnou deskou, digestoří, lednicí s mrazákem, mikrovlnnou troubou i myčkou. Okno v kuchyni poskytuje příjemný výhled do zeleně sousedních zahrad, takže i každodenní vaření se stává radostí. Z obývacího pokoje vedou dva samostatné vstupy na terasu o výměře 20 m², odkud je přímý vstup na zahradu se vzrostlými keři a stromy, které zaručují naprosté soukromí. Centrální zatravněná část přímo vybízí k odpočinku, pikniku či hrám dětí. Na zahradě je k dispozici elektrická zásuvka i připojení na vodu. V bytě se dále nachází dvě samostatné ložnice - hlavní ložnice má vlastní koupelnu se sprchovým koutem, což dodává bytu ještě větší komfort. Na chodbě je prostor pro pračku a sušičku. Podlahy v obytných místnostech jsou pokryty plovoucí podlahou v dekoru dřeva, která dotváří teplo domova, v koupelnách a na chodbě je elegantní dlažba. K bytu náleží také prostorný sklep o velikosti 7,8 m² a garážové stání v 1. PP domu. Dům byl kolaudován v roce 2018 a plynule navazuje na původní zástavbu „starých“ Komořan, které si dodnes uchovaly svou poklidnou atmosféru. Pouhých pár kroků od domu se nachází vstup do lesa, odkud se příjemnou procházkou dostanete až na Točnou - místo ideální pro rodinné výlety, běh či cyklistiku. Dopravní dostupnost je skvělá - autobusové linky 139 a 117 Vás pohodlně dopraví do centra, a v pěší vzdálenosti se nachází vlakové nádraží s přímým spojením na Hlavní nádraží. V okolí najdete supermarket Billa, a jen pár minut jízdy autobusem se dostanete na Obchodní nebo Sofijské náměstí s veškerou občanskou vybaveností. ???? Pokud toužíte po bydlení, které spojuje klid přírody s pohodlím městského života, moderní architekturou a skutečným pocitem domova, pak je tento byt přesně tím místem, kde se budete cítit šťastní.

Prodej bytu 3+1 79 m² Daškova, Praha - Modřany
Prodej bytu 3+1 79 m² Daškova, Praha - Modřany Praha, Praha 4, Modřany, Daškova, 9
8 200 000 Kč
103 797 Kč na m²
3-pokoj 79 m² 3/8 tento

Exkluzivní nabídka velmi hezky dispozičně řešeného bytu 3+1 o výměře 79 m2, který se nachází ve 3. patře revitalizovaného panelového domu s novým výtahem. Dominantou tohoto bytu je prostorný obývací pokoj se zasklenou lodžií a výhledy do klidové zóny a zeleně. Kuchyně je vybavená linkou se spotřebiči. Dále zde nalezneme dvě ložnice se samostatnými vstupy z předsíně. Koupelna s umyvadlem, sprchovým koutem a prostorem pro pračku. WC zvlášť. K bytu náleží sklep v suterénu domu. Jedná se o klidné místo s perfektní dopravní dostupností do 15 min na -M- Kačerov nebo Smíchovské nádraží. V pěší vzdálenosti se nachází několik obchodů, fitcentra, škola, školka a v neposlední řadě též příroda - Modřanská rokle, les, atd. Parkování na ulici u domu. Pro více info nebo prohlídku, volejte nebo pište makléři. Doporučujeme!

Prodej bytu 3+1 57 m² U zastávky, Praha - Modřany
Prodej bytu 3+1 57 m² U zastávky, Praha - Modřany Praha, Praha 4, Modřany, U zastávky, 1
6 450 000 Kč
107 500 Kč na m²
3-pokoj 60 m² 6/10 tento

Exkluzivně nabízíme k prodeji byt 3+1 v osobním vlastnictví o celkové podlahové ploše 60 m2 (57 m2 byt a 2,8 m2 balkon) na adrese U zastávky 1535/1, 143 00 Praha 12 - Modřany. Byt je v původním, udržovaném stavu a je určen ke kompletní rekonstrukci. Nachází se v šestém nadzemním podlaží (5 patro) deseti podlažního panelového domu z roku 1970. Nemovitost je ideální pro příjemné bydlení nebo jako investice k dlouhodobému pronájmu. Lokalita nabízí ideální kombinaci přírody, jako jsou cyklostezky podél řeky a nedaleké parky, s rychlým přístupem do centra Prahy - autem za 10-15 minut, tramvají za přibližně 25 minut až na Václavské náměstí nebo Karlovo náměstí. Výhody: Klidné prostředí vhodné pro rodiny. Nízká hlučnost oproti centru. Rostoucí potenciál investic díky novým projektům. Adresa U zastávky 1535/1 leží přímo u zastávky MHD, což zajišťuje okamžitou dostupnost veřejné dopravy. Vynikajicí občanská vybavenost v docházkové vzdálenosti. Najdete zde mateřské a základní školy, zdravotní střediska, lékárny, supermarkety (Albert, KIK přes ulici), menší obchody, restaurace, kavárny, poštu, kino i lékařské ordinace - vše potřebné pro pohodlný každodenní život. Popis bytu a SVJ: Byt je v původním, udržovaném stavu s možností okamžitého bydlení. Je vybavený plastovými okny a balkonem orientovanými na východ což zajišťuje příjemné osvětlení, klid a příjemný výhled. Byt je nabízen ve stavu k rekonstrukci (původní elektřina, kuchyňská linka, koupelna je po rekonstrukci). Topení dálkové včetně ohřevu teplé vody. Měsíční poplatky za služby činí 4 120 Kč + elektřina a plyn dle individuální spotřeby. Společenství vlastníků jednotek (SVJ) funguje bez úvěrů a opravy jsou hrazeny z naspořených prostředků fondu oprav. Navyšování poplatků do fondu oprav se neplánuje. Nemovitost lze financovat hypotečním úvěrem, se kterým vám rádi pomohou naši hypoteční specialisté.

Prodej bytu 2+kk 91 m² K Vystrkovu, Praha - Modřany
Prodej bytu 2+kk 91 m² K Vystrkovu, Praha - Modřany Praha, Praha 4, Modřany, K Vystrkovu
11 350 000 Kč
124 725 Kč na m²
2-pokoj 91 m² 3 tento

Prodám novostavbu 2kk o rozloze 61,6 m² + veliký balkon 10,2 m², velké parkovací stání 15 m² vhodné i pro SUV + prostorný nový sklep 5 m², celková plocha 91,8 m². Byt se nachází ve třetím patře (4 byty na podlaží), je otočen na jih a je z něho krásný výhled na Cukrák a Brdy. Byt má příjmí bezbariérový přístup z prvního patra nebo za garáže, umístěné pár kroků od výtahu. Byt byl již jako nový nadstandardně zrekonstruován do současné podoby a nabízí spoustu odkládacího prostoru. Disponuje novou koupelnou, odděleným WC s posuvnými dveřmi pro větší soukromí, velkou zařízenou komorou, dvěma šatními skříněmi a moderní kuchyní se špičkovými spotřebiči. V bytě je vestavěná pracovna a dřevěná podlaha na balkoně. Použité materiály jsou v odstínech dubu a antracitu. Byt je ihned volný a vhodný jak pro mladé rodiny s hypotékou díky své nízké energetické náročnosti z nízkou úrokovou sazbou, nebo i pro investory k dlouhodobému pronájmu. Ceny za pronájem se v domě pohybují až do 30 000 Kč měsíčně, s možným výnosem kolem 4 % ročně. Poptávka v okolí rychle mizí, proto neváhejte. V případě potřeby mohu byt po dohodě kompletně vyprázdnit nebo zařídit (mimo věstavěných prvků) - v ceně. Neplatíte provizi ani právní služby. Jsem přímý majitel. Byt prodávám kvůli jiné investici. Skvělá a koncepční nabídka nového bytu v rychle se rozvíjející části Modřan u Cukrovaru Modřany. Před domem dětské hřiště, školy, školky, kino, restaurace, kavárny, obchody, fitness centrum přímo vedle domu a MHD u domu. Luxusní bydlení s rychlým spojením do centra. SVJ velice dobře hospodaří. RK nevolat, nepsat. V případě zájmu o koupi mě kontaktujte telefonicky.

Prodej bytu 3+kk 61 m² Československého exilu, Praha - Modřany Praha, Praha 4, Modřany, Československého exilu
13 700 000 Kč
171 250 Kč na m²
3-pokoj 80 m² 5/9 tento

Luxusní kompletně zařízený byt 3+kk o celkové ploše 80,4 m² se dvěma balkony (9,9 m² a 9 m²) se nachází v novém rezidenčním projektu Ahoj Vanguard v pražských Modřanech. Součástí prodeje je sklep (1,9 m²) a garážové stání. Byt je plně vybavený nábytkem i kuchyňskými spotřebiči značky Miele a je ihned připraven k nastěhování. K dispozici je zdarma luxusní spa a wellness centrum, 18metrový bazén a střešní terasa s výhledem na přírodu a možností grilování. Orientace na jihozápad zajišťuje dostatek denního světla a příjemný výhled do zeleně. V okolí se nachází cyklostezka podél Vltavy, golfové hřiště v Hodkovičkách, ZOOkoutek Malá Chuchle, školy, školky a půjčovna motorových člunů. Modřany se rychle rozvíjejí a díky skvělé dopravní dostupnosti představují jednu z nejzajímavějších lokalit pro bydlení v Praze.

Prodej bytu 3+kk 85 m² Mezi Vodami, Praha
Prodej bytu 3+kk 85 m² Mezi Vodami, Praha Praha, Praha 4, Mezi Vodami
16 900 000 Kč
198 824 Kč na m²
3-pokoj 85 m² 2 tento

Nabízíme k prodeji plně vybavenou bytovou jednotku 3+kk o výměře 89 m2 s balkonem 14 m2 v Rezidenci Zahálka. Součástí jednotky orientované na severozápad s výhledem na golfové hřiště je prostorná chodba, obývací pokoj s kuchyní, 2x ložnice, koupelna s wc a samostatné wc. Prostor rozšiřuje přiřazený sklep o velikosti 3,8 m2. K bytu lze dokoupit komoru na patře. Oceňovaný projekt Rezidence Zahálka je nová moderní čtvrť, která se nachází u golfu Hodkovičky a vedle Vltavy. Součástí projektu je rozsáhlý park s venkovním grilem, odpočinkovými zónami, dětským hřištěm a obchody vč. supermarketu Tesco, bistra či fitness. Modřany nabízí veškerou občanskou vybavenost. Lokalitu ocení rodiny i aktivní jedinci. V okolí Rezidence Zahálka je možné využít Freestyle park, lanový park, sportoviště nebo oblíbenou cyklotrasu. Do centra města je to 15 tramvají ze zastávky Belárie. Jednotka je součástí SVJ o velikosti 224 jednotek. Byt oceníte jak na vlastní bydlení, tak i pro investiční záměr. Bytová jednotka slouží jako ukázkový byt. Je to prvotní prodej od developera, bez platby provize. Cena je včetně garážového stání a sklepa. K nastěhování nejdříve v průběhu ledna 2026.

Prodej bytu 3+1 69 m² Kutilova, Praha - Modřany
Prodej bytu 3+1 69 m² Kutilova, Praha - Modřany Praha, Praha 4, Modřany, Kutilova
8 190 000 Kč
106 364 Kč na m²
3-pokoj 77 m² 5/7 tento

Světlý byt 3+1 v pražských Modřanech zaujme balkonem orientovaným na jihozápad, z něhož se otevírá nádherný výhled na Točnou a soutok Berounky s Vltavou. Nachází se v pátém patře zatepleného panelového domu s výtahem a je ideální volbou pro ty, kteří hledají vlastní bydlení s možností úprav podle svých představ, nebo jistou investici v klidné části Prahy. Byt o užitné ploše 68,5 m² (celkem 77,2 m² včetně balkonu a sklepa) má dispozici 3+1 (aktuálně ve verzi 3+kk), praktickou komoru a oddělenou koupelnu s toaletou. Je po částečné rekonstrukci, takže se do něj můžete ihned nastěhovat, nebo si ho přizpůsobit podle sebe. Dům je zateplený a má příjemné, dlouholeté sousedy. K bytu patří sklepní kóje a dostatek úložného prostoru zajišťuje i komora přímo v bytě. Lokalita nabízí kompletní občanskou vybavenost - v docházkové vzdálenosti jsou obchody Kaufland, Billa, Lidl i Penny, školy, školky, sportovní areály a dětská hřiště. Na metro Kačerov se dostanete autobusem do dvanácti minut. Modřany zároveň lákají milovníky přírody a sportu - v okolí vedou oblíbené cyklostezky podél Vltavy. Byt na Kutilově ulici je skvělou volbou pro vlastní bydlení, spolehlivou investici nebo projekt pro kreativní duše, které chtějí vytvořit domov podle sebe. Zavolejte si o prohlídku a podívejte se, jak by mohl vypadat váš nový domov s výhledem, který se neokouká.

Prodej bytu 3+1 77 m² Vazovova, Praha - Modřany
Prodej bytu 3+1 77 m² Vazovova, Praha - Modřany Praha, Praha 4, Modřany, Vazovova, 2
7 770 000 Kč
100 909 Kč na m²
3-pokoj 77 m² 1/8 tento

Nabízíme k prodeji prostorný a světlý byt o dispozici 3+1/L,S o výměře 77,2 m2 (vč. sklepa 3,8 m2) + lodžie 4,5 m2, celkem tedy 81,7 m2 užitné plochy, v žádané lokalitě Praha 4 Modřany, ulici Vazovova. Je umístěný ve zvýšeném přízemí udržovaného panelového domu s výtahem a lodžií orientovanou na jižní stranu. Nabízí se zařízený. Prostornou dispozici bytu tvoří obývací pokoj (20,72 m2), samostatná kuchyně s jídelním koutem (11,7 m2), 2 samostatné pokoje (12,2 a 12,01 m2), koupelna s vanou (3,09 m2), samostatná toaleta a předsíň. Obývací pokoj umožňuje přímý vstup na prostornou zasklenou lodžii, která je, i díky své jižní orientaci, vhodná pro celoroční posezení. Byt prošel částečnou rekonstrukcí vč. rozvodů elektřiny, jádro je zděné. Je vytápěn dálkovým centrálním topením a osazen radiátory. Okna jsou plastová. K uložení věcí lze využít sklep v 1. PP o velikosti 3,8 m2. Velkou výhodou lokality je bezproblémové parkování u domu bez modrých zón. Byt se nachází v oblíbené a klidné části Prahy 4 Modřany, která vyniká skvělou občanskou vybaveností, dobrou dopravní dostupností a blízkostí přírody. Autobusová i tramvajová zastávka Levského se nachází v docházkové vzdálenosti 4 minuty od domu. V okolí najdete obchody, školy (např. ZŠ TG Masaryka), školky (např. MŠ Srdíčko), dětské hřiště, restaurace i zdravotní služby, vše v docházkové vzdálenosti. Polyfunkční centrum Rilská, která zahrnuje potraviny Albert, restaurace, samoobsluhu a další obchody a služby, je vzdáleno jen 3 minuty autem, městská knihovna, psí hřiště i louka jsou vzdáleny jen několik minut chůze. K odpočinku a sportu láká nedaleká Modřanská rokle, cyklostezka podél Vltavy nebo Branické skály s krásnými výhledy. Lokalita tak nabízí ideální kombinaci klidného bydlení v zeleni a pohodlí městské infrastruktury. Pro osobní prohlídku mě neváhejte kontaktovat. S případným vyřízením hypotéky Vám rádi zdarma pomůžeme. PENB: G* (údaj bude aktualizován). Podle posledního štítku platného do 11/2023 je to třída D

Otevřít mapu Mapa