20krát více reklam od majitelů

Sbíráme reklamy z největších portálů

Realitního makléře od majitele rozeznáváme podle telefonního čísla

Ukážeme, jak se cena změnila

Odstranění duplicitních reklam

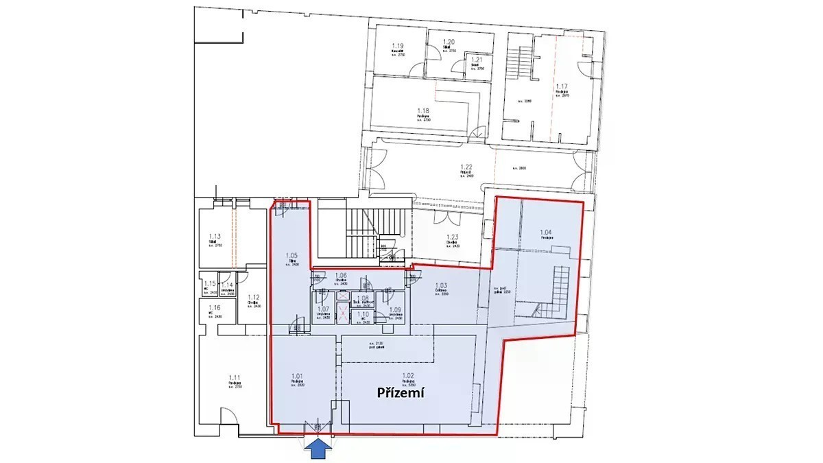
Prodej obchodního prostoru 300 m² Střelecká, Hradec Králové

Hradec Králové, Střelecká, 27
  • Objekt CZ-1345546750
  • přidáno:
  • aktualizováno:
fotografie - Prodej obchodního prostoru 300 m² Střelecká, Hradec Králové fotografie - Prodej obchodního prostoru 300 m² Střelecká, Hradec Králové
  • Plná velikost
  • Hledat podobné
fotografie - Prodej obchodního prostoru 300 m² Střelecká, Hradec Králové fotografie - Prodej obchodního prostoru 300 m² Střelecká, Hradec Králové

Nabízíme k prodeji komerční prostor o velikosti 300 m² (prodejna 210 m² + sklad 90 m²) v centru Hradce Králové s dlouhodobým nájemcem. Roční čistý nájem činí 920 000 Kč, smlouva je uzavřena do roku 2029 s možností každoroční indexace o inflaci. Čistý výnos 6,34 % p.a. Možnost převodu do osobního vlastnictví k 23.3.2030. Dům projde revitalizací fasády bez dopadu na náklady vlastníka nebytového prostoru. Zn. Stabilní investice s jistým výnosem a růstem hodnoty.

Poloha na mapě, užitečná místa a trasy