20krát více reklam od majitelů

Sbíráme reklamy z největších portálů

Realitního makléře od majitele rozeznáváme podle telefonního čísla

Ukážeme, jak se cena změnila

Odstranění duplicitních reklam

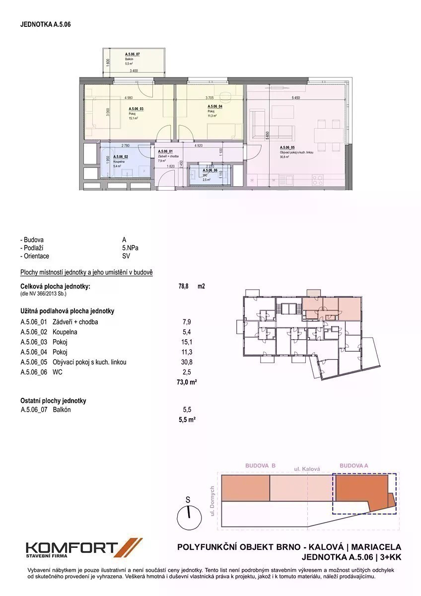
Prodej bytu 3+kk 86 m² Kalová, Brno

Brno, Brno-město, Kalová
  • Objekt CZ-1326162165
  • přidáno:
  • aktualizováno:
fotografie - Prodej bytu 3+kk 86 m² Kalová, Brno fotografie - Prodej bytu 3+kk 86 m² Kalová, Brno fotografie - Prodej bytu 3+kk 86 m² Kalová, Brno fotografie - Prodej bytu 3+kk 86 m² Kalová, Brno fotografie - Prodej bytu 3+kk 86 m² Kalová, Brno fotografie - Prodej bytu 3+kk 86 m² Kalová, Brno
  • Plná velikost
  • Hledat podobné
fotografie - Prodej bytu 3+kk 86 m² Kalová, Brno fotografie - Prodej bytu 3+kk 86 m² Kalová, Brno fotografie - Prodej bytu 3+kk 86 m² Kalová, Brno fotografie - Prodej bytu 3+kk 86 m² Kalová, Brno fotografie - Prodej bytu 3+kk 86 m² Kalová, Brno fotografie - Prodej bytu 3+kk 86 m² Kalová, Brno

Rezidence Mariacela - Vaše komfortní bydlení poblíž nového Jižního centra Brna, v oblasti s dynamickým rozvojem, v bezprostřední blízkosti nového hlavního nádraží a parku Mariacela. Mariacela roste na nároží ulic Dornych a Kalová, Brno. Jedná se o moderní polyfunkční projekt, který spojuje inovativní technologie s pohodlím domova. Díky chytré domácnosti, rekuperaci vzduchu a chlazeným stropům nabízí zdravé a komfortní bydlení po celý rok. Mariacela znamená nejen nižší náklady, ale i dlouhodobě udržitelné bydlení s energetickým štítkem A. Celkem 94 exkluzivních jednotek různých dispozic s balkonem, lodžií či terasou, umístěných v 1.až 9.nadzemním podlaží. Horní patra umožňují krásný výhled na brněnské dominanty. Naopak v přízemí domu je navženo 7 komerčních prostor určených pro obchody či služby. V podzemních patrech, kam vás pohodlně doveze výtah, se pak nachází: - GARÁŽOVÁ STÁNÍ v ceně od 800.000,-Kč, pohodlný vjezd/výjezd zajišťují automatická sekční garážová vrata. V hromadné garáži - příprava na wallbox (el.nabíjení aut) - SKLEPY různých velikostí přístupné i přímo z garážových stání. Výběr sklepu je na kupujícím, cena sklepu není součástí ceny jednotky. Výstavba Rezidence Mariacela zahájena v I.Q/2025, termín dokončení ve IV.Q/2027. Rádi Vám poskytneme podrobnější informace nebo se podívejte na webové stránky projektu rezidencemariacela.

Poloha na mapě, užitečná místa a trasy

Objekty v okolí

Brno, Brno-město, Kalová
přidat k oblíbeným Prodej bytu 1+kk 36 m² Kalová, Brno
  • 5 160 000 Kč
  • 36 m²
Brno, Brno-město, Kalová
Brno, Brno-město, Kalová
přidat k oblíbeným Prodej bytu 2+kk 46 m² Kalová, Brno
  • 6 850 000 Kč
  • 46 m²
Brno, Brno-město, Kalová
Brno, Brno-město, Kalová
přidat k oblíbeným Prodej bytu 2+kk 52 m² Kalová, Brno
  • 6 668 000 Kč
  • 52 m²
Brno, Brno-město, Kalová
Brno, Brno-město, Kalová
přidat k oblíbeným Prodej bytu 2+kk 58 m² Kalová, Brno
  • 7 113 000 Kč
  • 58 m²
Brno, Brno-město, Kalová