48 objekty

Prodej restaurace 150 m² Hradec Králové
Prodej restaurace 150 m² Hradec Králové Hradec Králové
obchodovatelné
150 m² 4 tento

4694 - Přenechání pronájmu zavedené, kompletně vybavené restaurace v centru Hradce Králové. Kapacita přes 80 míst + letní zahrádka 70 míst. V případě zájmu o podrobnější informace kontaktujte makléře.

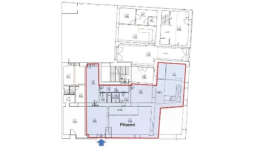
Prodej obchodního prostoru 876 m² Bratří Štefanů, Hradec Králové - Slezské Předměstí
Prodej obchodního prostoru 876 m² Bratří Štefanů, Hradec Králové - Slezské Předměstí Hradec Králové, Slezské Předměstí, Bratří Štefanů
25 900 000 Kč
25 797 Kč na m²
1004 m² 2 tento

Nabízíme ke koupi komerční nemovitost s výbornou dostupností v atraktivní obchodní zóně Hradce Králové na adrese Bratří Štefanů. Tato stavba poskytuje široké možnosti využití pro skladování, kanceláře či firemní zázemí a díky své flexibilitě je také skvělá investiční příležitost. Celková užitná plocha budovy ve dvou patrech činí 876,7 m² a stojí na pozemku o výměře 1004 m². Zastavěná plocha je 451 m². Před budovou je k dispozici parkoviště pro 8 osobních aut. Interiér stavby je v současnosti nedokončený, což umožňuje naprostou volnost při plánování dispozic. Budova má zděný střed se schodištěm do patra, ostatní části jsou postaveny z ocelové konstrukce a opláštěny panely Kingspan, což zajišťuje energetickou úspornost a moderní vzhled. V přízemí se nachází vstup z parkoviště, tři vjezdy do prostor pro sklad a výdej zboží. V patře je navržený kancelářský prostor, sociální zázemí a další místnosti, které lze upravit podle vlastního projektu či specifických potřeb. Nemovitost se nachází na strategickém místě s rychlým připojením na dálnici D11, hlavní silniční tahy a výbornou dostupností MHD. Díky kombinaci atraktivní lokality a možnosti přizpůsobení je vhodné pro vlastní využití, ale i jako investice k pronájmu jiným subjektům. Pro více informací mě neváhejte kontaktovat. Prohlídka nemovitosti je možná po domluvě. Michal Parák - certifikovaný realitní makléř

Prodej obchodního prostoru 633 m² Podhůrská, Hradec Králové - Svinary
Prodej obchodního prostoru 633 m² Podhůrská, Hradec Králové - Svinary Hradec Králové, Svinary, Podhůrská
17 990 000 Kč
28 420 Kč na m²
633 m² 1/2 tento

Pokud patříte mezi ty, kteří hledají opravdu netradiční nemovitost se zavedenou historií, tak jste na správné adrese. Exkluzivně nabízíme k prodeji zavedenou Hospodu u Karla, jejíž první zmínky se datují již v r. 1714. Nemovitost se nachází v Hr. Králové, části Svinary, ul. Podhůrská. V současné době je nemovitost pronajata. Stavba v posledních letech prošla částečnými úpravami (např. nová střecha v r. 2007, poté v r. 2018 - 2020 omítky, toalety, sklepní prostory), které postupně dále pokračují. S ohledem na umístění v lokalitě, celkovou užitnou plochu, napojení na veškeré inž. sítě, tak nabízí široké spektrum možností pro komerční využití. Dle současného platného územního plánu se stavba nachází v plochách smíšených obytných venkovského typu. Pro více informací a domluvení prohlídky kontaktujte makléře. Vřele doporučujeme osobní prohlídku, abyste mohli načerpat místní Genius loci. Nemovitost taktéž disponuje obrovským potenciálem, přijďte se sami přesvědčit.

Prodej kanceláře 50 m² Pražská třída, Hradec Králové - Kukleny
Prodej kanceláře 50 m² Pražská třída, Hradec Králové - Kukleny Hradec Králové, Kukleny, Pražská třída, 11
3 250 000 Kč
65 000 Kč na m²
50 m² 4 tento

Moderní komerční prostory v reprezentativní budově Rubicon - Pražská třída, Hradec Králové Nabízíme k prodeji komerční prostory v nově zrekonstruované budově Rubicon na prestižní adrese Pražská třída 691, Hradec Králové. Budova má 4 nadzemní a 1 podzemní podlaží a prošla kompletní modernizací - od nového exteriéru až po vkusně upravené společné prostory. Popis objektu: Reprezentativní vstupní hala s recepcí Nový výtah a komfortní schodiště Toalety a kuchyňka na každém patře Podzemní podlaží vhodné pro sklad nebo zázemí Možnost parkování na veřejném parkovišti v okolí budovy Flexibilita prostor: Každé patro nabízí otevřený a variabilní prostor, který lze přizpůsobit potřebám zájemce. Zájemce si může určit velikost i účel využití (kanceláře, showroom, ordinace, služby, lehká výroba aj.) a prostor bude následně upraven na míru. Budova Rubicon nabízí moderní zázemí, reprezentativní vzhled a skvělou dostupnost - nachází se v centru města, kousek od hlavního nádraží s výbornou dopravní dostupností i viditelností z frekventované Pražské třídy. Shrnutí: Lokalita: Pražská třída 691, Hradec Králové Typ: kancelářské / obchodní / multifunkční prostory Stav: po kompletní rekonstrukci Velikost: dle dohody (možnost dělení) Cena: 65.000,-/m2 Zavolejte mi a domluvíme si prohlídku! Pro komunikaci uvádějte evidenční číslo zakázky N114695.

Prodej kanceláře 190 m² Pražská třída, Hradec Králové - Kukleny
Prodej kanceláře 190 m² Pražská třída, Hradec Králové - Kukleny Hradec Králové, Kukleny, Pražská třída
27 850 000 Kč
24 822 Kč na m²
1122 m² 2 tento

Zajímavá investiční příležitost. Dovolujeme si Vám nabídnout komerční objekt v Hradci Králové, který se nachází v místní části Kukleny v aktuálně největší hradecké rozvojové lokalitě. Nemovitost nabízí stabilní a bezproblémovou investici se značným potenciálem růstu díky masivnímu rozvoji této oblasti. Celková výměra pozemku, včetně zastavěné plochy je 1122 m2 a je nabízen včetně zpracované Hmotové studie Kukleny pro umístění stavby multifunkčního nebo obdobného objektu, která byla předložena k posouzení příslušnému úřadu. V současné době je objekt využíván, jako sídlo firmy- kancelářské prostory a zázemí. Městská část Kukleny nabízí výbornou dostupnost do centra Hradce Králové, občanskou vybaveností v blízkosti (školy, školky, obchody, sportoviště) a snadné napojení na hlavní dopravní tahy. Více informací vám rádi sdělíme na osobní schůzce.

Prodej obchodního prostoru 124 m² Písek
Prodej obchodního prostoru 124 m² Písek Písek, Hradec Králové
1 490 000 Kč
12 016 Kč na m²
124 m² 1/1 tento

Hledáte výjimečnou investiční příležitost nebo projekt pro realizaci velkorysého, atypického bydlení? Nabízíme k prodeji jedinečnou nemovitost, kde se historický a robustní charakter stodoly, 86m² otevřeného prostoru, snoubí s moderně připraveným komerčním zázemím. Bývalá prodejna potravin 33m² se skladem 15 m² je technicky kompletně zajištěna - odizolované stěny, vytápění wafkami, napojena na obecní vodovod, zavedený plyn s podružným měřičem a připravenou přípojku pro samostatný elektroměr 230V i 380V; odpad řešen do společné jímky. Původní masivní dřevěné trámy konstrukce stodoly jsou ve výborném stavu a střecha z pálených tašek je bez poškození, což minimalizuje počáteční investiční riziko. Prostor stodoly s majestátním vysokým stropem je ideální pro vytvoření luxusního loftu, firemního sídla nebo i jiné komerční využití. Potenciál zvyšuje i připravované připsání parcely zahrady 120m². Termín prohlídek plánujeme na 31.10. 2025. Pro více informací nás bez váhání kontaktujte.

Prodej obchodního prostoru 450 m² Pražská třída, Hradec Králové - Kukleny
Prodej obchodního prostoru 450 m² Pražská třída, Hradec Králové - Kukleny Hradec Králové, Kukleny, Pražská třída, 11
29 250 000 Kč
65 000 Kč na m²
450 m² 4 tento

Moderní komerční prostory v reprezentativní budově Rubicon - Pražská třída, Hradec Králové Nabízíme k prodeji komerční prostory v nově zrekonstruované budově Rubicon na prestižní adrese Pražská třída 691, Hradec Králové. Budova má 4 nadzemní a 1 podzemní podlaží a prošla kompletní modernizací - od nového exteriéru až po vkusně upravené společné prostory. Popis objektu: Reprezentativní vstupní hala s recepcí Nový výtah a komfortní schodiště Toalety a kuchyňka na každém patře Podzemní podlaží vhodné pro sklad nebo zázemí Možnost parkování na veřejném parkovišti v okolí budovy Flexibilita prostor: Každé patro nabízí otevřený a variabilní prostor, který lze přizpůsobit potřebám zájemce. Zájemce si může určit velikost i účel využití (kanceláře, showroom, ordinace, služby, lehká výroba aj.) a prostor bude následně upraven na míru. Budova Rubicon nabízí moderní zázemí, reprezentativní vzhled a skvělou dostupnost - nachází se v centru města, kousek od hlavního nádraží s výbornou dopravní dostupností i viditelností z frekventované Pražské třídy. Shrnutí: Lokalita: Pražská třída 691, Hradec Králové Typ: kancelářské / obchodní / multifunkční prostory Stav: po kompletní rekonstrukci Velikost: dle dohody (možnost dělení) Cena: 65.000,-/m2 Zavolejte mi a domluvíme si prohlídku! Pro komunikaci uvádějte evidenční číslo zakázky N114576.

Prodej činžovního domu 1321 m² Velké náměstí, Hradec Králové
Prodej činžovního domu 1321 m² Velké náměstí, Hradec Králové Hradec Králové, Velké náměstí, 48
79 998 000 Kč
48 250 Kč na m²
1658 m² 6 tento

Jedna z posledních možností koupit dva unikátní měšťanské domy v nejlepší historické lokalitě v centru Hradce Králové. Majitel nabízí možnost prodeje na splátky s úrokem jako od banky. Domy jsou rozděleny Prohlášením vlastníka na jednotky, připraven na prodej po jednotkách. Včetně dechberoucích teras za domem k zástavbě a dvora, kde lze realizovat novostavbu dvě a půl patra. Všechny bytové i nebytové prostory pronajaty. Domy „U radnice“ se nachází v prémiové lokalitě krajského města Hradec Králové, právem nazývaného salon České republiky. Jedná se o dva historické domy na Velkém náměstí č.p. 39 a 40, naproti katedrále Sv. Ducha. Do domů se vstupuje impozantní chodbou s klenutými stropy. V přízemí a podzemních podlažích se nacházela dle místních nejlepší restaurace „U radnice“. V roce 2014 a 2025 proběhla kompletní nákladná rekonstrukce bytů a nebytových prostor. Nejžádanější lokalita v Hradci Králové, 20 metrů naproti katedrále, kde je velmi obtížné sehnat nemovitost na prodej. V domech se nachází celkem osm větších bytů, velký půdní prostor k vestavbě (77,63 m2; 82,14 m2; 82,22 m2; 82,55 m2) a nebytové prostory nákladně zrekonstruované pro gastro provoz. Všechny byty disponují masivní původní dřevěnou podlahou, stejně jako zárubně a dveře je v barvě přírodního dřeva. Jednotky jsou dobrém stavu, postupně procházely rekonstrukcemi - rozvodů, podlah, omítek, koupelen, systémů vytápění, ohřevu vody. Mají vlastní plynové kotle s ústředním rozvodem do závěsných radiátorů. V objektu se nachází krásné původní prvky - dřevěné schodiště, dřevěné zárubně, původní dveře, okna, klenuté románské stropy v suterénu apod. Za domy se nachází dvůr se zahrádkou, za ní čtyři terasy. Oba domy mají společný vstup a každý své schodiště. Možnost vestavby výtahu, který bude obsluhovat oba domy. Část nebytových prostor s přístupem z náměstí. Ve dvoře dříve stála další budova, kterou je možné po získání příslušných povolení znovu postavit. Terasy svažující se od domů na Velkém náměstí dolů až k ulici Komenského je možné také po získání příslušných souhlasů zastavět. Prodejní cena zahrnuje budovy, zastavěný pozemek, dvůr i terasy. Domy jsou již rozděleny na základě Prohlášení vlastníka budovy na jednotky. V roce 2025 dojde k instalaci energeticky úsporných moderních tepelných čerpadel, která nahradí plynové kotle. Možnost novostavby ve dvoře. Atraktivní lokalita, v okolí nadstandardní dostupnost veškerých služeb včetně kulturních zařízení. Z hlediska životního prostředí klidná lokalita, v docházkové vzdálenosti parky, zastávka dálkových spojů, MHD přímo v místě. Parkování je možné přímo před objektem. Hodnota dle znaleckého posudku Grant Thornton z prosince 2023 činí 80.658.000,- Kč. V této částce ale není obsažen potenciál zástavby dvora kde dříve stála budova, a teras, díky kterému může investor dosáhnout návratnost investice přes 150%. Více informací na osobní schůzce.

Prodej výrobní haly, prostoru 11800 m² Dřevařská, Hradec Králové - Pouchov
Prodej výrobní haly, prostoru 11800 m² Dřevařská, Hradec Králové - Pouchov Hradec Králové, Pouchov, Dřevařská
obchodovatelné
11800 m²

Nabízíme Vám příležitost koupě výrobního areálu dřevařské firmy nacházející se v Hradci Králové. Areál o velikosti 8,900 m² se nachází na strategickém místě s velmi dobrou dopravní dostupností jak v rámci města, tak i napojením na hlavní silniční tahy. Díky své poloze a charakteru představuje zajímavou příležitost pro podnikatelské využití. Součástí areálu je hala s užitnou plochou 1,400 m², kancelářské prostory o výměře 400 m² a skladovací stany o celkové ploše 1,100 m².

Prodej činžovního domu 1200 m² Špitálská, Hradec Králové
Prodej činžovního domu 1200 m² Špitálská, Hradec Králové Hradec Králové, Špitálská
95 000 000 Kč
67 857 Kč na m²
1400 m² 5 tento

Trofejní nemovitost v centru Hradce Králové, Špitálská ulice, historické centrum, perfektní stav, stabilní výnos Činžovní dům v historickém centru Hradce Králové přímo na Velkém náměstí. Dům prošel kompletní rekonstrukcí s vysokým respektem k historickému rázu domu, perfektní stav bez nutnosti dalších investic. V domě je provoz restaurace a kancelářské prostory se stabilním výnosem. Restaurační provoz využívá celkovou plochu 512 m2 (1.pp zázemí, 1. a 2. NP provoz). Ve 3. - 5. nadzemní podlaží luxusní kancelářské prostory o celkové ploše 688 m2 s vlastním vchodem ze Špitálské ulice. Nabídka vhodná pro silné investory, kteří hledají stabilní výnos a lukrativní nemovitost. Pro více informací kontaktujte prosím naši kancelář.

Prodej komerční nemovitosti 160 m² Zelená, Hradec Králové - Kukleny
Prodej komerční nemovitosti 160 m² Zelená, Hradec Králové - Kukleny Hradec Králové, Kukleny, Zelená, 26
14 990 000 Kč
93 688 Kč na m²
160 m² 2 tento

Exkluzivně nabízíme rodinný dům se dvěma bytovými jednotkami a obrovskou zahradou - prostor, soukromí a skvělé možnosti využití! Hledáte domov, kde je dostatek prostoru pro dvě rodiny, soukromí i velkorysou zahradu, která Vám vezme dech? Pak je tato nemovitost přesně pro Vás! Nabízíme zděný, částečně podsklepený, dvoupodlažní rodinný dům se dvěma samostatnými bytovými jednotkami o dispozici 3+1 a s nadstandardním pozemkem o celkové výměře 2.603 m². ✔ Každý byt má vlastní vstup - ideální pro dvě generace nebo dvě rodiny, které chtějí žít blízko sebe, ale s maximálním soukromím. ✔ V každém bytě najdete samostatné WC, prostornou koupelnu a praktickou komoru. ✔ Přízemní byt prošel v roce 2012 rekonstrukcí. ✔ Velkorysý byt v patře vznikl přístavbou kolem roku 1960. ✔ Unikátní terasa o ploše více než 130 m² nad garážemi je skvělým místem na letní grilovačky, rodinné oslavy nebo jen tak na relax s výhledem do zeleně. A teď ta zahrada! 2.159 m² soukromí, zeleně a možností. Na její konec sotva dohlédnete - s délkou kolem 130 m se nemusíte bát, že by Vám sousedi koukali přímo do talíře. Milovníci prostoru si tu mohou splnit sny - třeba vybudovat vlastní minigolf, bazén, tenisový kurt, zahradničit nebo jen užívat klid a pohodu. Dům je napojen na všechny inženýrské sítě (městská voda, veřejná kanalizace, plyn), na zahradě je navíc vlastní studna. Vytápění a ohřev vody je řešeno plynovým kotlem a plynovými ohřívači. Plastová okna byla měněna v roce 2010. Součástí jsou také garáže, dílny, kůlny, hospodářské části a bývalá sauna. Přes průjezd z ulice Zelená se pohodlně dostanete až na zahradu. Lokalita, která Vás bude bavit Dům se nachází v klidné části Hradce Králové - Kukleny, v ulici Zelená. Do centra se dostanete za pár minut autem, autobusem nebo klidně na kole. Na dálnici D11 jste za 3 minuty - ideální pro každodenní dojíždění i víkendové výlety. Pro koho je dům ideální? Pro dvě rodiny, které chtějí bydlet pohromadě, ale s dostatkem soukromí. Pro větší rodinu, která ocení prostor a zahradu snů. Nebo jako investici - dům je nyní pronajat slušným nájemníkům s tříměsíční výpovědní lhůtou. Projděte si dům i zahradu z pohodlí domova! Součástí inzerátu je virtuální 3D prohlídka - projděte si celý dům, změřte si místnosti nebo se podívejte na půdorysy či venkovní prostory v pohledu 360°. Fotografie jsou z doby, kdy byl dům prázdný a nepronajat. Pokud Vás tato nabídka zaujala, napište mi e-mail - rád Vám poskytnu více informací a domluvíme si prohlídku. Ing. David Křepinský, MBA Prohlídky budou organizovány po 4. 8. 2025

Prodej obchodního prostoru 1871 m² Náhon, Hradec Králové - Malšovice
Prodej obchodního prostoru 1871 m² Náhon, Hradec Králové - Malšovice Hradec Králové, Malšovice, Náhon, 58
29 980 000 Kč
16 024 Kč na m²
1871 m² 1 tento

Naše společnost Vám exkluzivně nabízí provozní areál sestávající z jednopodlažní administrativně - výrobní budovy (738m2 zastavěná plocha a nádvoří, vedený v katastru nemovitostí jako rodinný dům) a přiléhající budovy (1133m2 zastavěná plocha a nádvoří, vedený jako jiná stavba), celková výměra pozemku 1871 m2, umístěný v centrální části města Hradce Králové, v jedné nejžádanějších lokalit - katastrální území Malšovice. Areál má v současné době charakter dvora, tvořenou jednopodlažní zděnou budovou s podkrovím a jednopodlažním skladem. Z východní a západní strany k areálu přiléhají pozemky se stavebními objekty, přístup je z hlavní ulice Náhon. V areálu momentálně působí společnost AHRA Motors, s dlouholetými zkušenostmi ve všech oblastech oprav motorů. Nemovitost je napojena na všechny inženýrské sítě. Areál je vhodný pro různé sektory podnikání jako logistika, výroba, skladování, autodoprava nebo developerské projekt, k dispozici je projektová dokumentace pro výstavbu bytového domu (až 16 bytů v 3 podlažním bytovém domu), jež čeká na schválení nového územního plánu (12/2025). Díky skvělé lokalitě, možnostem rozšíření a dobrému napojení na infrastrukturu je tento areál ideální pro dlouhodobé investice. Nemovitost je stále plně provozována a prohlídky jsou možné po dohodě o víkendu. Pro komunikaci uvádějte evidenční číslo zakázky N114308.

Prodej ordinace 778 m² Spojovací, Hradec Králové - Svobodné Dvory
Prodej ordinace 778 m² Spojovací, Hradec Králové - Svobodné Dvory Hradec Králové, Svobodné Dvory, Spojovací, 17
15 000 000 Kč
19 280 Kč na m²
778 m²

Zprostředkujeme Vám prodej jedinečného domu s nebytovým prostorem ve Svobodných Dvorech v ulici Spojovací v Hradci Králové. Celková užitná plocha domu je cca 335 m2. V přízemí se nachází nebytový prostor se samostatným vchodem o užitné ploše cca 150 m2, má vstupní chodbu, prodejnu, open-space kancelář, dva sklady, sociální zázemí včetně sprchy a WC, tento prostor je vhodný pro účely kanceláře, prodejny, ordinace aj. V 1. patře je užitná plocha cca 147 m2 z toho cca 58 m2 má zahradní terasa, kde jsou umístěna krbová kamna vhodná na letní grilování. Dále je vstupní chodba, WC a technická místnost, kuchyň, obývací pokoj s jídelnou a schodiště. Ve 2. patře se nachází technická místnost s přípojkami na pračku a sušičku, dva pokoje s balkónkem a vstupem do vnitrobloku a další dva pokoje s balkónkem jsou se vstupem na ulici, dále je zde koupelna s vanou, sprchovým koutem a WC. Za domem je menší zahrada. Před domem je menší předzahrádka a dále i možnost parkování. Veškerá občanská vybavenost v dosahu (zastávka MHD, základní a mateřská škola, pošta, lékař, potraviny, restaurace, blízko dálnice D1). Klidné bydlení. Doporučujeme prohlídku.

Prodej kanceláře 335 m² Spojovací, Hradec Králové - Svobodné Dvory
Prodej kanceláře 335 m² Spojovací, Hradec Králové - Svobodné Dvory Hradec Králové, Svobodné Dvory, Spojovací, 17
15 000 000 Kč
44 776 Kč na m²
335 m²

Zprostředkujeme Vám prodej jedinečného domu s nebytovým prostorem ve Svobodných Dvorech v ulici Spojovací v Hradci Králové. Celková užitná plocha domu je cca 335 m2. V přízemí se nachází nebytový prostor se samostatným vchodem o užitné ploše cca 150 m2, má vstupní chodbu, prodejnu, open-space kancelář, dva sklady, sociální zázemí včetně sprchy a WC, tento prostor je vhodný pro účely kanceláře, prodejny, ordinace aj. V 1. patře je užitná plocha cca 147 m2 z toho cca 58 m2 má zahradní terasa, kde jsou umístěna krbová kamna vhodná na letní grilování. Dále je vstupní chodba, WC a technická místnost, kuchyň, obývací pokoj s jídelnou a schodiště. Ve 2. patře se nachází technická místnost s přípojkami na pračku a sušičku, dva pokoje s balkónkem a vstupem do vnitrobloku a další dva pokoje s balkónkem jsou se vstupem na ulici, dále je zde koupelna s vanou, sprchovým koutem a WC. Za domem je menší zahrada. Před domem je menší předzahrádka a dále možnost i parkování. Veškerá občanská vybavenost v dosahu (zastávka MHD, základní a mateřská škola, pošta, lékař, potraviny, restaurace, blízko dálnice D1). Klidné bydlení. Doporučujeme prohlídku.

Prodej kanceláře 1600 m² Pražská třída, Hradec Králové - Kukleny
Prodej kanceláře 1600 m² Pražská třída, Hradec Králové - Kukleny Hradec Králové, Kukleny, Pražská třída, 11
obchodovatelné
1600 m² 5 tento

Nabízíme k prodeji moderně zrekonstruovaný komerční objekt v Hradci Králové, ul. Pražská třída. K dispozici 4 nadzemní a 1 podzemní podlaží o celkové výměře 1600 m2. Lze jednat o prodeji i po částech. Tyto prostory jsou vhodné jako kanceláře, ordinace, provozovny, školy apod. Parkování je možné před budovou. Ideální investice pro obchodní a kancelářské účely.

Prodej obchodního prostoru 300 m² Střelecká, Hradec Králové
Prodej obchodního prostoru 300 m² Střelecká, Hradec Králové Hradec Králové, Střelecká, 27
14 500 000 Kč
48 333 Kč na m²
300 m² 1 tento

Nabízíme k prodeji komerční prostor o velikosti 300 m² (prodejna 210 m² + sklad 90 m²) v centru Hradce Králové s dlouhodobým nájemcem. Roční čistý nájem činí 920 000 Kč, smlouva je uzavřena do roku 2029 s možností každoroční indexace o inflaci. Čistý výnos 6,34 % p.a. Možnost převodu do osobního vlastnictví k 23.3.2030. Dům projde revitalizací fasády bez dopadu na náklady vlastníka nebytového prostoru. Zn. Stabilní investice s jistým výnosem a růstem hodnoty.

Prodej výrobní haly, prostoru 2133 m² Jana Krušinky, Hradec Králové - Pražské Předměstí
Prodej výrobní haly, prostoru 2133 m² Jana Krušinky, Hradec Králové - Pražské Předměstí Hradec Králové, Pražské Předměstí, Jana Krušinky
obchodovatelné
2133 m² 2 tento

4692 - Provozní areál sestávající z jednopodlažní administrativně - výrobní budovy ( cca 400 m2 ), nové dvoupodlažní budovy ( výroba/sklad, celkem cca 1.600 m2 ), budovy garáží ( nebo skladovacích prostor - cca 150 m2 ) a pozemků o celkové výměře 5.816 m2, umístěný v centrální části města. Veškeré inženýrské sítě, perfektní stav, výhodná poloha. V případě zájmu volejte makléře.

Prodej obchodního prostoru 21 m² Pražská třída, Hradec Králové - Kukleny
Prodej obchodního prostoru 21 m² Pražská třída, Hradec Králové - Kukleny Hradec Králové, Kukleny, Pražská třída
1 885 360 Kč
89 779 Kč na m²
21 m² 1/5 tento

Nabízíme k prodeji poslední nový komerční prostor o podlahové ploše 20,60 m² v dokončeném bytovém projektu Rezidence Thera, situovaném v atraktivní lokalitě Hradce Králové - Kukleny. Tento prostor je ideální volbou pro vaše podnikání díky vynikající viditelnosti z hlavní ulice - Pražské třídy. Proč právě tento komerční prostor? 1. Skvělá lokalita: Prostor je umístěn v dynamicky se rozvíjející části Hradce Králové - Kukleny, což zajišťuje vysoký potenciál růstu vašeho podnikání. 2. Vynikající viditelnost: Díky své poloze přímo u hlavní ulice - Pražské třídy, nabízí prostor výjimečnou viditelnost pro kolemjdoucí a projíždějící, což může výrazně zvýšit návštěvnost vaší provozovny. 3. Moderní design: Velká prosklená plocha nejenom přináší přirozené světlo, ale také umožňuje efektivní prezentaci vaší značky nebo produktů, čímž přitahuje pozornost potenciálních zákazníků. 4. Snadná dostupnost: Prostor se nachází v přízemí s přímým vstupem z chodníku, což usnadňuje přístup pro vaše zákazníky i dodavatele. Zastávka autobusu je přímo u bytového domu. 5. Energetická úspora: Energetická třída bytového domu A, vytápění prostoru infrapanely, řízené větrání s rekuperací, FVE na střeše domu vlastněná SVJ pro energetickou efektivitu. Komerční prostor také disponuje přípravou na venkovní žaluzie. 6. Příslušenství na dokoupení: Garážové stání, venkovní parkovací stání. Financování: Zdarma vám pomůžeme zajistit financování koupě nemovitosti prostřednictvím našeho partnera. Investice do tohoto komerčního prostoru znamená nejen zajímavou podnikatelskou příležitost, ale také strategickou investici do budoucnosti. Nezmeškejte tuto jedinečnou příležitost a kontaktujte nás pro více informací nebo prohlídku. Tým Reality Kolenović

Prodej apartmánů 287 m² Tomkova, Hradec Králové
Prodej apartmánů 287 m² Tomkova, Hradec Králové Hradec Králové, Tomkova, 5
14 900 000 Kč
51 916 Kč na m²
287 m² 2 tento

Nabízíme k prodeji městský dům na adrese Tomkova 185/7 v Hradci Králové. Nemovitost se nachází v samotném centru města, v bezprostřední blízkosti Velkého náměstí. Poloha v historické části Hradce Králové podtrhuje výjimečnost této nabídky. Jedná se o řadový patrový čtyřosý dům s lichoběžníkovým štítem a sedlovou střechou s polovalbou. Fasáda domu je členěna soklem, profilovanou dělící a hlavní římsou a zakončena štítem lemovaným jednoduchou lizénou. Architektonické prvky doplňují jednoduché pásové šambrány kolem oken a vstupu. V přízemí je umístěn portál garáže a vstupní dveře. Okna jsou z pohledu historie již novodobá, členěná do tvaru písmene T, půdní okénka vycházejí z původního historického řešení. Dům je v současnosti prázdný a dlouhodobě nevyužívaný. Stávající majitelka žije v zahraničí a nemá možnost využít maximální potenciál objektu. Stav nemovitosti vyžaduje celkovou rekonstrukci a modernizaci, což je potřeba mít na paměti již při prvním posouzení. Zároveň tato skutečnost otevírá prostor pro vytvoření nové koncepce a přizpůsobení objektu současným potřebám a její modernizaci. Objekt je dvouúrovně podsklepený, sklepy poskytují prostor pro technické zázemí nebo skladování, popřípadě pro vybudování budoucí vinotéky. Součástí domu je garáž pro dvě vozidla, která může zůstat v této funkci, případně může být přeměněna na obchodní jednotku, ateliér či jiný provozní prostor. Vnitřní dispozice zahrnuje dvě obytná patra, prostornou půdu vhodnou k vestavbě bytových jednotek a již zmiňovaný sklep. Vzhledem k charakteru okolní zástavby a její výšce, lze zvážit i zvýšení o jedno další podlaží, tuto možnost je, ale nutné posoudit v součinnosti s památkovými orgány, jelikož dům je veden jako kulturní památka. Na objektu proběhlo v minulosti několik úprav a oprav, avšak celkově je nemovitost určena k revitalizaci a kompletní rekonstrukci tak aby byla plně funkční. Z hlediska potenciálu je možné přetvořit dům na nájemní objekt s maximálním počtem menších bytových jednotek, zrekonstruovat na soukromou rezidenci nebo sídlo firmy. Díky své poloze v centru města se otevírá možnost stabilního využití nejen pro dlouhodobé bydlení, ale i pro případné krátkodobé pronájmy. Atraktivní adresa navíc nabízí kombinaci rezidenčního a komerčního využití - přízemí lze ponechat jako parkovací kapacitu nebo jej přizpůsobit menším provozovnám, kancelářím či ateliérům. Lokalita v samotném jádru města zajišťuje výbornou dostupnost všech služeb, kulturních institucí a univerzitních budov. V docházkové vzdálenosti se nachází Velké náměstí, univerzitní areály, obchody, restaurace, kavárny a úřady. Historické centrum Hradce Králové patří mezi nejvyhledávanější investiční lokality, což zvyšuje hodnotu nemovitosti a její atraktivitu do budoucna. Dům disponuje menším dvorem ve vnitrobloku budov, kde je možné například umístit terasu, kolárnu či vyhrazený prostor pro komunální odpad, V případě zájmu o tuto nabídku mě neváhejte oslovit. Nemovitost Vám ráda představím osobně.

Prodej kanceláře 252 m² Mostecká, Hradec Králové
Prodej kanceláře 252 m² Mostecká, Hradec Králové Hradec Králové, Mostecká, 3
9 400 000 Kč
37 302 Kč na m²
252 m² 2 tento

Statutární město Hradec Králové vyhlašuje výběrové řízení na prodej souboru nemovitých věcí v ul. Mostecká - nebytové jednotky 290/504 o velikosti 160,70 m2 v budově č.p. 290, na pozemku stp. č. 360/1 spolu s podílem na společných částech nemovitých věcí ve výši 1607/16870 a bytové jednotky 290/22 (2+kk) o velikosti 91,90 m2 v budově č.p. 290, na pozemku stp. č. 360/1 spolu s podílem na společných částech nemovitých věcí ve výši 1607/16870, vše v k.ú. Hradec Králové, v části obce Hradec Králové, město Hradec Králové. Nebytová jednotka se nachází ve 2. NP a sestává z chodby, sedmi kanceláří, dvou WC, úklidové místnosti a kuchyňky. Bytová jednotka se nachází ve 2. NP a sestává z chodby, čtyř místností a balkonku. Obě jednotky jsou v současné době propojené. Sociální zařízení společné s nebytovou jednotkou č. 290/504. K dispozici přívod elektrické energie, vodovod. Topení ústřední dálkové. Nabídky nutno podat nejpozději do 8.10.2025. Další informace zašleme mailem nebo je naleznete na https://edeska.mmhk.cz/eDeska/eDeskaDetail.jsp?detailId=118402. Prohlídky jsou možné dne 17.9.2025 v 10.00 - 10.30 hodin a 29.9.2025 v 15.00 - 15.30 hodin.

Otevřít mapu Mapa