20krát více reklam od majitelů

Sbíráme reklamy z největších portálů

Realitního makléře od majitele rozeznáváme podle telefonního čísla

Ukážeme, jak se cena změnila

Odstranění duplicitních reklam

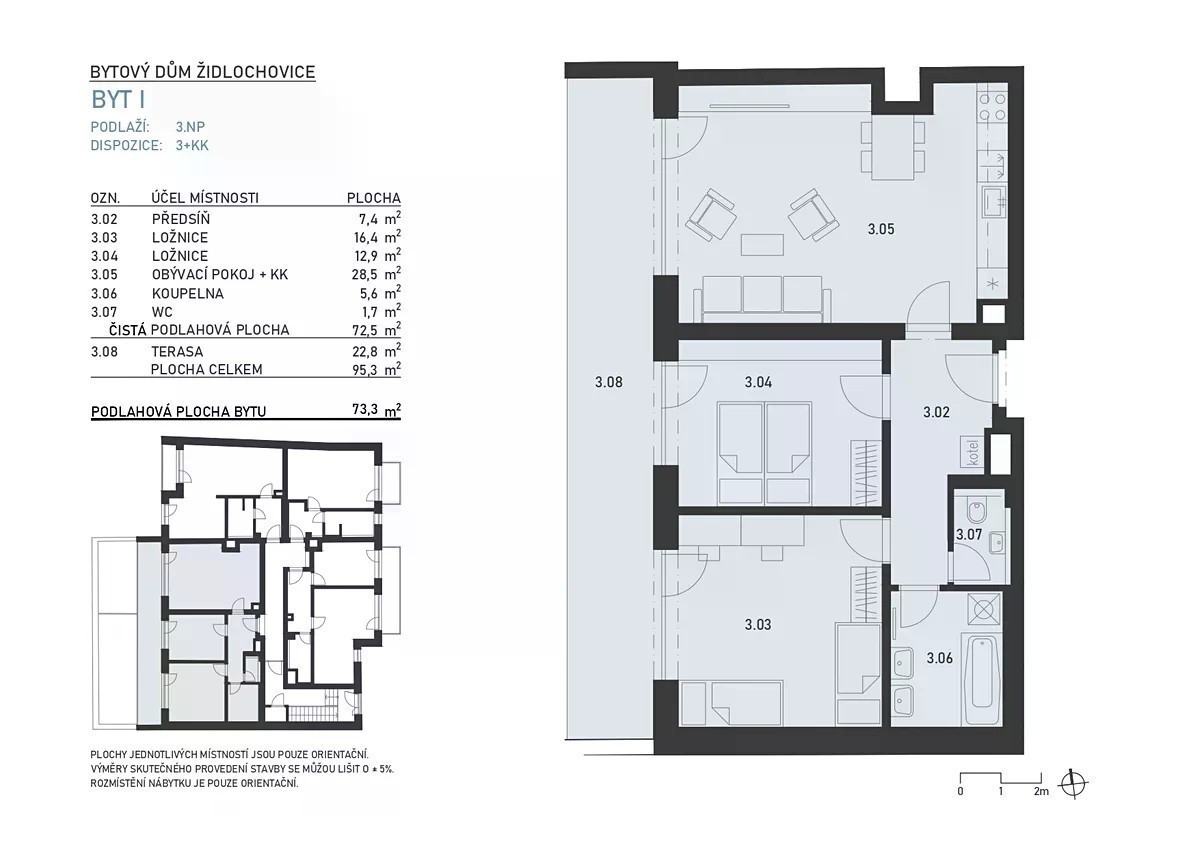
Prodej bytu 3+kk 73 m² Masarykova, Židlochovice

Židlochovice, Brno-venkov, Masarykova
  • Objekt CZ-1327873418
  • přidáno:
  • aktualizováno:
fotografie - Prodej bytu 3+kk 73 m² Masarykova, Židlochovice fotografie - Prodej bytu 3+kk 73 m² Masarykova, Židlochovice fotografie - Prodej bytu 3+kk 73 m² Masarykova, Židlochovice fotografie - Prodej bytu 3+kk 73 m² Masarykova, Židlochovice
  • Plná velikost
  • Hledat podobné
fotografie - Prodej bytu 3+kk 73 m² Masarykova, Židlochovice fotografie - Prodej bytu 3+kk 73 m² Masarykova, Židlochovice fotografie - Prodej bytu 3+kk 73 m² Masarykova, Židlochovice fotografie - Prodej bytu 3+kk 73 m² Masarykova, Židlochovice

Nabízímek prodeji byt kategorie 3+kk o velikosti 73,5 m2 + 23,4 m2 terasa. Byt se nachází v novostavbě bytového domu na ulici Masarykova v Židlochovicích. V domě, který bude mít tři nadzemní podlaží, bude vybudováno celkem 12 bytových jednotek o velikosti 1+kk až 3+kk s balkony, terasami a zahrádkou, dva vinné sklepy a dvě garáže. Dále budou ve dvorní části vystavěna parkovací stání pro 10 automobilů. Každý byt bude vytápěn samostatným závěsným kondenzačním plynovým kotlem, který zajistí také přípravu teplé vody. K bytu je možné koupit sklep, garáž, parkovací stání pro automobil a parkovací stání pro motocykl. Energetický štítek bude na stupnici „B“ velmi úsporný. Prodej nemovitostí je určen do osobního vlastnictví. Pořízení bytu v tomto domě doporučujeme, jak k trvalému bydlení, tak na investici. K financování koupě bytu je možné využít také hypotéční úvěr.

Poloha na mapě, užitečná místa a trasy

Objekty v okolí

Židlochovice, Brno-venkov, Masarykova
přidat k oblíbeným Prodej bytu 2+kk 62 m² Masarykova, Židlochovice
  • 6 720 000 Kč
  • 62 m²
Židlochovice, Brno-venkov, Masarykova
Modřice, Brno-venkov, Masarykova
přidat k oblíbeným Prodej bytu 3+kk 95 m² Masarykova, Modřice
  • 8 850 000 Kč
  • 95 m²
Modřice, Brno-venkov, Masarykova