81 390 objekty

Prodej rodinného domu 148 m², pozemek 317 m² V Trníčku, Praha - Dejvice
Prodej rodinného domu 148 m², pozemek 317 m² V Trníčku, Praha - Dejvice Praha, Praha 6, Dejvice, V Trníčku
29 385 000 Kč
198 547 Kč na m²
5-pokoj 148 m²

Krajní řadový rodinný dům s označením TRJE.D3, s dispozicí 5+kk s užitnou plochou 148,0 m2 a se zahradou 173,0 m2 je navržen architektonickým ateliérem Abtsmolen. Tři řadové rodinné domy typu D, z nichž každý má své nezpochybnitelné osobní kouzlo, se nachází na začátku ulice V Trníčku. Dům je vyprojektován jako nízkoenergetický (PENB-B), zdrojem tepla i chladu je tepelné čerpadlo vzduch-voda, když topení zajišťuje teplovodní podlahové vytápění a chlazení nástěnné fancoilové jednotky. Větrání je zajištěno rekuperační jednotkou s entalpickým výměníkem, které je energeticky velmi efektivní a vhodné také pro alergiky. Samozřejmostí jsou dřevěná okna s trojsklem doplněná venkovními elektrickými žaluziemi a rovněž elektronické zabezpečení domu včetně kamery u vstupních dveří i ovládání přes SmartHome. Všechny domy mají technickou připravenost pro zabudování krbové vložky 3-6 kW, centrálního vysavače, umístění fotovoltaických panelů a dostatečnou kapacitu příkonu pro dobíjení elektromobilu. Řadový dům typu D nabízí v 1. NP vstup do domu z ulice vstupní halou s úložným prostorem a obytný prostor s kuchyňským koutem. Na tomto podlaží je také toaleta spojená s technickou místností a garáž pro jeden automobil. Z obytného prostoru i jídelny můžete vstoupit přímo na terasu a navazující zahradu. Ve 2. NP naleznete hlavní ložnici s vlastní koupelnou, další tři místnosti a druhou koupelnu s vanou i sprchou. Nejmenší z pokojů je vhodný jako pracovna, anebo hostinský pokoj. Dům je možné upravit do dispozice 4+kk. Dva pokoje ve 2.NP orientované na severovýchod do zahrady mohou být nahrazeny rodičovskou ložnicí s en-suit šatnou a koupelnou s celkovou výměrou téměř 30 m2. Projekt top‘ rezidence Jenerálka vyniká svojí výjimečnou polohou uprostřed zeleně, zároveň však nabízí výbornou dostupnost centra Prahy, a to jak autem, tak městskou dopravou. Zkušený tým společnosti KKCG Real Estate Group realizuje přímý prodej domů. Dokončení projektu je naplánované na konec roku 2025. Základní ideou urbanistického návrhu je „bydlení uprostřed zeleně“. Na kompletní nabídku řadových domů, dvojdomů a solitérních vil top' rezidence se podívejte na webových stránkách projektu či nás kontaktujte.

Prodej chaty 15 m², pozemek 431 m² Mezitraťová, Praha - Hrdlořezy
Prodej chaty 15 m², pozemek 431 m² Mezitraťová, Praha - Hrdlořezy Praha, Praha 9, Hrdlořezy, Mezitraťová, 1
3 950 000 Kč
263 333 Kč na m²
1-pokoj 15 m² 1 tento

Prodej chaty, která se nachází v zahrádkářské kolonii v Praze 9 - Hrdlořezy. IS přivedeny - vlastní elektřina a sezónní voda (období duben - září. ) Výborná dopravní dostupnost 1 min. chůze BUS zastávka, 10 min. metro A, zast. Želivského. K chatě přísluší rohový pozemek o výměře 431 m². Chata je určená k rekonstrukci. V případě zájmu možnost výstavby nové chaty. Chata se nachází v blízkosti Rezidence Azalea. Volné ihned k dispozici.

Prodej rodinného domu 105 m², pozemek 412 m² Splavná, Praha - Kyje
Prodej rodinného domu 105 m², pozemek 412 m² Splavná, Praha - Kyje Praha, Praha 9, Kyje, Splavná
14 990 000 Kč
142 762 Kč na m²
4-pokoj 105 m² 2 tento

Nabízíme k prodeji rodinný dům 3+1/G,S, s podlahovou plochou 90 m2, 15 m2 garáž, Praha 9 - Kyje. RD se nachází v klidné části obce Prahy 9 - Kyje (Na hrádku), byl kolaudován v roce 1945 s dispozicí 3+1 - cca 90 m2, garáží cca 15 m2, menší přístavbou (kůlna) na pozemku s výměrou 412 m2. Nemovitost nabízí možnosti k případné přestavbě či úpravám dle vlastních představ. Dům lze upravit na dvě samostatné bytové jednotky o dispozici 2+kk a 2+kk. V přízemí se nachází vstupní chodba, koupelna se sprchovým koutem a samostatné WC, příprava na kuchyň, spíž, obývací pokoj. V mezi patře je vstup na terasu. Ve 2.nadzemním podlaží se nachází ložnice, komora, dětský pokoj (aktuálně využívaný jako kuchyňský kout vybavený vestavnými spotřebiči značky Samsung - indukční varná deska, myčka, mikrovlnná trouba, elektrická trouba). Vytápění domu a ohřev vody zajišťuje tepelné čerpadlo Tepelné čerpadlo NIBE F2120 vzduch/voda, s možností ohřevu vody elektrickým bojlerem umístěným v suterénu domu. Nemovitost je napojena na veškeré inženýrské sítě - vodovod, veřejná kanalizace, plynová přípojka, elektřina. Dům je částečné podsklepený. Částečná rekonstrukce proběhla mezi lety 2015 - 2025 - skladba podlahy - provětrávaná podlaha, která je zateplená izolací EPS 150 polystyrenem 20 cm. Zaklopená OSB deskami, Rozvody elektroinstalace v mědi i s novými jističi, zásuvky s vypínači firmy od firmy Schneider Electric. Rozvod vody a odpadu v plastu, plastová okna (dvojskla), velkoformátové odklady a dlažby. V koupelně GROHE Cube umyvadlová baterie a podomítková sprchová termostatická baterie Grohe cube + hlavová sprcha. Nové interiérové dveře a světla, na podlahách plovoucí podlaha a dlažba, koberec. Kuchyň vybavená dřezovou baterii Grohe + granitový dřez. Většina světel Eglo LED RGB bezdrátové ovládání pomocí aplikace + klasicky vypínačem. Na pozemku je garáž s vjezdem z ulice. Zahrada zajištuje úplné soukromí a je orientovaná na severozápad. Dobrá dopravní dostupnost MHD, bus zastávka Lipnická linky č. 186, 201 a 953 (256 m), tram zastávka Lehovec (1453 m), vlak Praha - Rajská zahrada (710 m) a metro B - stanice Rajská zahrada (810 m). Benefitem je rychlý́ nájezd na Pražský okruh a dálnici D10. V okolí veškerá občanská vybavenost - školy, školky, mateřská škola, lékárny, pošta, večerka, obchody, Centrum Černý́ Most, CineStar Černý́ Most, restaurace, pizzerie, Supermarket Albert, Lidl, Kaufland, poliklinika Parník, veterinární klinika, Bowling Koule, golf, fitness, cyklostezky, Kyjský́ rybník, dětské hřiště. Více informací u makléře. Na tuto nemovitost Vám pomůžeme zajistit financování s nízkou úrokovou sazbou. Doporučujeme prohlídku.

Prodej bytu 4+kk 115 m² K Bažantnici, Hořovice
Prodej bytu 4+kk 115 m² K Bažantnici, Hořovice Hořovice, Beroun, K Bažantnici
8 899 000 Kč
69 523 Kč na m²
4-pokoj 128 m² 3 tento

Nabízíme k prodeji byt 4+kk č. A231 o celkové ploše 128,62 m2 se 3 balkony a sklepem. Byt se nachází ve 3. podlaží domu 5. etapy budovy A2 projektu Bydlení Hořovice. Plocha balkonů je 5,03 m2 a 2x 4,1 m2, plocha sklepa je 7,55 m2. Nastěhování léto 2026. Představujeme projekt Bydlení Hořovice Bydlení Hořovice nabízí moderní byty v malebném středočeském Hořovicku, navržené pro komfortní a kvalitní bydlení mezi Prahou a Plzní. Vynikající lokalita Hořovice nabízí snadnou dostupnost do Prahy a Plzně po dálnici D5 i vlakem. Město je bohaté na historii, kulturní dědictví a nabízí kompletní občanskou vybavenost - nemocnice, školky, školy, obchody a služby. Moderní byty s prvotřídním vybavením Byty různých velikostí a dispozic jsou navrženy s důrazem na kvalitu a komfort. Nabízí kvalitní podlahy, elegantní interiérové vybavení, energetickou úspornost, prostorné balkony, parkování a možnost personalizace bytu. Příroda a volný čas Okolí Hořovic nabízí krásné přírodní scenérie, pěší turistiku, cykloturistiku a další volnočasové aktivity. Zhodnocení investice Bydlení Hořovice je výhodná investice díky kvalitní stavbě a atraktivní lokalitě, zajišťující stabilní a rostoucí hodnotu nemovitostí. Proč vybrat Bydlení Hořovice? Nabízí kombinaci klidu a výborné dostupnosti do velkých měst s vysokým standardem stavebních materiálů a vybavení.

Prodej bytu 3+kk 68 m² K Bažantnici, Hořovice
Prodej bytu 3+kk 68 m² K Bažantnici, Hořovice Hořovice, Beroun, K Bažantnici
6 253 000 Kč
64 464 Kč na m²
3-pokoj 97 m² 3 tento

Nabízíme k prodeji byt 3+kk č. A331 o celkové ploše 72,57m² s balkonem a sklepem. Byt se nachází ve 3. nadzemním podlaží budovy A3 projektu Bydlení Hořovice. Plocha balkonu je 4,18 m2, plocha sklepa je 5,96 m2. Nastěhování zima 2026/2027. Představujeme projekt Bydlení Hořovice Bydlení Hořovice nabízí moderní byty v malebném středočeském Hořovicku, navržené pro komfortní a kvalitní bydlení mezi Prahou a Plzní. Vynikající lokalita Hořovice nabízí snadnou dostupnost do Prahy a Plzně po dálnici D5 i vlakem. Město je bohaté na historii, kulturní dědictví a nabízí kompletní občanskou vybavenost - nemocnice, školky, školy, obchody a služby. Moderní byty s prvotřídním vybavením Byty různých velikostí a dispozic jsou navrženy s důrazem na kvalitu a komfort. Nabízí kvalitní podlahy, elegantní interiérové vybavení, energetickou úspornost, prostorné balkony, parkování a možnost personalizace bytu. Příroda a volný čas Okolí Hořovic nabízí krásné přírodní scenérie, pěší turistiku, cykloturistiku a další volnočasové aktivity. Zhodnocení investice Bydlení Hořovice je výhodná investice díky kvalitní stavbě a atraktivní lokalitě, zajišťující stabilní a rostoucí hodnotu nemovitostí. Proč vybrat Bydlení Hořovice? Nabízí kombinaci klidu a výborné dostupnosti do velkých měst s vysokým standardem stavebních materiálů a vybavení.

Prodej vícegeneračního domu 235 m², pozemek 981 m² Na Hvížďalce, Praha - Stodůlky
Prodej vícegeneračního domu 235 m², pozemek 981 m² Na Hvížďalce, Praha - Stodůlky Praha, Praha 5, Stodůlky, Na Hvížďalce, 21
25 500 000 Kč
88 850 Kč na m²
5-pokoj 287 m² 3 tento

Prodej prostorného rodinného domu se třemi podlažími - Praha 5 - Stodůlky Díky třem jednotkám ideální bydlení pro vícegenerační rodinu nebo jako investiční příležitost. Díky dispozičnímu řešení se do domu vejdou dvě až tři generace jedné rodiny, a přitom si každý zachová své soukromí. Dům má celkem tři plně využitelná podlaží, z nichž každé nabízí obytné prostory, koupelnu a dostatek soukromí. 1. NP: (2+1) vstupní hala, prostorná kuchyň, koupelna s toaletou, dva samostatné pokoje. Vstup do garáže a kolny. 2. NP: (3+1) tři pokoje, kuchyň, koupelna s toaletou, vstup na terasu. 3. NP - podkroví: samostatná jednotka 2+kk se střešními okny, vlastní koupelnou a kuchyňským koutem. 1.PP - rozsáhlý a suchý sklep, který zahrnuje technickou místnost, prádelnu a mnoho úložného prostoru. Každá generace tu může mít svůj klidný prostor, zároveň však zůstanete blízko u sebe. Dům je zkolaudován jako rodinný dům, všechny stavební úpravy byly provedeny kvalitně a s respektem k původní stavbě. Dům je rovněž vhodný pro investiční záměr nebo jako sídlo firmy. Dispozice umožňuje pronájem jednotlivých pater. Dům prošel v roce 1987 přestavbou a renovací - část severní stěny byla vybourána a nově vyzděna ze zatepleného plynosilikátu. Stropy - kombinace hurdiskového stropu, betonu a keramické dlažby. Schodiště je řešeno jako dřevěné a ladí s charakterem interiéru Okna v obytných místnostech jsou dvojitá, dřevěná, orientovaná na jih a západ Vnitřní i vnější povrchy jsou opatřeny kvalitními štukovými a olejovými nátěry Střecha je dvouplášťová se zateplením a novou pozinkovanou krytinou Vytápění plynovým kotlem. I přesto, že se dům nachází v širším centru Prahy, jedná se o velmi klidnou a příjemnou lokalitu v rezidenční částí Stodůlek. Prohlídkový den se bude konat po předchozí domluvě.

Pronájem kanceláře 20 m² náměstí Winstona Churchilla, Praha - Žižkov
Pronájem kanceláře 20 m² náměstí Winstona Churchilla, Praha - Žižkov Praha, Praha 3, Žižkov, náměstí Winstona Churchilla, 2
13 000 Kč
20 m² 3/12 tento

Nabízíme nově zrekonstruovanou kancelář o celkové výměře 20 m2 ve 3NP. Kancelář je v industriálním stylu a je v ní vestavěná skříň a police, jinak je nezařízená. Na podlaze je betonová stěrka. Dům Radost má jedinečný genius loci, skvělou dostupnost i občanskou vybavenost. V ceně pronájmu této kanceláře je k dispozici podatelna pro zasílání pošty i balíčků, coworkingové prostory v kavárně pro vaše schůzky s klienty. V Domě Radost je možnost pronájmu zasedacích prostor či prostoru kina pro vaše větší akce. Dům RADOST dávno není jen kancelářskou budovou, ale stává se společensko-kulturním centrem a být jeho součástí je teprve tou opravdovou radostí. Pokud hledáte kanceláře jiné velikosti, tak nás neváhejte kontaktovat! Cena včetně služeb a energií 13.000Kč.

Prodej bytu 2+kk 49 m² Mcely
Prodej bytu 2+kk 49 m² Mcely Mcely, Nymburk
4 132 800 Kč
77 977 Kč na m²
2-pokoj 53 m² 1/4 tento

Nabízíme Vám k prodeji rezidenční byty v centru obce Mcely, které budou brzy dokončeny. Jedná se o moderní bydlení v klidné atraktivní lokalitě s výhledem do krajiny. V nabídce jsou i další byty velikosti 2+kk a také 3+kk. Ke každé bytové jednotce náleží sklepní kóje a venkovní parkovací stání, které jsou již zahrnuty v ceně nemovitosti. AKCE pro první tři nové rezervace: kuchyň v CENĚ ! Obec Mcely se nachází pouhých 21 km od Mladé Boleslavi a 57 km od Prahy. Pro více informací kontaktujte makléře.

Pronájem kanceláře 40 m² náměstí Winstona Churchilla, Praha - Žižkov
Pronájem kanceláře 40 m² náměstí Winstona Churchilla, Praha - Žižkov Praha, Praha 3, Žižkov, náměstí Winstona Churchilla, 2
8 000 Kč
40 m² 8/12 tento

Nabízíme k pronájmu prostornou světlou kancelář 40 m2, s exklusivním výhledem na Prahu, za skvělou cenu 8.000 Kč! Kancelář se nachází v 8. NP, Dům Radost má jedinečný genius loci, skvělou dostupnost i občanskou vybavenost. V ceně pronájmu této kanceláře je k dispozici podatelna pro zasílání pošty i balíčků, coworkingové prostory v kavárně pro vaše schůzky s klienty. V Domě Radost je možnost pronájmu zasedacích prostor či prostoru kina pro vaše větší akce. Dům RADOST dávno není jen kancelářskou budovou, ale stává se společensko-kulturním centrem a být jeho součástí je teprve tou opravdovou radostí. Pokud hledáte kanceláře jiné velikosti, tak nás neváhejte kontaktovat!

Pronájem kanceláře 20 m² náměstí Winstona Churchilla, Praha - Žižkov
Pronájem kanceláře 20 m² náměstí Winstona Churchilla, Praha - Žižkov Praha, Praha 3, Žižkov, náměstí Winstona Churchilla, 2
4 000 Kč
20 m² 7/12 tento

Nabízíme k pronájmu prostornou světlou kancelář 20 m2, s exklusivním výhledem na Prahu, za skvělou cenu 4.000 Kč! Kancelář se nachází v 7. NP, Dům Radost má jedinečný genius loci, skvělou dostupnost i občanskou vybavenost. V ceně pronájmu této kanceláře je k dispozici podatelna pro zasílání pošty i balíčků, coworkingové prostory v kavárně pro vaše schůzky s klienty. V Domě Radost je možnost pronájmu zasedacích prostor či prostoru kina pro vaše větší akce. Dům RADOST dávno není jen kancelářskou budovou, ale stává se společensko-kulturním centrem a být jeho součástí je teprve tou opravdovou radostí. Pokud hledáte kanceláře jiné velikosti, tak nás neváhejte kontaktovat!

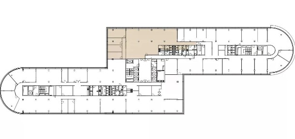
Pronájem kanceláře 2080 m² Ke Štvanici, Praha - Karlín
Pronájem kanceláře 2080 m² Ke Štvanici, Praha - Karlín Praha, Praha 8, Karlín, Ke Štvanici, 3
780 530 Kč
2080 m² 3 tento

Nabízíme k pronájmu bez provize exkluzivní kancelářské prostory v administrativní budově Diamond Point. Tento moderní kancelářský objekt se nachází na strategickém místě na rozhraní Prahy 1 a Prahy 8, Karlína, mezi ulicemi Wilsonova a Ke Štvanici, přímo naproti hotelu Hilton. Diamond Point nabízí více než 18 000 m² kancelářských prostor třídy A s vysokým standardem vybavení. Díky vynikající poloze, skvělé dopravní dostupnosti a moderním technologiím je ideálním řešením pro společnosti hledající reprezentativní a efektivní pracovní prostředí. Aktuálně volné kancelářské prostory: 3. patro - 2 080 m² 5. patro - 1 212 m² Cena pronájmu: kanceláře od 15.50 EUR/m²/měsíc poplatky od 95 Kč/m²/měsíc + energie add-on faktor 6,7 % parkovací místo 130 - 140 EUR/místo/měsíc nájemní smlouvy na 3, 5 nebo 7 let, možnost pro neplátce DPH Neztrácejte čas hledáním. Kontaktujte nás a my vám zdarma připravíme přehled nejlepších alternativ v okolí i v celé Praze. Nabízíme bezplatné poradenství, individuální přístup a detailní znalost trhu. Ušetřete čas a najděte ideální kanceláře rychle a bez starostí - bez provize.

Pronájem skladového prostoru 10295 m² K Pérovně, Praha - Hostivař
Pronájem skladového prostoru 10295 m² K Pérovně, Praha - Hostivař Praha, Praha 10, Hostivař, K Pérovně
obchodovatelné
10295 m²

BEZ PROVIZE Nabízíme moderní skladovací nebo výrobní prostory v Praze-Hostivaři u Průmyslové ulice. Jedná se o nově budovaný průmyslový areál ideální pro zásobování města. Strategická poloha zajišťuje rychlý přístup na městský okruh, dálniční tahy D10 a D11 a také do centra města. MHD, nádraží a cyklostezka v blízkosti areálu. Hala nabízí až 19 268 m2 skladových prostorů. DOSTUPNÁ JEDNOTKA ◉ velikost jednotky: 10 295 m2 DOSTUPNOST ◉ k dispozici v Q4 / 2025 SPECIFIKACE ◉ velikost kanceláří: až 435 m2 ◉ vysoce kvalitní a ekologické prostory ◉ přizpůsobitelné potřebám klienta ◉ hydraulické rampy pro TIR + přímé vjezdy ◉ světlá výška 13,35 m ◉ bezprašné podlahy, min. nosnost 6 t/m2 ◉ LED osvětlení, 200 lux sklad, 500 lux kanceláře ◉ sprinklery, EPS, EZS ◉ přístup 24/7 LOKALITA ◉ Praha 10, Hostivař ◉ snadný přístup na ulici Průmyslová a na Pražský okruh s napojením na D1, D8, D10, D11 ◉ MHD, nádraží a cyklostezka u areálu CENA Pro konkrétní nabídku nás neváhejte kontaktovat.

Prodej rodinného domu 220 m², pozemek 546 m² V padolině, Praha - Dolní Počernice
Prodej rodinného domu 220 m², pozemek 546 m² V padolině, Praha - Dolní Počernice Praha, Praha 9, Dolní Počernice, V padolině
15 899 999 Kč
72 273 Kč na m²
5-pokoj 220 m²

Exkluzivně vám nabízíme jedinečnou příležitost pořídit si prostorný rodinný dům 5+1 s podsklepenou garáží a celkovou užitnou plochou 220 m2. Dům je situovaný na jižně orientovaném, kaskádovitém pozemku o rozloze 546 m2 ve skvělé lokalitě Praha - Dolní Počernice. Jedná se o půlku dvojdomku, který se pyšní krásným výhledem, který si můžete vychutnávat z pohodlí vašeho obývacího pokoje, kde se nachází krbová vložka, ideální pro zimní večery. Součástí obývacího pokoje je velká kuchyně se spíží a jídelna. V domě jsou dále čtyři pokoje, dvě šatny, dvě koupelny s toaletou, jedna s vanou a bidetem, druhá se sprchovým koutem, koutem pro pračku a sušičku, technický kout, předsíň, terasa, balkón, půda, úložné prostory pod schodištěm, samostatná garáž a sklep (sklad na nářadí, dílna). V celém domě je podlahové vytápění, které zajišťuje příjemné a rovnoměrné teplo (v každém pokoji i v šatnách je termostat), a plynový kotel spolu s bojlerem se postarají o vaši pohodu po celý rok. Okna jsou vybavena trojskly, což přispívá k nízkým nákladům na bydlení, které činí přibližně 5.500 Kč měsíčně. Energetický štítek se v současné době vyhotovuje, ale již nyní můžete počítat s efektivním využitím energií. Tento dům nabízí nejen komfortní bydlení, ale i praktické možnosti parkování pro vaše vozy. Za pojezdovou bránou máte k dispozici místo pro parkování dvou vozů, což oceníte zejména v rušných dnech, kdy potřebujete rychlý přístup k autu. Podsklepená garáž se sekčními vraty poskytuje další bezpečné a chráněné stání pro váš automobil, což je ideální pro ochranu před nepříznivým počasím nebo pro uskladnění dalších věcí. Dolní Počernice jsou vyhledávanou lokalitou pro bydlení, kde najdete veškerou občanskou vybavenost, včetně obchodů, škol, školek, zdravotnických zařízení, restaurací atd. Navíc je dům situován v blízkosti přírody, což vám umožní užívat si klidné procházky a aktivní odpočinek, například na kole na zdejších cyklostezkách. Tato čtvrť nabízí skvělé spojení nejen automobilem, ale také veřejnou dopravou. Pokud preferujete cestování autobusem, můžete využít pravidelných linek DP 208, 109, 163 a dalších (MHD zastávka U Počernického rybníka, Dolní Počernice, nebo nádraží dolní Počernice), které vás rychle a pohodlně dopraví na Depo Hostivař, Palmovku, ale i Rajskou Zahradu nebo Hloubětín. Pro milovníky železniční dopravy je k dispozici vlakové spojení PID (zastávka Praha-Běchovice, Praha - Dolní Počernice), které zajišťuje snadný přístup do Prahy a okolí. Především se vlakem za 15 min dostanete na Masarykovo nádraží nebo Hlavní nádraží v Praze. Díky této skvělé dopravní infrastruktuře si můžete užívat výhod městského života. Nezmeškejte tuto jedinečnou příležitost a přijďte se podívat na váš nový domov, který nabízí komfort, prostornost a skvělou lokalitu pro vaši rodinu. Pro více informací mě neváhejte kontaktovat.

Pronájem kanceláře 651 m² Na Hřebenech II, Praha - Nusle
Pronájem kanceláře 651 m² Na Hřebenech II, Praha - Nusle Praha, Praha 4, Nusle, Na Hřebenech II, 10
252 588 Kč
651 m² 4/13 tento

Přímo v budově Kavčí Hory Office Park najdete restauraci, kantýnu a fitcentrum. Sousední sídlo České televize nabízí obchod s potravinami a další místo, kam lze zajít na oběd. V nedalekém obchodním centru Arkády Pankrác.pořídíte všechno, co potřebujete Budova má k dispozici 700 parkovacích míst v podzemních garážích. Na zastávku metra Pražského povstání dojdete pěšky za sedm minut. Cestu si však můžete urychlit třeba autobusem ze zastávek Na Hřebenech nebo Děkanka, které jsou minutu od komplexu. Individuální regulace teploty v kancelářských prostorách Dvoutrubkové fancoil chladicí jednotky Elektronicky ovládané venkovní žaluzie Zdvojené podlahy pro strukturovanou kabeláž Zavěšené podhledy s integrovaným osvětlením Parní zvlhčovače, technologický chlad 24/7 EPS - elektronická protipožární signalizace 24hodinová bezpečnostní služba 13 výtahů 2 reprezentativní vstupní recepce Sprinklery Office Park se pyšní nejen zeleným okolím se místy nových relaxačních zón. Přímo uvnitř kancelářské budovy se můžete z plných plic nadechnout čerstvého vzduchu. Vysoce kvalitní technické vybavení zajišťuje komfortní zdravé prostředí, čímž umožňuje také snížit provozní náklady celé budovy na minimum. služby ve výši 140CZK/m2/měs + spotřeba el.energie

Prodej rodinného domu 206 m², pozemek 809 m² Dražická, Praha - Újezd nad Lesy
Prodej rodinného domu 206 m², pozemek 809 m² Dražická, Praha - Újezd nad Lesy Praha, Praha 9, Újezd nad Lesy, Dražická, 49
19 500 000 Kč
94 660 Kč na m²
5-pokoj 206 m² 2 tento

Home Real Estate, ve výhradním zastoupení, nabízí k prodeji nádhernou stavbu rodinného domu o dispozici 5+1 ve velmi klidné a malebné vilové čtvrti Prahy 21 - Újezd nad Lesy. Perličkou dané nemovitosti je její poloha na okraji jednosměrné ulice a zahrada s velkým množstvím vzrostlých stromů, které dodávají dostatek soukromí a zároveň pocit obklopení přírodou. 5+1 / garáž / venkovní parking / zimní zahrada / vzrostlá zahrada / bazén s tepelným čerpadlem. Dispozice domu byla velmi dobře promyšlená pro pohodlné bydlení větší rodiny. Dispozice domu tvoří: 1NP - krytá garáž - vstupní předsíň - vstupní chodba s hostinským WC a menší šatnou č. 1 - velkorysý obývací pokoj s elektrickým krbem a vstupem na zimní zahradu - oddělená kuchyň se špízírnou (špíž) - jídelna se vstupem do kuchyně a na zimní zahradu - zimní zahrada - terasa na venkovní posezení s plynovým grilem 2NP - schodiště s chodbou - větší šatna č. 2 - pokoj č. 1 - dětský - pokoj č. 2 - ložnice č. 1 - pokoj č. 3 - ložnice č. 2 - pokoj č. 4 - ložnice č. 3 - koupelna č. 1 se sprchovým koutem, WC a umyvadlem - koupelna č. 2 se sprchovým koutem, vanou, dvojumyvadlem, bidetem, WC a pračkou se sušičkou - vstup na půdu (půda se může využívat jako úložné prostory) Celkem sociálních zařízení: 3× WC 2× sprchové kouty 1× vana 1× bidet Nadstandardní vybavení domu: - elektrický krb - zimní zahrada - barbecue zóna s plynovým grilem - vzrostlá zahrada - bazén s větší plochou na opalovaní - kamerový systém - bezpečnostní alarm s čidly pohybu - vjezdová brána na elektrický pohon Kompletní rekonstrukce povrchů zahrady byla provedena v roce 2024 (dlažba, chodníky, trávníky). Nové koupelny z r. 2024 (nová dlažba, sanita). Nové podlahové krytiny z r. 2024. Nový plynový kotel značky BRÖTJE z r. 2023. Nový elektrický krb z r. 2024. Nové mezipokojové dveře z r. 2024. Podlažní plocha stavby: 270 m² Užitná plocha domu: 206,5 m² Zastavěná plocha: 136 m² Zpevněná plocha - terasy, chodníky, komunikace: cca 130 m² Plochy zeleně: cca 543 m² Pokud jste velká rodina, určitě oceníte dostatek prostoru jak v domě, tak i na zahradě, krásné vzrostlé jehličnaté a ovocné stromy. Lokalita: Rodinný dům se nachází v klidné ulici, předností je velmi hezká a pro děti bezpečná lokalita. K aktivnímu odpočinku jsou k dispozici hřiště, cyklostezky, lesopark „V Panenkách“ i přírodní rezervace „Cyrilov“. Rezidenční čtvrť s kompletní občanskou vybaveností - pošta, školy, školky, restaurace, zdravotnictví, obchody a supermarkety. Újezd nad Lesy je městská čtvrť a katastrální území hlavního města Prahy u jeho východní hranice. Jako jediná část města tvoří území samosprávné městské části Praha 21. Do centra Prahy se dostanete MHD do 30 minut, po dokončení dopravního obchvatu v roce 2027 autem do 20 minut. BUS: Kousek od domu je autobusová zastávka Druhanická. Cena: 19.500.000,- Kč včetně právního servisu a vybavení. V ceně nemovitosti zůstává vybavení včetně kuchyně, nábytku, elektrospotřebičů a příslušenství zahrady. Pro více informací a možnost prohlídky kontaktujte makléře nebo vyplňte formulář níže. Prohlídky jsou možné i o víkendu. Rádi se Vám budeme věnovat!

Pronájem skladového prostoru 28133 m² Průmyslová, Praha - Dolní Měcholupy
Pronájem skladového prostoru 28133 m² Průmyslová, Praha - Dolní Měcholupy Praha, Praha 10, Dolní Měcholupy, Průmyslová
obchodovatelné
28133 m²

Na základě přímého pověření majitele (neplatíte provizi) Vám nabízíme pronájem prostor na Praze-východ, které jsou vhodné pro skladování či lehkou výrobu. Specifikace: - světlá výška 10 m - nosnost podlah 5t/m² - rastr sloupů 24 x 12 m - LED osvětlení - hydraulické můstky Lokalita: - výborná dopravní dostupnost - MHD v blízkosti parku - centrum Prahy 10 km, letiště Praha 35 km - Pražský okruh 2 km

Pronájem kanceláře 557 m² Rohanské nábřeží, Praha - Karlín
Pronájem kanceláře 557 m² Rohanské nábřeží, Praha - Karlín Praha, Praha 8, Karlín, Rohanské nábřeží, 5
256 637 Kč
557 m² 4/10 tento

Areál Riverside Karlín oplývá životem a tvoří prosperující kancelářskou čtvrť, kde všechno žije v dokonalé symbióze. Neskromně můžeme říci, že právě tady vzniká pravá esence Karlína. Jen kousek odtud si můžete pořádně zadivočit na koncertech. Podniky v okolí nabízí bohatý program, ve kterém si vybere snad každý. Jednotka 557m2 s TERASOU 108M2 Ani místo k pokecu po práci dlouho hledat nebudete. Rychlostí jaguára se dostanete do blízkých kaváren i k výčepu. O jídlo nebude nouze, kousek jsou různé obchody, supermarkety i restaurace s poledním menu. A vy teď můžete mít svou kancelář jen pár kroků od toho všeho. Celková plocha pro kanceláře 19 880 m2 na 7 nadzemních podlažích 254 parkovacích míst Vysoká kvalita vnitřního prostředí Zdvojená podlaha ve všech kancelářích 8 výtahů ve 4 jádrech (každé jádro má 2 výtahy) Sprinklery a systém požárních hlásičů po celé budově Kamerový systém ve společných prostorách UPS (zabezpečení nepřetržité dodávky energie)

Prodej rodinného domu 279 m², pozemek 766 m² U Nadýmače, Praha - Uhříněves
Prodej rodinného domu 279 m², pozemek 766 m² U Nadýmače, Praha - Uhříněves Praha, Praha 10, Uhříněves, U Nadýmače
23 900 000 Kč
77 097 Kč na m²
5-pokoj 310 m² 2 tento

Nabízíme Vám k prodeji zděný rodinný dům 5+kk s terasou, po kompletní rekonstrukci v roce 2021, s nádherně upravenou travnatou zahradou, bazénem, ohništěm s posezením a samostatným druhým domem 2+kk s terasou, v klidném prostředí na okraji Uhříněvsi. Výměra pozemku je 766 m². Celková plocha rodinného domu je 259 m² včetně obou teras, druhý dům na zahradě má 51 m², celkem tedy 310 m². Zastavěná plocha hlavního domu činí 109 m², zahradního domu 41 m². V současné době je zahradní domek využíván ke krátkodobým pronájmům od jara do podzimu s velmi zajímavým výnosem, lze jej ale využít také jako kancelář, pro komerční účely, pro hosty nebo rodiče. Přestože se nemovitost nachází v blízkosti vodních ploch Nadýmače I a II, není v záplavové oblasti. Hlavní rodinný dům je zděný, kolaudovaný v roce 1937, prošel náročnou kompletní rekonstrukcí v roce 2021, která zahrnovala: • zateplení fasády • novou střechu • výměnu oken • venkovní terasu • kompletní nový interiér - rozvody, štuky, masivní dveře na zakázku apod. V přízemí se nachází prostorný obývací pokoj s nadstandardně vybaveným kuchyňským koutem a jídelnou, propojený s venkovní terasou ze sibiřského modřínu. Na terase je vkusné posezení a vířivka. Dále je zde pokoj, koupelna se samostatnou toaletou, technická místnost a spíž. Podlahy tvoří luxusní velkoformátová dlažba, pouze v pokoji je dřevěná plovoucí podlaha. Dřevěné schodiště vede do 2. podlaží, kde jsou dva světlé dětské pokoje, ložnice, toaleta, komora a chodba s přístupem na druhou terasu s výhledem do zahrady. Nad tímto podlažím se nachází kvalitně zpracovaná půda vhodná k uskladnění věcí (není započítána do celkové plochy). Suterén má 20 m², jedna místnost slouží jako kotelna pro plynové vytápění objektu, druhá jako sklad potravin. Střecha je sedlová s vikýřem a krytá keramickými taškami. Zahradní dům 2+kk/T (užitná plocha 51 m² ve 2 podlažích) je nově postavený a nabízí možnost celoročního užívání: • přízemí: obývací pokoj se schodištěm, kuchyňský kout, koupelna se sprchou a WC • podkroví: ložnice s galerií • vytápění moderními kamny na peletky, zateplená fasáda a kvalitní izolace střechy • menší terasa poskytuje dostatečné soukromí Přednosti nemovitosti a lokalita: • klidná oblast rodinných domů u vodních ploch a lesíku • vynikající občanská vybavenost • rychlá dostupnost do centra Prahy i na dálnici D1 • kombinace hlavního domu a zahradního domu umožňuje pohodlné bydlení pro rodinu, investici se zajímavým výnosem z pronájmu nebo pro podnikání Nemovitost je ihned k dispozici. Podrobné informace rád poskytnu během prohlídky nebo na vyžádání.

Pronájem skladového prostoru 5116 m² Průmyslová, Praha - Dolní Měcholupy
Pronájem skladového prostoru 5116 m² Průmyslová, Praha - Dolní Měcholupy Praha, Praha 10, Dolní Měcholupy, Průmyslová
obchodovatelné
5116 m²

Na základě přímého pověření majitele (neplatíte provizi) Vám nabízíme pronájem prostor na Praze-východ, které jsou vhodné pro skladování či lehkou výrobu. Specifikace: - světlá výška 10 m - nosnost podlah 5t/m² - rastr sloupů 24 x 12 m - LED osvětlení - hydraulické můstky Lokalita: - výborná dopravní dostupnost - MHD v blízkosti parku - centrum Prahy 10 km, letiště Praha 35 km - Pražský okruh 2 km

Pronájem skladového prostoru 547 m² Toužimská, Praha - Letňany
Pronájem skladového prostoru 547 m² Toužimská, Praha - Letňany Praha, Praha 9, Letňany, Toužimská
obchodovatelné
547 m²

Na základě přímého pověření majitele (neplatíte provizi) vám nabízíme pronájem prostoru v Letňanech, který je vhodný pro skladování či lehkou výrobu. Specifikace: - kancelářské prostory 280 m² - dostupné 6/2025 - světlá výška 7,5 m - budova "A class" - přímý vjezd, rampa/můstek - nosnost podlahy 5 t/m² - rastr sloupů 12 x 24 m Lokalita: - v těsné blízkosti hlavního města Prahy - výborná dopravní dostupnost

Otevřít mapu Mapa