20krát více reklam od majitelů

Sbíráme reklamy z největších portálů

Realitního makléře od majitele rozeznáváme podle telefonního čísla

Ukážeme, jak se cena změnila

Odstranění duplicitních reklam

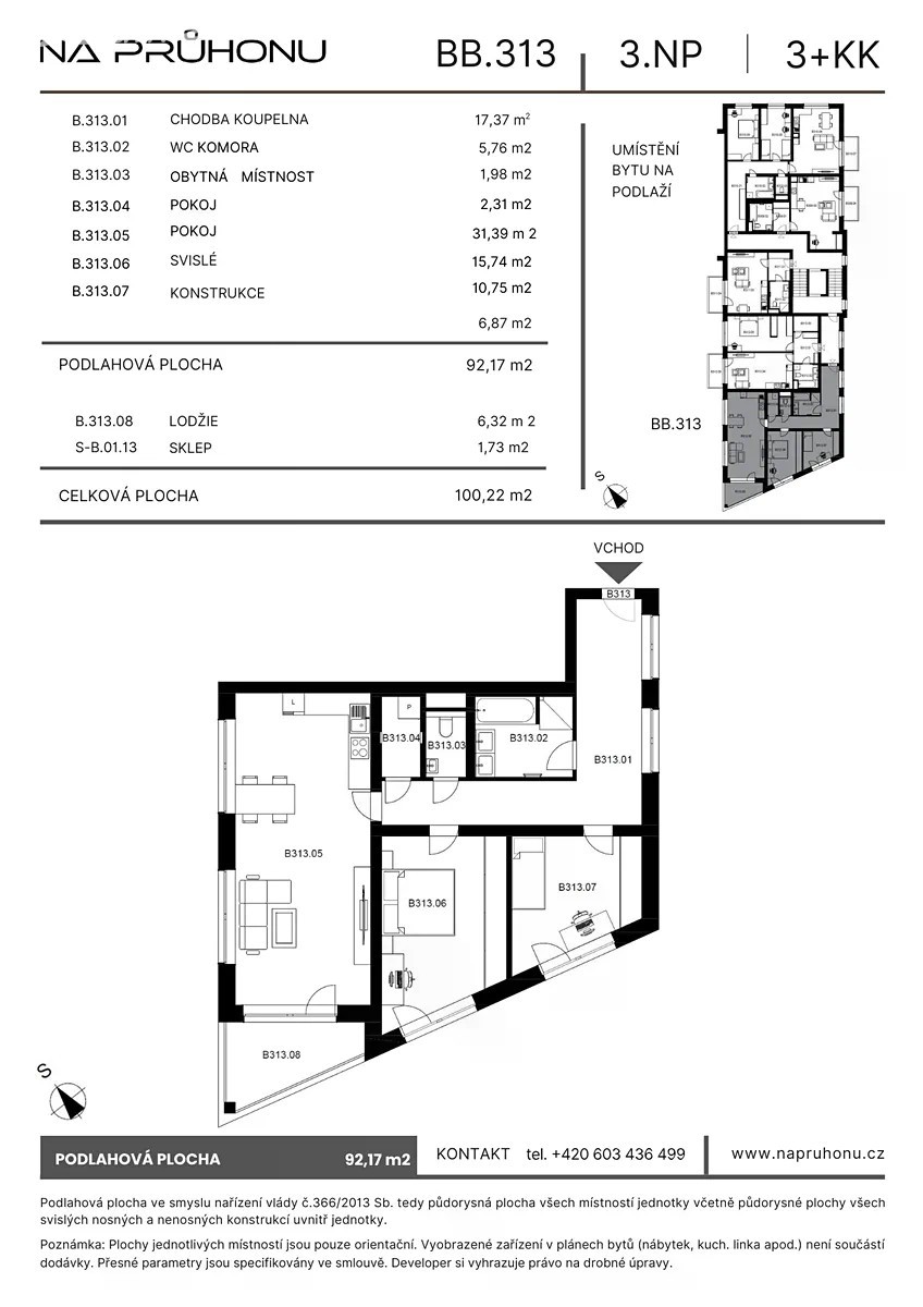
Prodej bytu 3+kk 85 m² Na Průhonu, Plzeň - Skvrňany

Plzeň, Plzeň-město, Skvrňany, Na Průhonu
  • Objekt CZ-1352858718
  • přidáno:
fotografie - Prodej bytu 3+kk 85 m² Na Průhonu, Plzeň - Skvrňany fotografie - Prodej bytu 3+kk 85 m² Na Průhonu, Plzeň - Skvrňany fotografie - Prodej bytu 3+kk 85 m² Na Průhonu, Plzeň - Skvrňany fotografie - Prodej bytu 3+kk 85 m² Na Průhonu, Plzeň - Skvrňany fotografie - Prodej bytu 3+kk 85 m² Na Průhonu, Plzeň - Skvrňany fotografie - Prodej bytu 3+kk 85 m² Na Průhonu, Plzeň - Skvrňany fotografie - Prodej bytu 3+kk 85 m² Na Průhonu, Plzeň - Skvrňany
  • Plná velikost
  • Hledat podobné
fotografie - Prodej bytu 3+kk 85 m² Na Průhonu, Plzeň - Skvrňany fotografie - Prodej bytu 3+kk 85 m² Na Průhonu, Plzeň - Skvrňany fotografie - Prodej bytu 3+kk 85 m² Na Průhonu, Plzeň - Skvrňany fotografie - Prodej bytu 3+kk 85 m² Na Průhonu, Plzeň - Skvrňany fotografie - Prodej bytu 3+kk 85 m² Na Průhonu, Plzeň - Skvrňany fotografie - Prodej bytu 3+kk 85 m² Na Průhonu, Plzeň - Skvrňany fotografie - Prodej bytu 3+kk 85 m² Na Průhonu, Plzeň - Skvrňany

Velkorysý 3+kk s lodžií a chlazením | 92 m² v moderní rezidenci u centra Plzně Hledáte bydlení, které má prostor, klid a přitom vše po ruce? Byt BB 313 v projektu Bytové domy Na Průhonu Plzeň vás nadchne. Dispozice 3+kk, výměra 92,17 m² + lodžie 6,32 m² 3. nadzemní podlaží s výtahem Možnost parkovacího stání Energetická třída A - mimořádně úsporný byt Tepelné čerpadlo + podlahové chlazení i vytápění Komfort, soukromí a kvalita v každém detailu Byt byl navržen tak, aby poskytoval maximum soukromí a pohodlí. Efektivní dispozice, vinylové podlahy, velkoformátové obklady Ecoceram, příprava pro venkovní žaluzie a nadstandardní tepelná pohoda i v létě díky chlazení. Vytápění a chlazení zajišťuje moderní tepelné čerpadlo s podlahovým rozvodem, které nabízí nejen komfort, ale také reálnou úsporu energií až o 40 % oproti běžným systémům. Férové financování: 10 % při podpisu 90 % až po kolaudaci Pomoc se zajištěním hypotéky Bezpečné a pohodlné parkování Ke každému bytu nabízíme možnost venkovního parkovacího stání (270 000 Kč), odděleného branou od veřejné komunikace. Lze dokoupit i více míst. Skvělá lokalita - klid a dostupnost Projekt se nachází v klidné části Plzně - Na Průhonu, jen kousek do centra, OC Borská Pole i Skvrňan. MHD i autem snadná dostupnost, kompletní občanská vybavenost v dosahu. V projektu je celkem 49 bytů různých velikostí - podívejte se na naše další nabídky na webu (odkaz v hlavičce inzerátu nebo u makléře). Možnost prohlídky dle domluvy.

Poloha na mapě, užitečná místa a trasy

Objekty v okolí

Plzeň, Plzeň-město, Skvrňany, Na Průhonu
přidat k oblíbeným Prodej bytu 3+kk 78 m² Na Průhonu, Plzeň - Skvrňany
  • 7 990 000 Kč
  • 78 m²
Plzeň, Plzeň-město, Skvrňany, Na Průhonu
Plzeň, Plzeň-město, Skvrňany, Na Průhonu
přidat k oblíbeným Prodej bytu 3+kk 92 m² Na Průhonu, Plzeň - Skvrňany
  • 8 786 000 Kč
  • 92 m²
Plzeň, Plzeň-město, Skvrňany, Na Průhonu
Plzeň, Plzeň-město, Skvrňany, Na Průhonu
přidat k oblíbeným Prodej bytu 3+kk 93 m² Na Průhonu, Plzeň - Skvrňany
  • 8 150 000 Kč
  • 103 m²
Plzeň, Plzeň-město, Skvrňany, Na Průhonu
Plzeň, Plzeň-město, Skvrňany, Na Průhonu
přidat k oblíbeným Prodej bytu 2+kk 71 m² Na Průhonu, Plzeň - Skvrňany
  • 6 517 000 Kč
  • 110 m²
Plzeň, Plzeň-město, Skvrňany, Na Průhonu