20krát více reklam od majitelů

Sbíráme reklamy z největších portálů

Realitního makléře od majitele rozeznáváme podle telefonního čísla

Ukážeme, jak se cena změnila

Odstranění duplicitních reklam

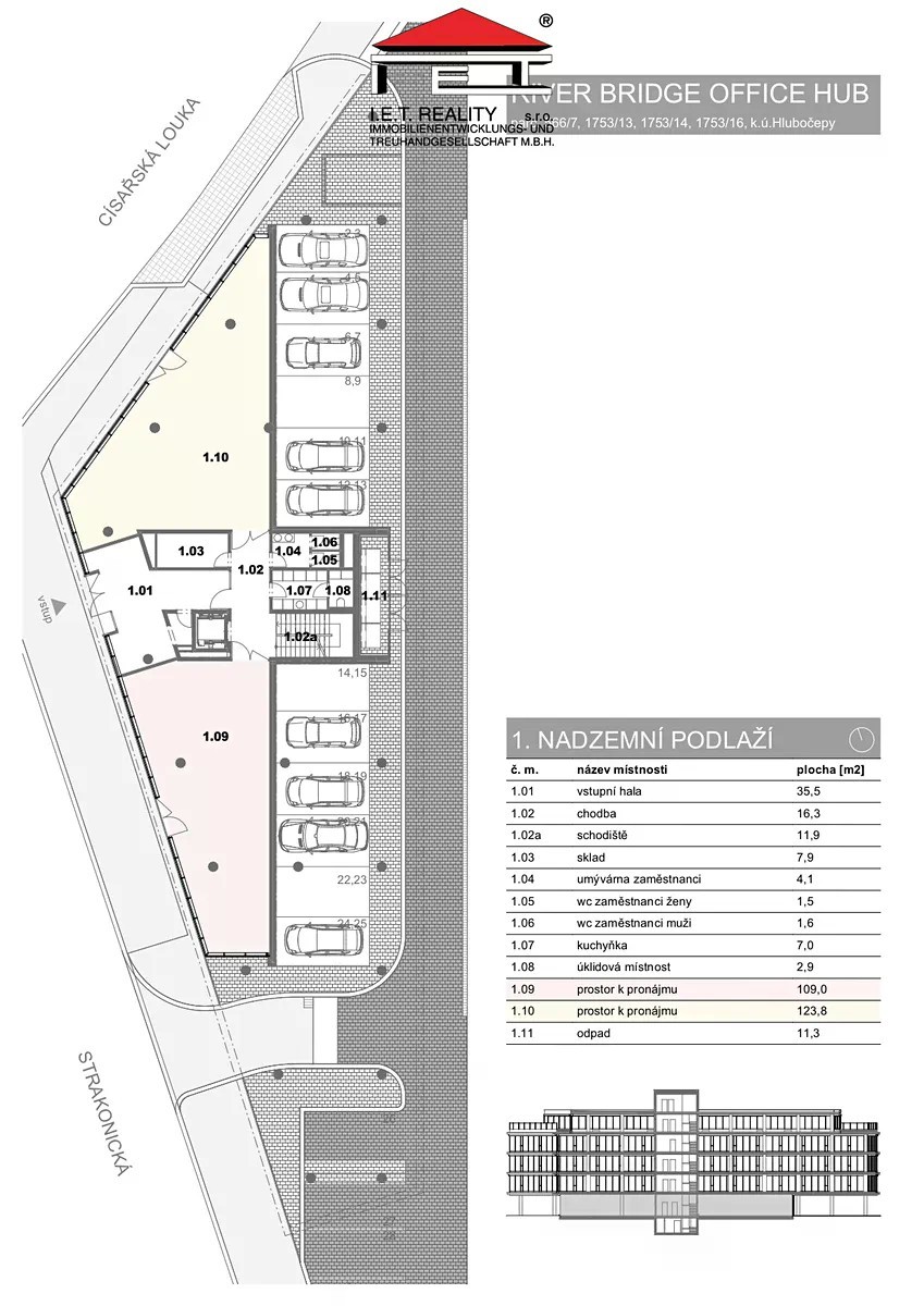
Pronájem obchodního prostoru 109 m² Strakonická, Praha - Hlubočepy

Praha, Praha 5, Hlubočepy, Strakonická
  • Objekt CZ-1352580860
  • přidáno:
fotografie - Pronájem obchodního prostoru 109 m² Strakonická, Praha - Hlubočepy fotografie - Pronájem obchodního prostoru 109 m² Strakonická, Praha - Hlubočepy fotografie - Pronájem obchodního prostoru 109 m² Strakonická, Praha - Hlubočepy fotografie - Pronájem obchodního prostoru 109 m² Strakonická, Praha - Hlubočepy
  • Plná velikost
  • Hledat podobné
fotografie - Pronájem obchodního prostoru 109 m² Strakonická, Praha - Hlubočepy fotografie - Pronájem obchodního prostoru 109 m² Strakonická, Praha - Hlubočepy fotografie - Pronájem obchodního prostoru 109 m² Strakonická, Praha - Hlubočepy fotografie - Pronájem obchodního prostoru 109 m² Strakonická, Praha - Hlubočepy

Dovolujeme si Vám nabídnout nové moderní obchodní prostory v přízemí na Praze 5 - Hlubočepy, v blízkosti Dvoreckého mostu, který v dohledné době propojí oba břehy řeky Vltavy. Prostory č. 1.09 o celkové výměře 109 m2 se nachází v přízemí administrativní budovy na břehu řeky Vltavy, která se stane součástí areálu River Business Centre. Je možné k nim využívat sociální zázemí o velikosti 66 m2, které se nachází na patře. Služby spojené s užíváním prostorů jsou stanovené na cenu 140 Kč za m2 plochy pronájmu. Areál disponuje recepcí, včetně obsluhy, ostrahou objektu 24/7, výtahem a skvělou dopravní dostupností - navazuje na Strakonickou a pouze pár metrů od kanceláří se nachází zastávka MHD Lihovar. Areál nabízí také parkovací místa - jedná se o krytá i venkovní parkovací stání v areálu a okolí. První měsíce jsou za zvýhodněné nájemné, tedy pouze za 7,99 EUR/m2/měsíc. Volné od 1.3.2026 k nastěhování. Je možné také pronajmout celé patro. Provizi RK neplatíte.

Poloha na mapě, užitečná místa a trasy

Objekty v okolí

Praha, Praha 5, Smíchov, Strakonická, 2
přidat k oblíbeným Pronájem kanceláře 134 m² Strakonická, Praha - Smíchov
  • 45 619 Kč
  • 134 m²
Praha, Praha 5, Smíchov, Strakonická, 2
Praha, Praha 5, Hlubočepy, Strakonická, 2c
přidat k oblíbeným Pronájem obchodního prostoru 109 m² Strakonická, Praha - Hlubočepy
  • 39 826 Kč
  • 109 m²
Praha, Praha 5, Hlubočepy, Strakonická, 2c
Praha, Praha 5, Hlubočepy, Strakonická
přidat k oblíbeným Pronájem obchodního prostoru 124 m² Strakonická, Praha - Hlubočepy
  • 45 242 Kč
  • 124 m²
Praha, Praha 5, Hlubočepy, Strakonická
Praha, Praha 5, Hlubočepy, Strakonická
přidat k oblíbeným Pronájem obchodního prostoru 124 m² Strakonická, Praha - Hlubočepy
  • 45 272 Kč
  • 124 m²
Praha, Praha 5, Hlubočepy, Strakonická