20krát více reklam od majitelů

Sbíráme reklamy z největších portálů

Realitního makléře od majitele rozeznáváme podle telefonního čísla

Ukážeme, jak se cena změnila

Odstranění duplicitních reklam

Tato nabídka již není platná a brzy bude automaticky odstraněna.

Pronájem bytu 2+kk 66 m² Dobnerova, Olomouc - Nová Ulice

Olomouc, Nová Ulice, Dobnerova
  • Objekt CZ-1351277323
  • přidáno:
fotografie - Pronájem bytu 2+kk 66 m² Dobnerova, Olomouc - Nová Ulice
  • Plná velikost
  • Hledat podobné
fotografie - Pronájem bytu 2+kk 66 m² Dobnerova, Olomouc - Nová Ulice

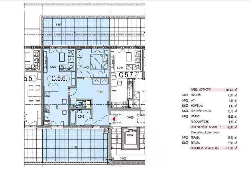
Pohodlné a elegantní bydlení se dvěmi terasami a výhledem do dálky Vám nabízí klimatizovaný a z větší části vybavený byt 2 +kk o výměře 65,8 m2. Větší zastřešená terasa přístupná z kuchyně a chodby je orientovaná na severovýchod a má výměru 26,5 m2. Menší otevřená terasa přístupná z obývací části a ložnice je orientovaná do vnitrobloku jihozápadním směrem a má výměru 23,3 m2. Součástí pronájmu je také 1 garážové stání a sklep, který je umístěn přímo za parkovacím stáním. Byt je umístěn ve 4 posledním patře moderního bytového domu, nabízí tak klid, dostatečné soukromí a malou energetickou náročnost. Kuchyňský kout na míru je vybaven vestavěnými spotřebiči BOSCH, indukční varná deska a myčka jsou samozřejmostí. K dispozici zůstává i jídelní stůl s židlemi. Obývací část zůstává zcela vybavená, ložnici lze po předchozí domluvě také vybavit, jinak zůstane bez vybavení. V koupelně s vanou zůstává k dispozici koupelnový nábytek a pračka. WC je samostatné. Rozvod klimatizace je do obývacího pokoje a do ložnice. Prostorná chodba disponuje nadstandardním úložným prostorem. Dům je situován v lokalitě s dobrou dostupností do centra, Fakultní nemocnice a s rychlým napojením na olomoucký silniční obchvat. Okolo domu jsou upravené zahradní plochy, keře a stromy, v těsné blízkosti je prodejna Billa, Albert a lékařské středisko a oblíbená cukrárna i kavárna. PENB B. Měsíční náklady ve výši 3800,- Kč jsou včetně zálohy na elektrickou energii.

Poloha na mapě, užitečná místa a trasy

Objekty v okolí

Olomouc, Nová Ulice, Dobnerova, 8
přidat k oblíbeným Pronájem bytu 1+kk 25 m² Dobnerova, Olomouc - Nová Ulice
  • 8 300 Kč
  • 25 m²
Olomouc, Nová Ulice, Dobnerova, 8