20krát více reklam od majitelů

Sbíráme reklamy z největších portálů

Realitního makléře od majitele rozeznáváme podle telefonního čísla

Ukážeme, jak se cena změnila

Odstranění duplicitních reklam

Pronájem kanceláře 17 m² Opletalova, Praha - Nové Město

Praha, Praha 1, Nové Město, Opletalova, 55
  • Objekt CZ-1350921665
  • přidáno:
fotografie - Pronájem kanceláře 17 m² Opletalova, Praha - Nové Město fotografie - Pronájem kanceláře 17 m² Opletalova, Praha - Nové Město fotografie - Pronájem kanceláře 17 m² Opletalova, Praha - Nové Město fotografie - Pronájem kanceláře 17 m² Opletalova, Praha - Nové Město fotografie - Pronájem kanceláře 17 m² Opletalova, Praha - Nové Město
  • Plná velikost
  • Hledat podobné
fotografie - Pronájem kanceláře 17 m² Opletalova, Praha - Nové Město fotografie - Pronájem kanceláře 17 m² Opletalova, Praha - Nové Město fotografie - Pronájem kanceláře 17 m² Opletalova, Praha - Nové Město fotografie - Pronájem kanceláře 17 m² Opletalova, Praha - Nové Město fotografie - Pronájem kanceláře 17 m² Opletalova, Praha - Nové Město

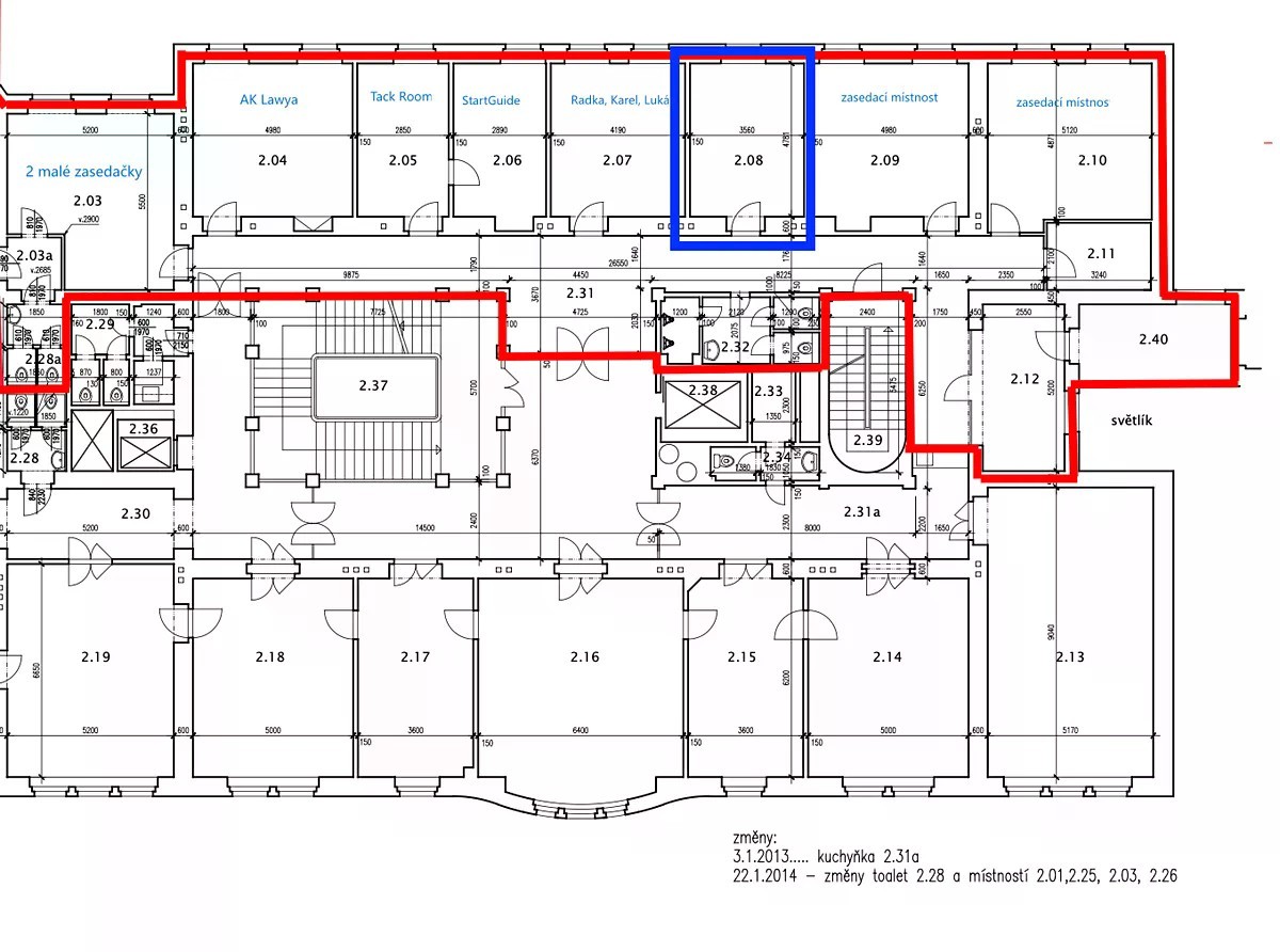
Soukromé kanceláře v Opletalově ulici - centrum Prahy! Nabízíme plně vybavené kanceláře v prestižní lokalitě mezi Hlavním nádražím a Masarykovým nádražím. Skvělá dostupnost MHD i vlakových spojů, výborná občanská vybavenost a poloha v samotném centru dělají z tohoto místa ideální pracovní zázemí pro menší týmy. K dispozici jsou: * 1 kancelář - pro 5 osob (č. 2.08) * 4 zasedací místnosti * Sdílené prostory - kuchyňka, odpočinková zóna, toalety Všechny prostory jsou vybavené a připravené k okamžitému využití. Součástí nájmu je internet, pravidelný úklid a občerstvení (káva, čaj). Všechny služby a energie jsou zahrnuty v ceně - neplatíte nic navíc. Jaké prostory jsou k dispozici * Kancelář (č. 2.08): pro 5 osob * 4 zasedací místnosti: Kapacita 2-12 osob Cena: Kancelář pro 5 osob: 4 000 Kč + DPH / pracovní místo / měsíc (20 000 + DPH celá kancelář) V každé místnosti je možné pronajmout i méně míst, ale nájemné je potřeba uhradit za celou kapacitu kanceláře. V kanceláři se může střídat více lidí, v jeden okamžik ale nesmí být překročena její maximální kapacita, aby prostory (např. zasedačka) nebyly přetížené. Nájemní podmínky: Kauce ve výši jednoho měsíčního nájmu Smlouva se podepisuje na dobu neurčitou s výpovědní lhůtou 2 měsíce Parking: Parkovat lze v okolních ulicích Soukromí: Prostor je pouze pro vás Přístup: 24/7 O firmě, která kanceláře nabízí: Právnická kancelář Sedlakova Legal se specializuje především na IT právo, TMT a softwarové právo, ale pokrývá i korporátní právo, ochranu osobních údajů, pracovněprávní poradenskou činnost, nemovitosti, majetkové právo i zdravotnické právo. Firma je oceňovaná v mezinárodních žebříčcích jako Legal 500 a Chambers Europe 2025 v oboru TMT (tech‑mediální právo). Víme, že právo často popisuje svět včerejška, zatímco vy žijete v zítřku. My umíme vše sladit. Pro vás a s vámi. Pro práci v pohybu, při které není čas ztrácet cokoli. Mluvíme tak, abychom si porozuměli. Používáme technologie, abychom si vše usnadnili. Smlouvy stavíme na vašich funkčních procesech. Nápady chráníme z mnoha úhlů. Přemýšlíme nad důsledky, protože dnešek definuje budoucnost. To vše proto, aby neexistovali géniové, kteří se neproslavili. Máme zkušenosti a odhodlání. Využijte toho dřív, než přijde zítřek.

Poloha na mapě, užitečná místa a trasy

Objekty v okolí

Praha, Praha 1, Nové Město, Opletalova
přidat k oblíbeným Pronájem kanceláře 278 m² Opletalova, Praha - Nové Město
  • 79 256 Kč
  • 278 m²
Praha, Praha 1, Nové Město, Opletalova
Praha, Praha 1, Nové Město, Opletalova
přidat k oblíbeným Pronájem obchodního prostoru 1000 m² Opletalova, Praha - Nové Město
  • 525 000 Kč
  • 1000 m²
Praha, Praha 1, Nové Město, Opletalova
Praha, Praha 1, Nové Město, Opletalova
přidat k oblíbeným Pronájem kanceláře 24 m² Opletalova, Praha - Nové Město
  • 8 755 Kč
  • 24 m²
Praha, Praha 1, Nové Město, Opletalova
Praha, Praha 1, Nové Město, Opletalova
přidat k oblíbeným Pronájem kanceláře 160 m² Opletalova, Praha - Nové Město
  • 51 469 Kč
  • 160 m²
Praha, Praha 1, Nové Město, Opletalova