20krát více reklam od majitelů

Sbíráme reklamy z největších portálů

Realitního makléře od majitele rozeznáváme podle telefonního čísla

Ukážeme, jak se cena změnila

Odstranění duplicitních reklam

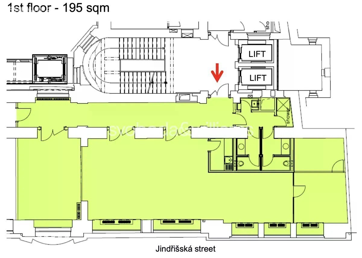
Pronájem kanceláře 195 m² Václavské náměstí, Praha - Nové Město

Praha, Praha 1, Nové Město, Václavské náměstí
  • Objekt CZ-1340875794
  • přidáno:
  • aktualizováno:
fotografie - Pronájem kanceláře 195 m² Václavské náměstí, Praha - Nové Město fotografie - Pronájem kanceláře 195 m² Václavské náměstí, Praha - Nové Město fotografie - Pronájem kanceláře 195 m² Václavské náměstí, Praha - Nové Město fotografie - Pronájem kanceláře 195 m² Václavské náměstí, Praha - Nové Město fotografie - Pronájem kanceláře 195 m² Václavské náměstí, Praha - Nové Město fotografie - Pronájem kanceláře 195 m² Václavské náměstí, Praha - Nové Město
  • Plná velikost
  • Hledat podobné
fotografie - Pronájem kanceláře 195 m² Václavské náměstí, Praha - Nové Město fotografie - Pronájem kanceláře 195 m² Václavské náměstí, Praha - Nové Město fotografie - Pronájem kanceláře 195 m² Václavské náměstí, Praha - Nové Město fotografie - Pronájem kanceláře 195 m² Václavské náměstí, Praha - Nové Město fotografie - Pronájem kanceláře 195 m² Václavské náměstí, Praha - Nové Město fotografie - Pronájem kanceláře 195 m² Václavské náměstí, Praha - Nové Město

Moderní kancelářské prostory k pronájmu v 1. patře kompletně zrekonstruované budovy na Václavském náměstí. Novobarokní budova postavená na konci 19. století je jednou z největších historických budov na Václavském náměstí a je zapsána na seznamu kulturních památek hlavního města. Dominantou budovy je unikátní císařské schodiště s novobarokní štukovou výzdobou. Lokalita: Budova se nachází v atraktivní lokalitě přímo v centru Prahy a je dobře dostupná hromadnou dopravou - v blízkosti stanic metra Můstek (trasa A, B) a Muzeum (trasa A, C) a tramvajových spojů. V pěším dosahu se nachází Hlavní nádraží Praha. Vybavení a služby: Klimatizace Parkety Zvýšená podlaha Podlahové rozvody s podlahovými krabicemi Světla Toalety a kuchyňka Vstupu na kartu 24hodinová recepce a ostraha Reprezentativní recepce 2 vysokorychlostní výtahy CCTV 1 parkovací stání Nájemné a poplatky jsou uvedeny bez DPH. Nájemce neplatí provizi.

Poloha na mapě, užitečná místa a trasy

Objekty v okolí

Praha, Praha 1, Nové Město, Václavské náměstí, 19
přidat k oblíbeným Pronájem kanceláře 195 m² Václavské náměstí, Praha - Nové Město
  • 104 354 Kč
  • 195 m²
Praha, Praha 1, Nové Město, Václavské náměstí, 19
Praha, Praha 1, Nové Město, Václavské náměstí
přidat k oblíbeným Pronájem kanceláře 560 m² Václavské náměstí, Praha - Nové Město
  • obchodovatelné
  • 560 m²
Praha, Praha 1, Nové Město, Václavské náměstí
Praha, Praha 1, Nové Město, Václavské náměstí, 19
přidat k oblíbeným Pronájem kanceláře 195 m² Václavské náměstí, Praha - Nové Město
  • 104 418 Kč
  • 195 m²
Praha, Praha 1, Nové Město, Václavské náměstí, 19
Praha, Praha 1, Nové Město, Václavské náměstí, 40
přidat k oblíbeným Pronájem kanceláře 560 m² Václavské náměstí, Praha - Nové Město
  • obchodovatelné
  • 560 m²
Praha, Praha 1, Nové Město, Václavské náměstí, 40