20krát více reklam od majitelů

Sbíráme reklamy z největších portálů

Realitního makléře od majitele rozeznáváme podle telefonního čísla

Ukážeme, jak se cena změnila

Odstranění duplicitních reklam

Pronájem kanceláře 245 m² Radlická, Praha - Smíchov

Praha, Praha 5, Smíchov, Radlická, 2
  • Objekt CZ-1337582234
  • přidáno:
  • aktualizováno:
fotografie - Pronájem kanceláře 245 m² Radlická, Praha - Smíchov fotografie - Pronájem kanceláře 245 m² Radlická, Praha - Smíchov fotografie - Pronájem kanceláře 245 m² Radlická, Praha - Smíchov fotografie - Pronájem kanceláře 245 m² Radlická, Praha - Smíchov
  • Plná velikost
  • Hledat podobné
fotografie - Pronájem kanceláře 245 m² Radlická, Praha - Smíchov fotografie - Pronájem kanceláře 245 m² Radlická, Praha - Smíchov fotografie - Pronájem kanceláře 245 m² Radlická, Praha - Smíchov fotografie - Pronájem kanceláře 245 m² Radlická, Praha - Smíchov

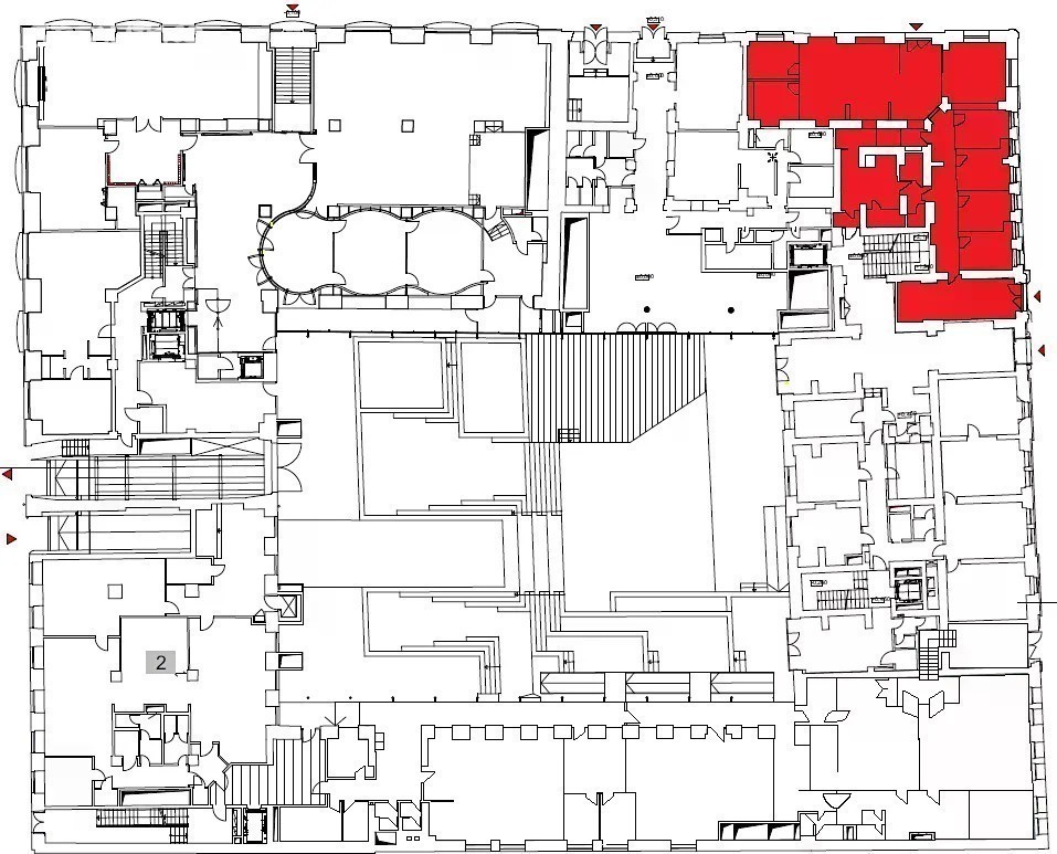
Palác Křižík, pojmenovaný po slavném českém vynálezci Františku Křižíkovi, tvoří soubor památkově chráněných budov z počátku 20. století, situovaných mezi ulicemi Radlická, Plzeňská a Kováků. Po kompletní rekonstrukci a rozšíření, které zahrnuje 7 nadzemních a 4 podzemní podlaží, se z původní továrny stal jeden z nejmodernějších kancelářských komplexů v oblíbené obchodní čtvrti Anděl na Praze 5. Komplex poskytuje moderní pracovní prostředí doplněné o 290 parkovacích míst, kryté atrium, tři stravovací a restaurační provozy, obchodní plochy a veřejnou pasáž. Historická i nová část budov mají centrální recepci s nepřetržitým provozem a moderním designem. Prostory jsou vybaveny kvalitním systémem větrání a klimatizace, přičemž v některých částech je možné i přirozené větrání díky otevíratelným oknům. Moderní dostavba získala certifikaci BREEAM Excellent, která potvrzuje vysoký standard udržitelnosti a energetické úspornosti. Technologické vybavení zahrnuje systémy EPS, EZS, ACS, CCTV a inteligentní řízení budov, což zajišťuje bezpečnost a efektivní provoz. Palác Křižík je ideální volbou pro firmy, které hledají kombinaci historického charakteru a moderní infrastruktury v dynamické lokalitě Prahy 5. Aktuálně volné kancelářské prostory: přízemí, kanceláře / showroom / klientské místo, 246 m2 (vchod z ulice Plzeňská, dispozice viz plánek, k dispozici od 04/2026) Cena pronájmu: Retail 25 EUR/m2/měsíc Služby 120,- Kč/m2/měsíc Parkování 120 EUR/místo/měsíc Parkovací poměr 1:100

Poloha na mapě, užitečná místa a trasy

Objekty v okolí

Praha, Praha 5, Smíchov, Radlická, 1c
přidat k oblíbeným Pronájem kanceláře 379 m² Radlická, Praha - Smíchov
  • 165 945 Kč
  • 379 m²
Praha, Praha 5, Smíchov, Radlická, 1c
Praha, Praha 5, Smíchov, Radlická
přidat k oblíbeným Pronájem kanceláře 434 m² Radlická, Praha - Smíchov
  • 178 487 Kč
  • 434 m²
Praha, Praha 5, Smíchov, Radlická
Praha, Praha 5, Smíchov, Radlická
přidat k oblíbeným Pronájem kanceláře 436 m² Radlická, Praha - Smíchov
  • 164 489 Kč
  • 436 m²
Praha, Praha 5, Smíchov, Radlická
Praha, Praha 5, Smíchov, Radlická, 14
přidat k oblíbeným Pronájem kanceláře 234 m² Radlická, Praha - Smíchov
  • obchodovatelné
  • 234 m²
Praha, Praha 5, Smíchov, Radlická, 14