20krát více reklam od majitelů

Sbíráme reklamy z největších portálů

Realitního makléře od majitele rozeznáváme podle telefonního čísla

Ukážeme, jak se cena změnila

Odstranění duplicitních reklam

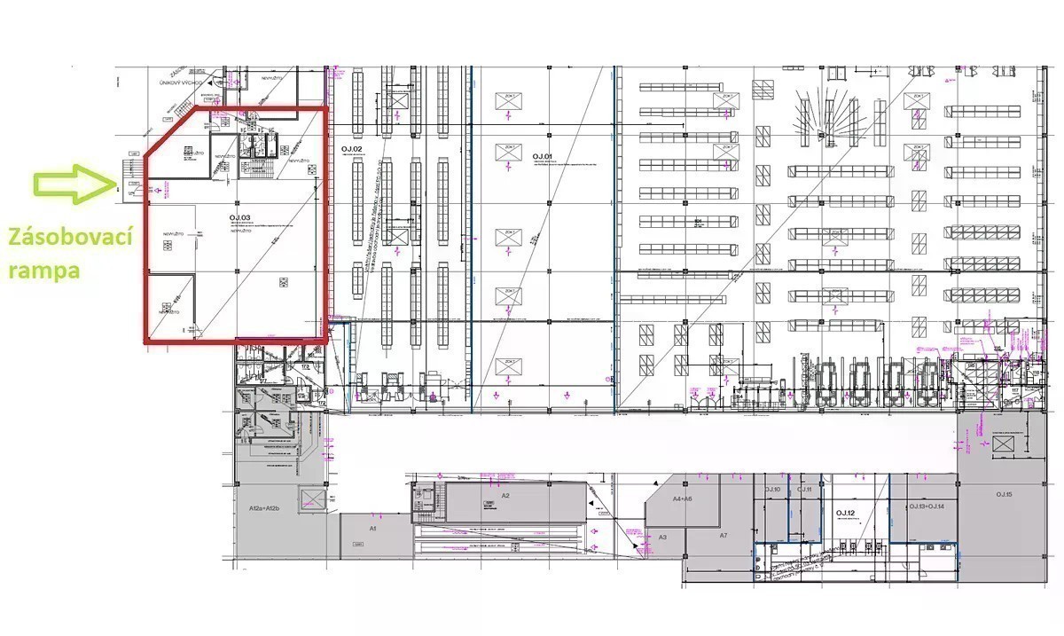
Pronájem skladového prostoru 610 m² Nákladní, Teplice

Teplice, Nákladní
  • Objekt CZ-1326170558
  • přidáno:
  • aktualizováno:
fotografie - Pronájem skladového prostoru 610 m² Nákladní, Teplice fotografie - Pronájem skladového prostoru 610 m² Nákladní, Teplice fotografie - Pronájem skladového prostoru 610 m² Nákladní, Teplice
  • Plná velikost
  • Hledat podobné
fotografie - Pronájem skladového prostoru 610 m² Nákladní, Teplice fotografie - Pronájem skladového prostoru 610 m² Nákladní, Teplice fotografie - Pronájem skladového prostoru 610 m² Nákladní, Teplice

Nabízíme k pronájmu skladový prostor o velikosti 610 m2 při hypermarketu Albert Teplice. Skladový prostor je součástí objektu hypermarket Albert s vlastním přístupem a zásobovací rampou. Po dohodě je možné pronajmout pouze část prostoru.

Poloha na mapě, užitečná místa a trasy

Objekty v okolí

Teplice, Nákladní
přidat k oblíbeným Pronájem obchodního prostoru 210 m² Nákladní, Teplice
  • obchodovatelné
  • 210 m²
Teplice, Nákladní