13 objekty

Prodej bytu 3+1 77 m² Závodu míru, Karlovy Vary - Stará Role
Prodej bytu 3+1 77 m² Závodu míru, Karlovy Vary - Stará Role Karlovy Vary, Stará Role, Závodu míru
3 450 000 Kč
41 071 Kč na m²
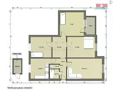
3-pokoj 84 m² 2/6 tento

Nabízíme ke koupi prostorný byt 3+1 v osobním vlastnictví, o celkové ploše 84,53 m (včetně lodžie 4,9 m a sklepa 2,5 m). Byt se nachází ve 2. NP panelového domu se zateplenou fasádou v klidné a dobře dostupné části Karlových Varů Stará Role, ulice Závodu míru. Byt je v původním technickém stavu a je určen k celkové rekonstrukci ideální pro ty, kteří si chtějí vytvořit bydlení podle vlastních představ nebo hledají investiční příležitost se zhodnocením. Dispozice je praktická, s neprůchozími pokoji a dostatkem úložného prostoru. Z jedné z ložnic je vstup na lodžii orientovanou do klidného vnitrobloku. Byt je orientován na jihozápad a severovýchod. Okna jsou plastová s dvojsklem, jádro původní z umakartu, rozvody teplé a studené vody v PVC, odpadní stoupačky litinové. Topení a ohřev vody jsou centrální. Podlahové krytiny: koberce a linoleum. Panelový dům byl postaven přibližně v 90. letech a prošel zateplením fasády. Odpadní stoupačky jsou původní litinové, rozvody teplé a studené vody byly vyměněny za plastové (PVC). Vytápění i ohřev vody jsou zajištěny centrálně. Energetická třída budovy: C úsporná. Lokalita Závodu míru ve Staré Roli je velmi dobře občansky vybavená v pěší vzdálenosti najdete školu, školku, lékárnu, poštu, ordinace lékařů, obchody i zastávky MHD. K odpočinku a sportu vybízí nedaleký volnočasový areál Rolava nebo místní parky. Do centra Karlových Varů se pohodlně dostanete autem i městskou dopravou. Před samotnou prohlídkou si můžete byt pohodlně projít online prostřednictvím 3D virtuální prohlídky, která vám umožní lépe si představit dispozici a potenciál prostoru. V případě většího zájmu o koupi bude kupující vybrán na základě výše nabídky, způsobu financování a rychlosti jednání. Rádi pro Vás připravíme nezávislé srovnání možností financování a navrhneme řešení přímo na míru Vašim potřebám a možnostem. V případě zájmu mě neváhejte kontaktovat. Rád vás bytem osobně provedu.

Prodej bytu 3+1 78 m² Závodu míru, Karlovy Vary - Stará Role
Prodej bytu 3+1 78 m² Závodu míru, Karlovy Vary - Stará Role Karlovy Vary, Stará Role, Závodu míru
3 129 000 Kč
40 115 Kč na m²
3-pokoj 78 m² 1/3 tento

Nabízíme k prodeji bytovou jednotku s dispozicí 3+1 o výměře podlahové plochy 78,50 m2, která se nachází v I.NP, bytového domu na adrese Karlovy Vary - Stará Role, ul. Závodu míru. Byt se skládá z předsíně, odkud je vstup do 3 pokojů, kuchyně, WC a koupelny s vanou. Vytápění bytu zajišťují elektrické přímotopy. K bytu náleží sklepní kóje v 1.PP. Nemovitost je v tuto chvíli obsazena nájemcem, který má nájemní smlouvu platnou do konce roku 2025. V cihlovém domě bez výtahu, který je napojen na vodovod, elektriku, kanalizaci. Dům má přípojku na plyn, který není rozveden do jednotlivých bytů. K nemovitosti je přístup z obecní komunikace a k domu náleží volný oplocený pozemek o výměře 302 m2 za domem, který je možné využít dle platného ÚP. Na nemovitosti je zapsané zástavní právo banky, které bude vymazáno v rámci prodeje. Více informací k této zakázce Vám rádi sdělíme. Množství fotografií je omezené, z důvodu obsazení bytu nájemce. Přiložené fotografie bytu mohou být ve stavu před uzavřením nájemní smlouvy či pouze jako ilustrativní. V rámci služeb naší společnosti Vám pomůžeme s vyřízením hypotéky na koupi bytu či rekonstrukci. Připravíme Vám i možnost na vytváření rezervy na rychlejší doplacení HÚ nebo tvoření rezervy na nenadále výdaje.

Prodej bytu 2+1 70 m² Závodu míru, Karlovy Vary - Stará Role
Prodej bytu 2+1 70 m² Závodu míru, Karlovy Vary - Stará Role Karlovy Vary, Stará Role, Závodu míru
2 839 620 Kč
40 566 Kč na m²
2-pokoj 70 m² 3/3 tento

Nabízíme k prodeji bytovou jednotku s dispozicí 2+1 o výměře podlahové plochy 70,99 m2, která se nachází v III.NP, bytového domu na adrese Karlovy Vary - Stará Role, ul. Závodu míru. Byt se skládá z předsíně, odkud je vstup do 2 pokojů, kuchyně, WC a koupelny s vanou. Vytápění bytu zajišťují elektrické přímotopy. K bytu náleží sklepní kóje v 1.PP. Nemovitost je v tuto chvíli obsazena nájemcem, který má nájemní smlouvu platnou do konce roku 2025. V cihlovém domě bez výtahu, který je napojen na vodovod, elektriku, kanalizaci. Dům má přípojku na plyn, který není rozveden do jednotlivých bytů. K nemovitosti je přístup z obecní komunikace a k domu náleží volný oplocený pozemek o výměře 302 m2 za domem, který je možné využít dle platného ÚP. Na nemovitosti je zapsané zástavní právo banky, které bude vymazáno v rámci prodeje. Více informací k této zakázce Vám rádi sdělíme. Množství fotografií je omezené, z důvodu obsazení bytu nájemce. Přiložené fotografie bytu mohou být ve stavu před uzavřením nájemní smlouvy či pouze jako ilustrativní. V rámci služeb naší společnosti Vám pomůžeme s vyřízením hypotéky na koupi bytu či rekonstrukci. Připravíme Vám i možnost na vytváření rezervy na rychlejší doplacení HÚ nebo tvoření rezervy na nenadále výdaje.

Prodej bytu 2+1 62 m² Závodu míru, Karlovy Vary - Stará Role
Prodej bytu 2+1 62 m² Závodu míru, Karlovy Vary - Stará Role Karlovy Vary, Stará Role, Závodu míru
2 495 000 Kč
40 242 Kč na m²
2-pokoj 62 m² 2/3 tento

Nabízíme k prodeji bytovou jednotku s dispozicí 2+1 o výměře podlahové plochy 62,32 m2, která se nachází v II.NP, bytového domu na adrese Karlovy Vary - Stará Role, ul. Závodu míru. Byt se skládá z předsíně, odkud je vstup do 2 pokojů, kuchyně, WC a koupelny s vanou. Vytápění bytu zajišťují elektrické přímotopy. K bytu náleží sklepní kóje v 1.PP. Nemovitost je v tuto chvíli obsazena nájemcem, který má nájemní smlouvu platnou do konce roku 2025. V cihlovém domě bez výtahu, který je napojen na vodovod, elektriku, kanalizaci. Dům má přípojku na plyn, který není rozveden do jednotlivých bytů. K nemovitosti je přístup z obecní komunikace a k domu náleží volný oplocený pozemek o výměře 302 m2 za domem, který je možné využít dle platného ÚP. Na nemovitosti je zapsané zástavní právo banky, které bude vymazáno v rámci prodeje. Více informací k této zakázce Vám rádi sdělíme. Množství fotografií je omezené, z důvodu obsazení bytu nájemce. Přiložené fotografie bytu mohou být ve stavu před uzavřením nájemní smlouvy či pouze jako ilustrativní. V rámci služeb naší společnosti Vám pomůžeme s vyřízením hypotéky na koupi bytu či rekonstrukci. Připravíme Vám i možnost na vytváření rezervy na rychlejší doplacení HÚ nebo tvoření rezervy na nenadále výdaje.

Prodej bytu 1+1 54 m² Závodu míru, Karlovy Vary - Stará Role
Prodej bytu 1+1 54 m² Závodu míru, Karlovy Vary - Stará Role Karlovy Vary, Stará Role, Závodu míru
2 210 000 Kč
40 926 Kč na m²
1-pokoj 54 m² 1/3 tento

Nabízíme k prodeji bytovou jednotku s dispozicí 1+1 o výměře podlahové plochy 54,81 m2, která se nachází v I.NP, bytového domu na adrese Karlovy Vary - Stará Role, ul. Závodu míru. Byt se skládá z předsíně, odkud je vstup do kuchyně, koupelny s vanou a WC. Z kuchyně je vstup do pokoje, který je orientován do oplocené zahrady u domu. Vytápění bytu zajišťují elektrické přímotopy. K bytu náleží sklepní kóje v 1.PP. Nemovitost je v tuto chvíli obsazena nájemcem, který má nájemní smlouvu platnou do konce roku 2025. V cihlovém domě bez výtahu, který je napojen na vodovod, elektriku, kanalizaci. Dům má přípojku na plyn, který není rozveden do jednotlivých bytů. K nemovitosti je přístup z obecní komunikace a k domu náleží volný oplocený pozemek o výměře 302 m2 za domem, který je možné využít dle platného ÚP. Na nemovitosti je zapsané zástavní právo banky, které bude vymazáno v rámci prodeje. Více informací k této zakázce Vám rádi sdělíme. Množství fotografií je omezené, z důvodu obsazení bytu nájemce. Přiložené fotografie bytu mohou být ve stavu před uzavřením nájemní smlouvy či pouze jako ilustrativní. V rámci služeb naší společnosti Vám pomůžeme s vyřízením hypotéky na koupi bytu či rekonstrukci. Připravíme Vám i možnost na vytváření rezervy na rychlejší doplacení HÚ nebo tvoření rezervy na nenadále výdaje.

Prodej bytu 1+1 45 m² Závodu míru, Karlovy Vary - Stará Role
Prodej bytu 1+1 45 m² Závodu míru, Karlovy Vary - Stará Role Karlovy Vary, Stará Role, Závodu míru, 30
2 095 000 Kč
46 556 Kč na m²
1-pokoj 45 m² 4 tento

Nabízím k prodeji podkrovní byt 1+1 v klidné části Karlových Varů. Tato nemovitost se nachází ve čtvrtém patře cihlového domu bez výtahu. Díky provedené rekonstrukci v roce 2025 je byt v krásném stavu a nabízí moderní a příjemné bydlení. Byt o celkové ploše 45 m² (dle Evidenčního listu) je vybaven částečným zařízením a má také prostorný sklep o rozloze 7 m², což poskytuje dostatek úložného prostoru. Umístění v klidné části města zajišťuje příjemné prostředí pro bydlení s výbornou dostupností různými dopravními prostředky, jako jsou vlak, dálnice, silnice, MHD a autobus. Energetická třída bytu je G. Pokud Vás tento byt zaujal, neváhejte mne napsat nebo zavolat. Rád Vám vše osobně ukáži.

Prodej bytu 1+1 45 m² Závodu míru, Karlovy Vary - Stará Role
Prodej bytu 1+1 45 m² Závodu míru, Karlovy Vary - Stará Role Karlovy Vary, Stará Role, Závodu míru
1 400 000 Kč
31 111 Kč na m²
1-pokoj 45 m² 1/3 tento

Nabízíme k prodeji byt s dispozicí 1+1 v přízemí cihlového bytového domu. Budova, kde se byt nachází není rozdělena na bytové jednotky. Jedná se tedy o prodej ideálního spoluvlastnického podílu ke kterému se váže užívání tohoto bytu. Byt je v současné době pronajat. V případě, kdy jej kupujete jako investici, máte tak zajištěného spokojeného nájemce. Před cca 10ti lety proběhla v bytě základní rekonstrukce. Obvodové zdivo, včetně zdi na chodbu je v místě, kde se byt nachází zateplen. Ohřev teplé vody je řešen el. bojlerem. K vytápění slouží plynové lokální zdroje (tzv. wawky) umístěné v kuchyni a pokoji. Prohlídky možné po předešlé dohodě.

Prodej bytu 2+kk 40 m² Závodu míru, Karlovy Vary - Stará Role
Prodej bytu 2+kk 40 m² Závodu míru, Karlovy Vary - Stará Role Karlovy Vary, Stará Role, Závodu míru
2 880 000 Kč
57 600 Kč na m²
2-pokoj 50 m² 1/4 tento

Zprostředkujeme vám koupi bytu dispozičně řešeného jako 2kk. Byt je umístěn v cihlovém domě, v přízemí. Dům se nachází ve Staré Roli, na ulici Závodu míru, v její klidné části. V současné době se dům zatepluje a bude nová fasáda. V rámci těchto investic budou ještě vylepšeny společné prostory, vč. sklepů. K tomuto bytu jako příslušenství náleží komora v mezipatře a velký sklep o výměře 10 m2. Byt právě prošel kompletní rekonstrukcí. Byly opraveny a položeny nové podlahy, všude byla rozvedena nová elektřina, bylo vymalováno, někde speciálními barvami s dekorem, které jsou omyvatelné. Osadila se nová kuchyňská linka /do bytu bude dodána ještě lednice/. Byt je tedy připraven ihned k nastěhování. Neopomenout nemůžeme ani velkou devizu, a tou je prostorná zahr ada, kterou užívají vlastníci v domě, kde se nachází i společná pergola, v níž se griluje. Díky opravám na domě je na zahradě materiál a pergolu užívají dělníci k odpočinku. Dům je velmi klidný a čistý. Nájemníci mají dobré vztahy. Byt je vhodný jak na investici tak i k vlastnímu bydlení. Během několika minut jste na koupališti Rolava nebo u Penny marketu. V okolí jsou další obchody, školy, školky, lékárna. Autobusová zastávka je v blízkosti domu. Autem je to minuta k nájezdu na obchvat a dálnici na Cheb, ale i směr Praha.

Prodej bytu 2+1 68 m² Závodu míru, Karlovy Vary - Stará Role
Prodej bytu 2+1 68 m² Závodu míru, Karlovy Vary - Stará Role Karlovy Vary, Stará Role, Závodu míru, 134
2 890 000 Kč
42 500 Kč na m²
2-pokoj 68 m² 3/3 tento

Exkluzivně doporučujeme ke koupi byt v klidné části Karlových Varů - ve Staré Roli. Nemovitost je vhodná pro startovací bydlení i jako investiční příležitost. Byt se nachází ve 3. nadzemním podlaží cihlového domu bez výtahu a je určený k rekonstrukci. Velkou výhodou je, že už byly provedeny nové rozvody elektřiny a topení. Do bytu je přiveden plyn a vytápění zajišťuje vlastní plynový kotel. Byt se nachází v posledním patře, což zajišťuje naprostý klid bez sousedů nad hlavou. K bytu náleží sklepní kóje a samostatná uzamykatelná garáž, která je součástí prodeje. To výrazně zvyšuje komfort bydlení i úložné možnosti. Interiér je v původním stavu, připravený na rekonstrukci dle vašich představ. Díky již provedeným technickým úpravám se můžete soustředit především na design, povrchy, kuchyň, koupelnu a další vybavení podle vlastního vkusu. Lokalita Stará Role nabízí kompletní občanskou vybavenost. V docházkové vzdálenosti najdete mateřské a základní školy, supermarkety, lékárny, zdravotnická zařízení, poštu, restaurace, sportoviště a dětská hřiště. Milovníky přírody potěší cyklostezka a pěší trasy podél řeky Rolavy. Dopravní dostupnost je výborná. Vlaková zastávka je vzdálená jen pár minut chůze a do centra Karlových Varů se dostanete během šesti minut. Městská hromadná doprava nabízí několik pravidelných denních i nočních linek. Příjezd autem je rychlý a bezproblémový, s napojením na hlavní silniční tahy. Tento byt představuje ideální možnost pro ty, kteří hledají bydlení za rozumnou cenu s potenciálem k vytvoření vlastního domova, nebo pro investory plánující rekonstrukci a následný pronájem. Díky kombinaci dobré technické výchozí situace, klidné lokality a výborné dostupnosti je nabídka velmi atraktivní. V případě zájmu o prohlídku nebo více informací nás neváhejte kontaktovat. PENB nebyl předložen, proto v souladu se zákonem uvádíme kategorii G.

Prodej bytu 4+1 101 m² Závodu míru, Nejdek
Prodej bytu 4+1 101 m² Závodu míru, Nejdek Nejdek, Karlovy Vary, Závodu míru
2 999 000 Kč
29 693 Kč na m²
4-pokoj 101 m² 1/8 tento

Nabízíme k prodeji prostorný byt 4+1 o užitné ploše 101 m², situovaný v 1. nadzemním podlaží panelového domu v klidné části obce Nejdek. Byt se nachází v sedmipodlažním domě s jedním podzemním podlažím a nabízí ideální dispozici pro rodinné bydlení. V bytě se nachází čtyři prostorné místnosti, které lze využít jako obývací pokoj, ložnici, dětské pokoje či pracovnu. Stav nemovitosti je dobrý, což umožňuje okamžité nastěhování nebo případné úpravy dle vlastních představ. Lokalita nabízí klidné bydlení s výbornou dostupností do centra obce a veškerou občanskou vybaveností včetně zimního stadionu a dalších volnočasových aktivit. Devizou této lokality je perfektní dostupnost do Německa. Nepropásněte svoji příležitost a kontaktujte makléře pro sjednání prohlídky ještě dnes.

Prodej bytu 4+1 125 m² Závodu míru, Karlovy Vary - Stará Role
Prodej bytu 4+1 125 m² Závodu míru, Karlovy Vary - Stará Role Karlovy Vary, Stará Role, Závodu míru
4 600 000 Kč
36 800 Kč na m²
4-pokoj 125 m² 3/3 tento

Nabízíme k prodeji prostorný byt 4 + 1 v klidné lokalitě na adrese Ulice Závodu míru, v části obce Stará Role v Karlových Varech. Tento rodinný dům nabízí ideální prostředí pro život s dětmi, s důrazem na jejich bezpečnost a pohodlí. V okolí se nachází řada škol, parků a dalších atrakcí, které jsou ideální pro rodiny s dětmi. Vybavení nemovitosti zahrnuje velkou zahradu, kde si děti mohou hrát a strávit čas venku, hernu pro jejich zábavu a dětské pokoje, které jsou připraveny pro jejich pohodlí. Díky 125m² velké podlahové ploše poskytuje tento byt dostatek prostoru pro rodinný život a aktivity. Topení plynové. Měsíční poplatky 3.800,-Kč. Byt se nachází ve 3. patře 3-podlažního objektu a je ve velmi dobrém stavu, což zajišťuje komfortní bydlení pro celou rodinu. S odpadem připojeným k kanalizaci, přívodem plynu a dostupností MHD a autobusu je tato lokalita praktická a pohodlná pro každodenní život. V případě zájmu o prohlídku nás neváhejte kontaktovat. ID 618.

Prodej bytu 1+1 39 m² Závodu míru, Karlovy Vary - Stará Role
Prodej bytu 1+1 39 m² Závodu míru, Karlovy Vary - Stará Role Karlovy Vary, Stará Role, Závodu míru
1 800 000 Kč
40 000 Kč na m²
1-pokoj 45 m² 1/4 tento

Nabízíme k prodeji byt 1+1 ve Staré Roli, ul. Závodu Míru, K. Vary. Bytová jednotka je po rekonstrukci - kuchyňská linka, zděná koupelna se sprchovým koutem, omítky, elektroinstalace a vodoinstalace, plovoucí podlaha v kuchyni, plastová okna. S bytovou jednotkou se prodává nebytový prostor v suterénu, kde je umístěn bojler a podíl na zahradě za domem. Doporučujeme prohlídku. Fond oprav 664 Kč měsíčně. Vytápění bytu je přímotopy a elektřina je v nízkém tarifu. V domě je zaveden plyn. S vyřízením financování rádi pomůžeme. Neváhejte nás kontaktovat a přijďte si prohlédnout tuto nemovitost. Podlahovou plochu bytové jednotky tvoří obytná místnost, kuchyně, chodba, koupelna s WC, komora a výměra je dle prohlášení vlastníka orientačně 27,8 m2, nebytový prostor v suterénu je dle prohlášení vlastníka orientačně o výměře 11,8 m2 a celkovou výměru tvoří plocha bytové jednotky, nebytová jednotka, sklep a je dle prohlášení vlastníka o výměře orientačně 45 m2. Výměra vychází podle zák. č. 72/1994 Sb. (BytZ) Před zadáním do inzerce nebyl doložen PENB, dle zákona je povinnost zařadit do energetické třídy-G.

Prodej bytu 3+kk 80 m² Závodu míru, Karlovy Vary - Stará Role
Prodej bytu 3+kk 80 m² Závodu míru, Karlovy Vary - Stará Role Karlovy Vary, Stará Role, Závodu míru, 31
3 120 000 Kč
39 000 Kč na m²
3-pokoj 80 m² 1 tento

Nabízíme k prodeji prostorný byt 3+kk v cihlovém domě ve velmi dobrém stavu, nacházející se v klidné lokalitě Karlových Varů. Byt o užitné ploše 80 m² se nachází v prvním patře a je ideální volbou pro rodiny hledající komfortní a dobře situované bydlení. Tento jednopodlažní byt poskytuje útulné a moderní prostředí, kde jistě oceníte přítomnost terasy o rozloze 4 m², která nabízí příjemný venkovní prostor k relaxaci. Byt je v podílovém vlastnictví, což zaručuje větší flexibilitu a kontrolu při plánování budoucnosti. Byt bude k nastěhování od 1. 9.2025, což dává novému majiteli dostatek času na plánování a přípravy k novému bydlení. Celková cena činí 3 210000 Kč. Měsíční zálohy na plyn a elektřinu činí 3 200 Kč a 1 200 Kč, navíc k obvyklým poplatkům do SVJ ve výši 2 000 Kč. Díky cihlové konstrukci si můžete být jisti dobrými izolačními vlastnostmi stavby. Pokud Vás byt zaujal, neváhejte nám napsat nebo zavolat a rádi Vám vše ukážeme osobně. Prohlídky jsou možné po předchozí domluvě. Pro více informací o této nemovitosti nebo sjednání prohlídky nás prosím kontaktujte nebo vyplňte níže uvedený formulář, rádi Vám pomůžeme.

Otevřít mapu Mapa