4 533 objekt

Объект CZ-1325786636 не найден. Возможно, он удалён по истечению срока давности, либо находится в процессе публикации.

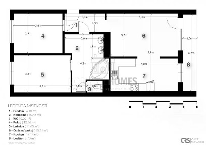
Prodej bytu 3+kk 65 m² Pod průsekem, Praha - Hostivař
Prodej bytu 3+kk 65 m² Pod průsekem, Praha - Hostivař Praha, Praha 10, Hostivař, Pod průsekem
9 800 000 Kč
148 485 Kč na m²
3-pokoj 66 m² 1/3 tento

Ve výhradním zastoupení majitele vám nabízíme prostorný byt 3+kk v Praze - Hostivaři, ideální rodinné bydlení i chytrá investice Hledáte byt, který nabídne klid, dostatek prostoru a zároveň skvělou dostupnost do centra Prahy? Tento světlý byt 3+kk o užitné ploše 65 m² v oblíbené části Prahy 10 - Hostivař splní očekávání rodin i investorů hledajících stabilní hodnotu. Byt je promyšleně dispozičně řešený tak, aby poskytoval maximální soukromí a komfort. Oddělení obytné a klidové části zajišťuje předsíň a především hala mezi obytnou a ložnicovou částí. Po vstupu do bytu vás přivítá prostorná předsíň (7,9 m²), ze které se vstupuje do vzdušného obývacího pokoje s kuchyňským koutem (23,9 m²). Na obytnou, rušnější část bytu navazuje hala, ze které je vstup do dvou neprůchozích pokojů (10,4 m² a 13,5 m²), ideálních jako ložnice, dětský pokoj či pracovna. Koupelna s vanou a WC je prakticky řešena přes malou předmístnost s umyvadlem. Byt je orientován na jihovýchod a nabízí klidný výhled do zahrad rodinných domů, což zajišťuje dostatek světla a příjemnou atmosféru po celý den. Dům je moderní skeletová stavba zkolaudovaná v roce 2013, kompletně zateplená, bezbariérová a architektonicky oceňovaná. Vytápění a ohřev vody jsou řešeny centrálně s vlastní výměníkovou stanicí v domě. Samozřejmostí jsou kvalitní materiály - zděné jádro, hliníková okna s dvojskly, dřevěné plovoucí podlahy. Součástí bytu je sklepní kóje ve společném sklepě a vlastní parkovací stání v podzemní garáži, což je v Praze výrazný benefit. K dispozici je pevné internetové připojení. Velkou předností je výjimečná lokalita. Byt se nachází přímo u Hostivařského lesoparku a přehrady, které nabízejí prostor pro sport, relaxaci i rodinné procházky. V okolí najdete kompletní občanskou vybavenost - školy, školky, obchody, zdravotní služby i restaurace. Výborná je také dopravní dostupnost: v docházkové vzdálenosti jsou zastávky MHD s přímým napojením na metro A (Skalka) i C (Opatov), vlaková stanice Praha-Hostivař a rychlý nájezd na Jižní spojku a Pražský okruh. Tento byt představuje ideální kombinaci klidného bydlení u přírody, moderního domu a skvělé dostupnosti - ať už hledáte nový domov, nebo jistou investici s dlouhodobým potenciálem. Uvedené výměry jsou orientační. V případě více zájemců bude nemovitost prodána nejlepší nabídce a majitel si vyhrazuje právo vybrat kupujícího na základě jím zvolených kritérií. Veškeré zveřejněné údaje v tomto inzerátu mají pouze informativní charakter.

Prodej bytu 4+kk 106 m² Kutnohorská, Praha - Dolní Měcholupy
Prodej bytu 4+kk 106 m² Kutnohorská, Praha - Dolní Měcholupy Praha, Praha 10, Dolní Měcholupy, Kutnohorská, 51
17 491 000 Kč
165 009 Kč na m²
4-pokoj 106 m² 3/4 tento

Nabízíme byt o dispozici 4+kk v novém rezidenčním projektu LARIO v moderním provedení s důrazem na energeticky úsporné bydlení. Byt poskytuje vysoký komfort díky podlahovému vytápění, rekuperaci, stropům o výšce 2,8 m, dřevěným podlahám a inteligentnímu řešení SMARTHOME od společnosti Loxone. Solární panely instalované na střechách bytových domů umožnují efektivní využití sluneční energie, čímž přispívají ke snížení celkových provozních nákladů. Ke každému bytu náleží balkon, terasa nebo předzahrádka a sklepní kóje. Parkovací stání v podzemní garáži je možné dokoupit, včetně místa s wallboxem pro elektromobil. Lokalita Dolních Měcholup nabízí klidné prostředí s výbornou dostupností do centra Prahy a plnou občanskou vybavenost. V docházkové vzdálenosti je škola, školka, obchody, zdravotní služby, sportoviště i přírodní parky s cyklostezkami. Součástí projektu je nově vznikající náměstí s obchody a službami, které přirozeně doplní občanskou vybavenost v této části Prahy.

Prodej bytu 1+kk 35 m² Za Novákovou zahradou, Praha - Satalice
Prodej bytu 1+kk 35 m² Za Novákovou zahradou, Praha - Satalice Praha, Praha 9, Satalice, Za Novákovou zahradou
5 909 066 Kč
168 830 Kč na m²
1-pokoj 35 m² 3/3 tento

Nové moderní bydlení na pomezí města a přírody Objevte svůj nový domov v Satalicích, kde se pohodlí městského života snoubí s klidnou atmosférou přírody. Projekt U Arborky přináší moderní bydlení v harmonickém prostředí s výbornou dostupností a širokou nabídkou služeb. O projektu V rámci projektu vzniká 35 bytových jednotek o dispozicích od 1+kk po prostorné 3+kk, které splní požadavky jednotlivců i rodin. K dispozici je 58 parkovacích míst, takže parkování nebude problém. Termín dokončení Plánované dokončení projektu a možnost nastěhování: 3. kvartál 2026. Nabízený byt Tento byt se nachází ve 3. nadzemním podlaží a nabízí dispozici 1+kk s celkovou plochou 34,9 m²: • Obývací pokoj s kuchyňským koutem - 22,97 m² • Koupelna - 4,8 m² • Chodba - 5,09 m² K bytu náleží také terasa o velikosti 14,01 m². K bytu je možné dokoupit: garážové parkovací stání - 495 000 Kč venkovní parkovací stání - 300 000 Kč sklepní kóji - 80 000 Kč Moderní standardy a technologie Byt je vybaven vinylovými podlahami s dekorem dřeva a plastovými okny s trojsklem s přípravou na předokenní žaluzie. Vytápění budovy zajišťují dva plynové kotle. Kuchyňská linka a nábytek nejsou součástí dodávky. Lokalita a okolí Satalice nabízejí výbornou občanskou vybavenost i blízkost přírody: • Školy, školky, obchody, restaurace • Satalická obora, cyklostezky, sportoviště • Golf Resort Black Bridge, tenisové kurty, fotbalové hřiště • Nákupní centrum Černý Most - obchody, kina, fitness Doprava Dopravní dostupnost je jedním z hlavních benefitů projektu: • Vlaková stanice Praha-Satalice jen 5 minut od domu - rychlé spojení do centra Prahy • Napojení ma městský okruh 3 minuty autem • Autobusová zastávka 10 minut od domu Kontakt a prohlídky Více informací najdete na webu projektu Rádi se Vám budeme věnovat osobně v pracovních dnech na adrese Dock In Five, Boudníkova 2538/13, Praha 8 - Libeň. Schůzky si prosím rezervujte předem e-mailem nebo telefonicky. Začněte nový život v harmonii s přírodou a městem. Váš nový domov čeká U Arborky v Satalicích.

Prodej bytu 2+kk 81 m² Lodžská, Praha - Bohnice
Prodej bytu 2+kk 81 m² Lodžská, Praha - Bohnice Praha, Praha 8, Bohnice, Lodžská
10 560 885 Kč
130 381 Kč na m²
2-pokoj 81 m² 5/6 tento

Byt 2+kk s lodžií v Rezidenci Odra - nový začátek v srdci Bohnic Hledáte nový domov v klidné a přitom skvěle dostupné lokalitě? Rezidence Odra je moderní projekt s duší i budoucností, který vzniká na místě bývalého obchodního centra v pražských Bohnicích. Nyní vám nabízíme konkrétní volnou jednotku 2+kk o ploše 81,14  m², nacházející se v 5. nadzemním podlaží budovy ve fázi dokončení. Dispozice bytu: prostorná vstupní chodba - 9,22 m² schodiště - 7,12 m² obývací pokoj s kuchyňským koutem - 22,84 m² ložnice - 18,69 m² koupelna - 4,44 m² lodžie orientovaná na východ - 4,48 m² schodiště - 9,31 m² terasa orientovaná na východ - 59,12 m² komora umístěná mimo byt - 5,92 m² Byt zaujme vysokými stropy, které umocňují vzdušnost interiéru, a velkoformátovými okny s jižní orientací, díky nimž je prostor krásně prosvětlený. Součástí bytu je i útulná lodžie, ideální k ranní kávě nebo večernímu odpočinku. Možnost parkování: Ke každé bytové jednotce lze dokoupit garážové stání v 1. nebo 2. podzemním podlaží za cenu 550 000 Kč. Technické standardy zahrnují: vinylové podlahy s lištami nebo rektifikovanou dlažbou plasto-hliníková okna s izolačními trojskly bezpečnostní vstupní dveře teplovodní podlahové vytápění elektrická příprava pro předokenní žaluzie Skvělá lokalita: Doprava: autobusová zastávka přímo u domu, stanice metra C - Kobylisy jen pár minut jízdy Občanská vybavenost: školy, školky, zdravotnická zařízení, pošta, OC Krakov - vše v pěší vzdálenosti Příroda: Ďáblický háj, přírodní park Troja, botanická a zoologická zahrada, aquapark Šutka O projektu: Rezidence Odra nabídne celkem 71 bytových jednotek o dispozicích od 1+kk po 4+kk a také komerční prostory v přízemí - např. prodejnu DM drogerie nebo obchod Action. Projekt splňuje požadavky vládního nařízení č. 366/2013 Sb. Kontaktujte nás Více informací naleznete na webu odrarezidence. Rádi vás přivítáme osobně - naše kanceláře najdete na adrese: Dock In Five, Boudníkova 2538/13, Praha 8 - Libeň Schůzky si, prosím, rezervujte předem telefonicky nebo e-mailem. Těšíme se na vás! Tým Esty

Prodej bytu 2+1 65 m² U kolejí, Praha - Veleslavín
Prodej bytu 2+1 65 m² U kolejí, Praha - Veleslavín Praha, Praha 6, Veleslavín, U kolejí
9 900 000 Kč
128 571 Kč na m²
2-pokoj 77 m² 3 tento

Nabízíme k prodeji výjimečnou nabídku bytu dispozice 2+1 s lodžií, šatnou a prostorným sklepem v rezidenční oblasti Veleslavín, v klidné části s výhledem do zeleně a současně vzdálený pouze 10 minut pěšky od přírodního parku Divoká Šárka. Byt prošel nedávno velmi náročnou a kvalitní rekonstrukcí. Vše bylo rekonstruováno včetně rozvodů, podlah, omítek, dveří, obkladů, sanity a podobně v exkluzivní kvalitě. Podlahy jsou dřevěné, veškeré omítky jsou nové, koupelna a WC jsou obloženy velkoformátovými obklady a vybaveny kvalitní sanitou. Veškerý vestavný nábytek je na míru s použitím vysoce kvalitních materiálů. Všechny dveře jsou posuvné opět na míru. Nová kuchyň s masivní dřevěnou deskou a kvalitními spotřebiči je součástí prodeje. Stejně tak i šatna s vestavným nábytkem, která je přímo u ložnice. Parapety u oken jsou z masivního dřeva. Vedle kuchyně je technická místnost pro pračku a sušičku Byt má vlastní elektrický kotel na topení i ohřev vody, tedy provoz bytu je velice úsporný, měsíční zálohy na elektřinu jsou 4900Kč na veškerý provoz. SVJ je velmi dobře fungující společenství jen tohoto domu, dům je zateplený, má vyměněná okna a je velmi dobře udržovaný. Byt je ve druhém patře (3NP), světlý s velkými okny orientovanými na jih, kuchyně s lodžií na sever. Byt má plochu 64,6m2+lodžie 2m2, sklep o ploše 8,56m2 a 1/8 pozemku za domem, v domě je kolárna. Dům je klidný se stálými nájemníky na okraji zastavěné části. Skvělá dostupnost do centra i na letiště současně s možností rekreace v malebném přírodním parku. Lze financovat hypotékou.

Prodej bytu 2+kk 40 m² Makovského, Praha - Řepy
Prodej bytu 2+kk 40 m² Makovského, Praha - Řepy Praha, Praha 6, Řepy, Makovského, 1
4 475 000 Kč
111 875 Kč na m²
2-pokoj 40 m² 12/13 tento

Byt připravený ke kompletní rekonstrukci. Nic vás nebude rozptylovat! Můžete pustit uzdu vaši představivosti. Je vhodný jak pro vlastní bydlení, tak i na investici. Mezi výhody patří velký výhled na okolí, jelikož se byt nachází ve 12 patře. K bytu náleží také sklep. Byt o velikosti 40 m² + balkón 7 m² + sklep 2 m². Koupelna a toaleta je zvlášť. Nemovitost je aktuálně zapsána na katastru jako jiný nebytový prostor avšak splňuje všechny podmínky pro komfortní bydlení. Přihlášení k trvalému pobytu a financování hypotečním úvěrem je možné. V domě se nachází fitness a v blízkosti domu naleznete obchodní centrum, tramvajovou zastávku a spoustu kaváren a restaurací. Pokud si chcete byt koupit, tak mi zavolejte nebo napište a domluvíme se na podrobnostech.

Prodej bytu 1+kk 23 m² Sokolská, Praha - Nové Město
Prodej bytu 1+kk 23 m² Sokolská, Praha - Nové Město Praha, Praha 2, Nové Město, Sokolská, 8
5 295 000 Kč
230 217 Kč na m²
1-pokoj 23 m² 6/6 tento

Nabízíme 1+kk o velikosti podlahové plochy 23 m2 po kompletní rekonstrukci jednotky i celého 300 let starého a stylového domu s novým výtahem a sklepní kójí (2 m2) v ulici Sokolská na Praze 2. Jednotka je situována do klidného vnitrobloku se vzrostlými stromy s korunami nedaleko oken. Jedinečná příležitost na investici formou startovního bydlení pro děti, nebo jako jednotku pro krátkodobé ubytování formou Airbnb nebo dlouhodobého pronájmu s povolením města ke zřízení trvalého pobytu, a tak můžete využít modré parkovací zóny po celé Praze 2. Nabízíme spojení tohoto a vedlejšího bytu a vytvoření krásného 2+kk o velikosti 45 m2. Jednotka se skládá z hlavní místnosti vybavené podlahovým elektrickým topením, klimatizací a trojitou vrstvou protihlukového opatření mezi jednotkami. Koupelna se samostatným nastavením podlahového topení, WC geberit, sprchový kout, umyvadlo se skříňkou. Ohřev vody řešen elektrickým bojlerem. Jednotka disponuje nízkými poplatky za dům ve výši 2000 Kč. Využijete nového trendu bydlení či investice v centru Prahy, jen 5 minut chůze od metra I. P. Pavlova. S velkým veřejným parkovištěm jen minutu chůze od domu a recepcí 24/7. V případně zájmu o prohlídku neváhejte kontaktovat taktování makléře

Prodej bytu 1+kk 33 m² Stočesova, Praha - Ruzyně
Prodej bytu 1+kk 33 m² Stočesova, Praha - Ruzyně Praha, Praha 6, Ruzyně, Stočesova
2 590 000 Kč
78 485 Kč na m²
1-pokoj 33 m² 5/6 tento

Nabízíme postoupení nového družstevního bytu 1+kk v projektu Rezidence U Šárky IX (dům F2b) úspěšného developera FINEP. Byt 1+kk o velikosti 32,5 m2 + lodžie 4,2 m2 se nachází v 5. nadzemním podlaží (z celkových šesti) s orientací na jihovýchod. Dispozice bytu: obývací pokoj s kuchyňským koutem, koupelna s WC, chodba, lodžie. Cena za postoupení bytu: 2 590 000 Kč (z vlastních zdrojů) Doplatek za byt, který budete splácet formou anuity: 4 216 231 Kč (po kolaudaci) - nepotřebujete hypotéku, žádné schvalování bankou, bez dokazování příjmu Anuita se splácí až po převzetí dokončeného bytu (předpoklad 06/2027). Nyní zaplatíte pouze cenu za postoupení. Aktuálně měsíční splátka bytu činí 22 510 Kč. Developer bude před dokončením projektu jednat s financující bankou o snížení úrokových sazeb na základě aktuální situace na trhu. Garážové stání a sklep příslušící k dané jednotce nejsou zahrnuty v ceně za postoupení bytu. V době výstavby nelze převést do osobního vlastnictví. Skvělá občanská vybavenost: OC Šestka, OC Delta, Premium Outlet Prague Airport, venkovní hřiště, dětské hřiště, základní škola Dědina, mateřská škola Na Dlouhém lánu. V blízkosti přírodní rezervace Šárka, koupaliště Džbán, obora Hvězda s letohrádkem Hvězda. Tramvajová stanice Dědina cca 200 metrů od domu jedoucí pouze 8 minut na metro A Nádraží Veleslavín. Vlakové nádraží Praha - Ruzyně.

Prodej bytu 2+kk 52 m² Stočesova, Praha - Ruzyně
Prodej bytu 2+kk 52 m² Stočesova, Praha - Ruzyně Praha, Praha 6, Ruzyně, Stočesova
2 990 000 Kč
57 500 Kč na m²
2-pokoj 52 m² 3/6 tento

Nabízíme postoupení nového družstevního bytu 2+kk v projektu Rezidence U Šárky IX (dům F2b) úspěšného developera FINEP. Byt 2+kk o velikosti 52,2 m2 + lodžie 6,0 m2 se nachází ve 3. nadzemním podlaží (z celkových šesti) s orientací na jihovýchod. Dispozice bytu: obývací pokoj s kuchyňským koutem, ložnice, koupelna s WC, chodba, komora v rámci bytu, lodžie. Byt je s kompletně vybavenou koupelnou ve standardním provedení, interiérovými dveřmi, přípravou na kuchyňskou linku a protipožárními vstupními dveřmi. Developer též nabízí možnost využít dotace na podlahovou krytinu ve výši 500 Kč/m2. Cena za postoupení bytu: 2 990 000 Kč (z vlastních zdrojů) Doplatek za byt, který budete splácet formou anuity: 5 687 788 Kč (po kolaudaci) - nepotřebujete hypotéku, žádné schvalování bankou, bez dokazování příjmu Garážové stání a sklep příslušící k bytu nejsou zahrnuty ve výše uvedené ceně. Anuita se splácí až po převzetí dokončeného bytu (předpoklad 06/2027). Nyní zaplatíte pouze cenu za postoupení. Možnost vložení mimořádné splátky či doplacení anuity. Aktuálně měsíční splátka bytu činí 30 367 Kč. Developer bude před dokončením projektu jednat s financující bankou o snížení úrokových sazeb na základě aktuální situace na trhu. V době výstavby nelze převést do osobního vlastnictví. Skvělá občanská vybavenost: OC Šestka, OC Delta, Premium Outlet Prague Airport, venkovní hřiště, dětské hřiště, základní škola Dědina, mateřská škola Na Dlouhém lánu. V blízkosti přírodní rezervace Šárka, koupaliště Džbán, obora Hvězda s letohrádkem Hvězda. Tramvajová stanice Dědina cca 200 metrů od domu jedoucí pouze 8 minut na metro A Nádraží Veleslavín. Vlakové nádraží Praha - Ruzyně (linky S).

Prodej bytu 2+1 51 m² Baarové, Praha - Hlubočepy
Prodej bytu 2+1 51 m² Baarové, Praha - Hlubočepy Praha, Praha 5, Hlubočepy, Baarové
2 690 000 Kč
52 745 Kč na m²
2-pokoj 51 m² 4/6 tento

Nabízíme postoupení nového družstevního bytu 2+1 v projektu Kaskády Barrandov (dům Q1) úspěšného developera FINEP v ulici Gollové, Praha 5 - Hlubočepy. Bytová jednotka 2+1 o velikosti 51,0 m2 + balkón 6,5 m2 se nachází ve 4. nadzemním podlaží (z celkových šesti) s orientací na severozápad. Dispozice bytu: pokoj, pokoj + šatna, místnost pro vaření, koupelna s WC, chodba, balkón. Cena za postoupení bytu: 2 690 000 Kč (zaplatíte nyní z vlastních zdrojů) Doplatek anuity za byt: 6 559 576 Kč (po kolaudaci a převzetí bytu) Nepotřebujete hypotéku, žádné schvalování bankou, bez dokazování příjmu. Anuita se splácí až po převzetí dokončeného bytu (předpoklad kolaudace 12/2027). Nyní zaplatíte pouze cenu za postoupení. Garážové stání příslušící k bytu za příplatek. Aktuálně měsíční splátka anuity bytu činí 35 376 Kč. V době výstavby nelze převést do osobního vlastnictví. Za 15 minut chůze se dostanete do Prokopského údolí. Tramvajové linky ze zastávky Náměstí Olgy Scheinpflugové jezdí 13 minut na Smíchovské nádraží (metro B, vlaková spojení) či na Národní divadlo. Plavecký komplex Aquadream. Skvělá občanská vybavenost - potraviny, kavárny, základní a mateřská škola.

Prodej bytu 3+1 73 m² Livornská, Praha - Horní Měcholupy
Prodej bytu 3+1 73 m² Livornská, Praha - Horní Měcholupy Praha, Praha 10, Horní Měcholupy, Livornská
7 990 000 Kč
109 452 Kč na m²
3-pokoj 73 m² 7/8 tento

Nabízíme k prodeji útulný byt v šestém patře panelového domu o dispozici 3+1/L o velikosti 73,5 m2 + 6,8 m2 lodžie + 2,5 m2 sklepní kóje. Byt je ve výborném stavu, krásně udělaná kuchyňská linka, v ložnicích a chodbě šatní skříně na míru, útulný obývací pokoj, zasklení lodžie. Součástí prodeje je nábytek v ložnici, pokoji i kuchyni. Byt je příjemně zateplen zevnitř, což má pozitivní vliv na spotřebu tepla. Vstupní dveře jsou bezpečnostní s vysokým stupněm zabezpečení. Celý dům je zateplen, střecha po repasi, okna plastová s dvojskly. Byt je čistý, bez právních vad s možností financování hypotečním úvěrem. Bližší informace ochotně sdělí makléř nabídky. Nabídku vřele doporučuji.

Prodej bytu 2+kk 57 m² Boleslavova, Praha - Nusle
Prodej bytu 2+kk 57 m² Boleslavova, Praha - Nusle Praha, Praha 4, Nusle, Boleslavova, 2
7 950 000 Kč
139 474 Kč na m²
2-pokoj 57 m² 3/5 tento

Naše společnost Vám zprostředkuje možný prodej bytu ve druhém patře cihlového domu bez výtahu v ulici Boleslavova na Praze 4. Vstupuje se do předsíně, dále do hlavní místnosti, která disponuje kuchyňskou linkou dle fotografií, plastová okna, na podlahách plovoucí podlaha. Koupelna je po kompletní nedávné rekonstrukci, situovaná samostatně, vybavená sprchovým koutem, toaletou a umyvadlem. Koupelna je prosklená do světlíku, prosklení dodává koupelně denní světlo. Ložnice je situovaná do vnitrobloku, dále byt disponuje praktickou komorou/pracovnou nebo šatnou. Byt je nyní obsazen nájemníky. V blízkosti je veškerá občanská vybavenost, park, kousek do centra města tramvají. V plánu do budoucna je i výstavba metra. Majitel si vyhrazuje právo prodat byt nejvyšší nabídce. Nabídku doporučuji. Ev. číslo: 653290.

Prodej bytu 1+1 40 m² Švehlova, Praha - Hostivař
Prodej bytu 1+1 40 m² Švehlova, Praha - Hostivař Praha, Praha 10, Hostivař, Švehlova, 30
4 450 000 Kč
111 250 Kč na m²
1-pokoj 40 m² -1/13 tento

Prodej nebytového prostoru s možností (příležitostného) bydlení 40 m² - Praha 10, Hostivař Nabízíme k prodeji kompletně zrekonstruovaný nebytový prostor o celkové ploše 40 m², umístěný v suterénu panelového domu v klidné a dobře dostupné lokalitě Prahy 10 - Hostivař. Prostor prošel kompletní rekonstrukcí a je připraven k okamžitému využití. Součástí je nová koupelna se sprchovým koutem a toaletou a také příprava na instalaci kuchyňské linky. K dispozici jsou dvě menší okna, která zajišťují denní světlo a přirozené větrání. Díky své dispozici a technickému stavu nabízí prostor široké možnosti využití - ideální jako kancelář, studio, ateliér, relaxační zóna, případně i alternativní bydlení (nebytový prostor). Lokalita Hostivař nabízí výbornou občanskou vybavenost, dobrou dopravní dostupnost MHD i rychlé napojení na hlavní dopravní tahy. V okolí se nachází zeleň, Hostivařský lesopark i veškeré potřebné služby. S námi máte možnost tento nebytový prostor financovat i výhodným bankovním financováním. Vše připravíme a zajistíme k vaší spokojenosti. Hlavní výhody: plocha 40 m² kompletní rekonstrukce koupelna + příprava na kuchyň dvě okna variabilní využití žádaná lokalita Praha 10 - Hostivař Pro více informací nebo domluvení prohlídky nás neváhejte kontaktovat. Pro komunikaci uvádějte evidenční číslo zakázky N115323.

Prodej bytu 2+kk 45 m² Jana Želivského, Praha - Žižkov
Prodej bytu 2+kk 45 m² Jana Želivského, Praha - Žižkov Praha, Praha 3, Žižkov, Jana Želivského, 20
7 200 000 Kč
160 000 Kč na m²
2-pokoj 45 m² 1 tento

Spol. Protsenko & Svoboda v exkluzivním zastoupení majitele nabízí ke koupi výjimečně dobře situovaný investiční byt 2+kk o podlahové ploše 40,4 m², který se nachází na prestižní adrese Jana Želivského 1729/20, Praha 3 - Žižkov. Součástí ceny je sklep o velikosti 5 m². K bytu je dále k užívání balkon o ploše cca 3 m² (balkon není v osobním vlastnictví, nicméně je plně využíván - klíče má majitel bytu). Ideální investice Byt je aktuálně pronajatý na dobu určitou s měsíčním nájemným 30.000 Kč včetně poplatků, je potenciál ke zvýšení nájmu. Nový majitel má maximální flexibilitu: • nájemník může po dohodě v bytě zůstat (okamžitý výnos bez starostí), • nebo se odstěhovat, pokud kupující plánuje vlastní užívání či nový investiční záměr. Dispozice Praktická dispozice 2+kk nabízí: • obývací pokoj s kuchyňským koutem, • samostatnou ložnici, • koupelnu s WC, • předsíň s úložným prostorem. Dispozice je velmi dobře pronajímatelná - ideální pro jednotlivce, pár či firemní nájem. Lokalita - jeden z nejsilnějších benefitů Adresa Jana Želivského patří dlouhodobě mezi nejvyhledávanější části Prahy 3. Hlavní výhody lokality: • tramvajová zastávka přímo naproti domu - perfektní dopravní dostupnost • rychlé spojení do centra města • kompletní občanská vybavenost v docházkové vzdálenosti (obchody, restaurace, služby) • blízkost parků a zeleně • dlouhodobě silná poptávka po nájemním bydlení Shrnutí • 2+kk | 40,4 m² • sklep 5 m² v ceně • balkon 3 m² k užívání • nájemné 30.000 Kč / měsíc vč. poplatků je potenciál ke zvýšení nájmu • špičková adresa • ideální investice i budoucí vlastní bydlení Pro více informací nebo domluvení prohlídky mě neváhejte kontaktovat. V případě spolupráci s naši RK, kromě kouzelné nemovitosti, vždy dostanete zdarma: - konzultační servis - jazyková vybavenost (mluvíme česky, anglicky, francouzsky, italsky, абв) - právnický servis od AK Hafner & Partneři - servis daňové amortizace - kupony na slevu v top obchodech s nábytkem - stěhování - technika pro drobné úpravy - analýzy trhu

Prodej bytu 1+kk 47 m² Jeseniova, Praha - Žižkov
Prodej bytu 1+kk 47 m² Jeseniova, Praha - Žižkov Praha, Praha 3, Žižkov, Jeseniova, 48
7 190 000 Kč
152 979 Kč na m²
1-pokoj 47 m² 2 tento

Nabízíme k prodeji velmi příjemný byt v osobním vlastnictví v atraktivní části Prahy. Jedná se o moderní byt 1+kk ve 2. patře domu s celkovou užitnou plochou 47 m². Byt je jednopodlažní a díky svému uspořádání nabízí dostatek prostoru pro vlastní představy a kreativní řešení interiéru. Velkým benefitem je prostorný balkon, který přirozeně rozšiřuje obytný prostor a poskytuje ideální místo pro odpočinek na čerstvém vzduchu. Byt se prodává dle preferencí včetně vybavení z fotografií a součástí je také sklep. V přízemí domu se nachází garáž se dvěma parkovacími stáními, každé za cenu 890 000 Kč. Při koupi bytu společně s parkovacím místem, případně oběma místy, je cena parkování předmětem jednání. Dům nabízí nadstandardní zázemí - k dispozici je recepce, italské potraviny s kavárnou i lékařská ordinace. Díky poloze a vysoké poptávce po krátkodobých i dlouhodobých pronájmech představuje byt také velmi zajímavou investiční příležitost. Byt je k dispozici ihned. Cena bytu bez parkovacího stání činí 7 190 000 Kč. V případě zájmu nás neváhejte kontaktovat, rádi vám byt osobně představíme.

Prodej bytu 2+1 58 m² Vratimovská, Praha - Letňany
Prodej bytu 2+1 58 m² Vratimovská, Praha - Letňany Praha, Praha 9, Letňany, Vratimovská
obchodovatelné
2-pokoj 58 m² 4/6 tento

Nabízíme k prodeji byt v osobním vlastnictví o celkové podlahové ploše 58 m², ke kterému náleží balkón a sklepní kóje, umístěná v přízemí domu. Jednotka se nachází ve 4 podlaží udržovaného bytového domu s výtahem. Byt je v původním stavu a představuje tak ideální příležitost pro budoucího vlastníka upravit si vše plně podle svých představ. Dispozičně je nemovitost řešena jako dvě samostatné obytné místnosti, dále je zde chodba, toaleta, koupelna a kuchyně. Nemovitost se nachází pár minut od stanice metra "C" a jednoho z největších obchodně-zábavních center v České republice. Toto obchodní centrum přináší velké množství možností trávení volného času všem generacím. Nákupy, multikino, restaurace, fitness a zimní stadion, to jsou jen některé druhy zábavy, které vás zde čekají. Občanská vybavenost je v Letňanech také na velmi vysoké úrovni. Nalezneme zde mateřské školy, základní a střední školu, poštu, veletržní areál a také zdravotnická zařízení.

Prodej bytu 2+kk 44 m² Lipnická, Praha - Kyje
Prodej bytu 2+kk 44 m² Lipnická, Praha - Kyje Praha, Praha 9, Kyje, Lipnická
7 350 000 Kč
167 045 Kč na m²
2-pokoj 44 m² 5/5 tento

Nabízíme k prodeji byt 2+kk/S v OV, 44 m2, 0,7 m2 sklep, Praha 9 - Kyje, ul. Lipnická Byt se nachází ve 4. patře cihlového bytového domu s výtahem v pražských Kyjích, ul. Lipnická. Má dispozici 2+kk a podlahovou plochu 44 m2. K bytu náleží sklepní kóje o 0,7 m2. Byt prošel revitalizací, aby vynikly mnohé praktické klientské změny včetně změn příček, které jej odlišují od ostatních bytů v domě. Již v předsíni zaujme příchozího \\"skříň\\" na stropě. Dokonalé využití 2,7 m vysokých stropů pro získání úložného prostoru, že? Kuchyňský kout u obývacího pokoje je prakticky řešen a vyrobený na míru. Nabízí všechny přístroje, které potřebujete, včetně myčky a je otevřený směrem k obytnému prostoru, od kterého jej odděluje barový pult, aby vařící člen domácnosti mohl komunikovat s tím, kdo je v obývacím pokoji. Ložnice je vybavena na míru šitou vestavěnou skříní a nabízí tak spoustu úložného prostoru. Okna jsou vybavena jak vnějšími, tak vnitřními žaluziemi, můžete tak plně řídit osvětlení své domácnosti. Koupelna s rohovou vanou, sprchovým koutem a WC má i prostor na pračku. Byt je nabízen k nastěhování včetně vybavení, dveře jsou bezpečnostní a v domě se nachází kolárna / kočárkárna. Lokalita je velice příjemná. Nachází se nad zastávkou metra B - Rajská zahrada směrem k vysočanské radiále. K zastávce (a nachází se zde nově i zastávka vlaková) se dostanete autobusem MHD. Dobrá dopravní dostupnost, v okolí veškerá občanská vybavenost. Na tuto nemovitost Vám pomůžeme zajistit financování s nízkou úrokovou sazbou. Doporučujeme prohlídku.

Prodej bytu 4+kk 104 m² Šiklové, Praha
Prodej bytu 4+kk 104 m² Šiklové, Praha Praha, Hlavní město Praha, Šiklové
23 409 200 Kč
225 088 Kč na m²
4-pokoj 104 m² 5/7 tento

Dovolujeme si Vám nabídnout k prodeji byt 4+kk o výměře 112,7 m² s lodžií 9,6 m² v rezidenčním projektu Smíchov City, blok SM8. K bytu je možné přikoupit 2 parkovací stání. V ceně bytu je podlahové topení, předokenní žaluzie a příprava na dochlazování. SM8 navazuje na již realizované rezidenční bloky SM1/2 a SM3 a zahrnuje celkem 12 bytových domů. Je součástí projektu Smíchov City, jehož záměrem je nabídnout obyvatelům moderní bydlení s vysokým standardem provedení, vybavené špičkovými technologiemi. Nespornou výhodou je navíc umístění v centru města. Exkluzivní byty doplní v přízemí objektů funkční městský parter s obchody a službami. V ulicích budou vysázeny stromy, které zpříjemní klima a v horkých dnech poskytnou chladivý stín. Blok sousedí s třídou Madeleine Albrightové pojatou jako pěší podélný park a budoucím parkem Alice a Anny Masarykových. Byty v bloku SM8 jsou navrženy tak, aby si podle svých preferencí a možností mohl vybrat opravdu každý. Dispozičně tu naleznete vše - od malých bytů 1+kk až po velké byty kategorie 5+kk s nádhernými výhledy na Prahu. Samozřejmostí je dostatek parkovacích míst, technické zázemí a sklepní kóje v suterénu objektu. V posledním podlaží jsou pak ty nejexkluzivnější byty, z nichž některé nabízí jedinečný pohled na Vyšehrad. Všechny byty jsou navrženy ve vysokém standardu, což se týká povrchových materiálů i zařízení, jako je podlahové topení či vzduchotechnika s rekuperací vzduchu. Standard bytů lze samozřejmě přizpůsobit potřebám budoucích majitelů. Stačí se obrátit na naše prodejce.

Prodej bytu 2+kk 54 m² Na Břehu, Praha - Vysočany
Prodej bytu 2+kk 54 m² Na Břehu, Praha - Vysočany Praha, Praha 9, Vysočany, Na Břehu, 17
6 890 000 Kč
123 036 Kč na m²
2-pokoj 56 m² 2/6 tento

Hledáte byt v klidné a žádané lokalitě? Mám pro vás skvělou nabídku! Nabízím byt 2+kk o velikosti 54,46 m² v pražských Vysočanech. Byt se nachází v druhém nadzemním podlaží udržovaného cihlového domu, kde již byla vyměněna okna za plastová. Byt je v původním stavu a je určen spíše k rekonstrukci, což novému majiteli dává ideální příležitost upravit si bydlení přesně podle vlastních představ. K bytu náleží balkon 2 m² a sklep v suterénu domu. Měsíční náklady na bydlení činí 2 656 Kč (plus elektřina dle dodavatele). Lokalita Vysočan patří mezi velmi žádané části Prahy díky skvělé kombinaci klidného prostředí a výborné dostupnosti do centra. Stanice metra Vysočanská je pouze 3 minuty pěšky. V okolí se nachází kompletní občanská vybavenost - obchody, restaurace, školy, školky i sportovní a volnočasové vyžití. Cena bytu je 6 890 000,- Kč, včetně provize, právního servisu, bezpečné úschovy a všech poplatků. Byt je možné financovat hypotékou, s čímž vám rád pomůže náš hypoteční specialista. Pro více informací nebo domluvení prohlídky mě neváhejte kontaktovat.

Prodej bytu 2+1 54 m² K chmelnici, Praha - Žižkov
Prodej bytu 2+1 54 m² K chmelnici, Praha - Žižkov Praha, Praha 3, Žižkov, K chmelnici, 3
7 898 900 Kč
146 276 Kč na m²
2-pokoj 54 m² 2/5 tento

Prodej bytu 2+1, 54 m², Praha 3 - Žižkov, kde se rodí atmosféra skutečného domova Někdy vstoupíte do prostoru a okamžitě víte, že je výjimečný. Že je to místo, kde se budete ráno probouzet s lehkostí a večer usínat s pocitem klidu. Místo, které má duši. Právě tak působí tento útulný a elegantně zrekonstruovaný byt 2+1, nacházející se v tiché a velmi oblíbené části Prahy 3 - Žižkova. Rekonstrukce byla provedena s láskou k detailu, kvalitním materiálům a myšlenkou vytvořit domov, do kterého se člověk těší vracet. Okolí nabízí vše, co dává životu pohodlí a rytmus: školy, školky, obchody, kavárny, služby a rychlé spojení do centra Prahy. Stačí pár kroků, a jste u všeho, co potřebujete - přesto tu panuje klid, který se dnes hledá jen těžko. A teď si představte Vánoce právě tady. Teplé světlo vánočního stromečku, vůni cukroví a ten tichý okamžik, kdy si uvědomíte, že jste našli místo, kde se cítíte opravdu doma. Tento byt není jen nemovitostí. Je to prostor, který probouzí emoce - klid, bezpečí, radost a těšení se na každý další den. Pokud hledáte domov s atmosférou, která vás pohltí už při prvním kroku, tady ho právě našli jste.

Otevřít mapu Mapa