410 objekty

Prodej bytu 2+kk 42 m² Liberec - Liberec XII-Staré Pavlovice
Prodej bytu 2+kk 42 m² Liberec - Liberec XII-Staré Pavlovice Liberec, Liberec XII-Staré Pavlovice
4 300 000 Kč
97 727 Kč na m²
2-pokoj 44 m² 6/8 tento

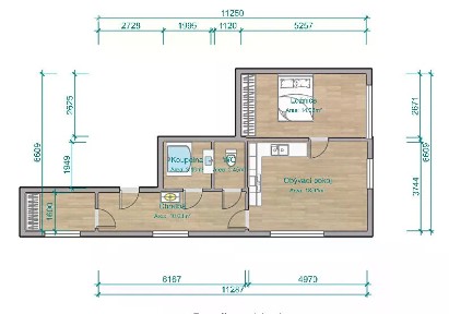
Prodej bytu 2+kk, 42 m2, Liberec Staré Pavlovice Byt je v osobním vlastnictví a nachází se v pátém patře panelového domu s výtahem. Dům má vlastní fotovoltaickou elektrárnu. Z obývacího pokoje je výhled do sídliště a částečně do Stráže nad Nisou, z ložnice je výhled na Ruprechtice. V bytě jsou původní parketové podlahy. Rekonstrukce bytu proběhla v letech 2011/2012. K bytu patří sklepní kóje cca 1,5x1,5m. Panelový dům je čistý a udržovaný. V letech 2010-2011 proběhla výměna oken a zateplení domu. Před rokem 2010 proběhla výměna stoupaček. V roce 2015 proběhla modernizace výtahu, zateplení sklepů, opravy chodeb… Od října 2025 je dům vybavený vlastní fotovoltaickou elektrárnou. Měsíční poplatky (fond oprav, voda, topení, elektřina, úklid…) je nyní cca 5000, ale bude se snižovat v návaznosti na první vyúčtování elektřiny po zprovoznění fotovoltaiky. Staré Pavlovice nabízí kompletní občanskou vybavenost, skvělou dostupnost do centra Liberce i kousek do přírody. Byt bude volný od 1.8.2026 RK NEVOLAT!

Prodej bytu 1+kk 29 m² U Sadu, Liberec - Liberec XXV-Vesec
Prodej bytu 1+kk 29 m² U Sadu, Liberec - Liberec XXV-Vesec Liberec, Liberec XXV-Vesec, U Sadu
2 890 000 Kč
99 655 Kč na m²
1-pokoj 29 m² 2/3 tento

Nabízíme k prodeji útulný a velmi dobře dispozičně řešený byt 1+kk o výměře 28,5 m², umístěný ve 2. nadzemním podlaží atypického zděného bytového domu. Dům se nachází v krásné a klidné lokalitě nedaleko vyhledávané rekreační oblasti kolem Veseckého rybníku. Bytový dům je součástí udržovaného a rozlehlého obytného komplexu se zástavbou nových rodinných domů. Bezprostřední okolí domu působí velmi příjemně - z jedné strany jej tvoří travnatý pozemek - zahrada, lemovaná vzrostlými stromy, z druhé strany je k dispozici velká dlážděná plocha, která zajišťuje pohodlné parkování obyvatel domu. Velkou výhodou bytu je samostatný charakter vstupu - byt má společně se sousedním bytem vlastní přístup po schodišti přímo z parkovací plochy. Dispozice bytu je praktická a velmi dobře využitelná. Prostorný pokoj umožňuje přirozeně oddělit část jídelní a odpočinkovou od části pracovní a spací. Obě zóny jsou prosvětleny okny a nabízejí příjemné výhledy do okolní zeleně. Součástí bytu je dále vstupní předsíň a prostorná koupelna s toaletou, vybavená sprchovým koutem. Kuchyňský kout je zařízen rohovou kuchyňskou linkou s dvoupolýnkovou varnou deskou. Byt je ve velmi dobrém a udržovaném stavu. Vytápění je řešeno centrálním kotlem na tuhá paliva. Díky nízkým provozním nákladům a praktickému řešení představuje zajímavou příležitost jak pro vlastní bydlení, tak pro investiční účely. Aktuálně je byt dlouhodobě pronajat spolehlivému nájemci, který má zájem v nájmu pokračovat. Nový majitel tak může okamžitě navázat na stávající nájemní vztah a získat stabilní investiční výnos bez nutnosti hledání nového nájemce. K bytu náleží sklep a parkovací stání u domu. Tento byt představuje velmi příjemnou nabídku menšího bydlení, v klidném prostředí s bezprostřední blízkostí přírody a rekreační oblasti Veseckého rybníku. Díky praktické dispozici, dobrému stavu, nízkým provozním nákladům a parkovacímu stání u domu nabízí pohodlné zázemí pro jednotlivce či pár. Stejně tak osloví investory, kteří hledají nemovitost s nízkými náklady, stávajícím nájemcem a potenciálem dlouhodobého pronájmu.

Prodej bytu 1+1 37 m² Broumovská, Liberec - Liberec VI-Rochlice
Prodej bytu 1+1 37 m² Broumovská, Liberec - Liberec VI-Rochlice Liberec, Liberec VI-Rochlice, Broumovská, 17
4 200 000 Kč
113 514 Kč na m²
1-pokoj 37 m² 3/8 tento

Nabízíme k prodeji útulný byt o velikosti 41 m² vč. lodžie v osobním vlastnictví s příjemným výhledem do zeleně. Byt se nachází ve 2. patře revitalizovaného domu s výtahem. Byt prošel rekonstrukcí, která mu dodala modernější vzhled, a dodnes působí velmi příjemným dojmem. Součástí inzerátu jsou také ilustrační vizualizace možného budoucího vzhledu interiéru. Dispozice bytu nabízí neprůchozí ložnici s vestavěnou skříní, obývací pokoj s kuchyňským koutem, koupelnu se sprchovým koutem a WC. K bytu náleží sklepní kóje a velkým benefitem je lodžie v mezipatře s výhradním užíváním pro tento byt. Dům je po kompletní rekonstrukci (zateplení, okna, výtah, vchod, stoupačky, chodby, lodžie) a bez úvěru, u domu navíc vzniklo nové parkoviště s dostatkem míst. Velmi nízké náklady na bydlení - fond oprav pouze 647 Kč měsíčně plus služby a elektřina. Byt se prodává bez vybavení a je volný ihned.

Prodej bytu 1+1 35 m² Ještědská, Liberec - Liberec VII-Horní Růžodol
Prodej bytu 1+1 35 m² Ještědská, Liberec - Liberec VII-Horní Růžodol Liberec, Liberec VII-Horní Růžodol, Ještědská, 21
3 450 000 Kč
98 571 Kč na m²
1-pokoj 35 m² 4/5 tento

Nabízíme k prodeji bytovou jednotku o dispozici 1+1 a výměře 35 m², situovanou v ulici Ještědská v Liberci. Byt se nachází v udržovaném stavu a svou dispozicí nabízí praktické bydlení i zajímavý investiční potenciál. Dispozice tvoří vstupní chodba s kuchyní, ze které je vstup do koupelny se sprchovým koutem, a dále prostorný obytný pokoj s dostatkem místa pro komfortní bydlení. Výhodou je stávající nájemník, který má zájem v bytě nadále zůstat, což novému majiteli umožňuje plynulé pokračování pronájmu bez nutnosti hledání nového nájemce. Součástí užívání je také možnost využití společné zahrady pro odpočinek či volný čas. Byt představuje zajímavou příležitost jak pro investici, tak i jako startovací bydlení do budoucna. Financování Vám rádi zařídíme s naším specialistou. Těšíme se na Vás na prohlídkách.

Prodej bytu 3+1 83 m² Gagarinova, Liberec - Liberec VI-Rochlice
Prodej bytu 3+1 83 m² Gagarinova, Liberec - Liberec VI-Rochlice Liberec, Liberec VI-Rochlice, Gagarinova, 17
5 390 000 Kč
64 940 Kč na m²
3-pokoj 83 m² 3/4 tento

Nabízíme k prodeji slunný, prostorný a velmi dobře dispozičně řešený byt 3+1 s lodžií a komorou (celková plocha 82,7m2) v žádané části města Liberce - ulice Gagarinova. Byt se nachází ve 3. NP čtyřpodlažního zatepleného domu po kompletní revitalizaci a díky své orientaci i umístění nabízí klidné a komfortní bydlení vhodné jak pro rodinu, tak i pro páry hledající prostorný byt bez nutnosti dalších investic. Byt prošel kompletní rekonstrukcí, při které bylo v rámci nového zděného jádra vybudována prostorná koupelna se sprchovým koutem a prostorem pro pračku i sušičku a samostatným WC s umyvadlem. Moderní rohová kuchyňská linka zajišťuje dostatek komfortu a pracovní plochy a je vybavená myčkou nádobí a kombinovaným sporákem. Kvalitní vlněné koberce s podložkou z polyuretanové pěny Floorwise zajišťují tepelný, zvukový a kročejový komfort. Dále nové dveře, elektroinstalace,. Dispozice bytu, kdy žádný pokoj není průchozí, nabízí dostatek prostoru a soukromí pro pohodlné rodinné bydlení. Velkým benefitem je lodžie orientovaná do klidného prostředí se zelení, ideální pro ranní kávu nebo odpočinek po práci. Dům má vlastní plynovou kotelnu, což zajišťuje velmi nízké provozní náklady a v plánu SVJ je zhotovení výtahu. Lokalita patří mezi vyhledávané části Liberce díky kombinaci klidného bydlení, bezproblémového parkování a kompletní občanské vybavenosti - v okolí naleznete školy, školku, obchody, služby, zastávky MHD i možnosti pro sport a volnočasové aktivity. Hledáte-li byt, do kterého se můžete bez dalších investic rovnou nastěhovat, zároveň však oceníte klidné prostředí a dobrou dostupnost centra města a přírody, pak je tato nabídka určena právě Vám. PENB: Třída E. Hypotéku s nejlepšími podmínkami zařídíme.

Prodej bytu 1+kk 23 m² Hroznová, Liberec - Liberec XIV-Ruprechtice
Prodej bytu 1+kk 23 m² Hroznová, Liberec - Liberec XIV-Ruprechtice Liberec, Liberec XIV-Ruprechtice, Hroznová, 11
2 800 000 Kč
100 000 Kč na m²
1-pokoj 28 m² 3/5 tento

Nabízíme k prodeji byt o dispozici 1+kk a podlahové ploše 23 m² s lodžií o velikosti 3 m², nacházející se v klidné a vyhledávané lokalitě Ruprechtic, v ulici Hroznová. Byt je v původním stavu a je určen k rekonstrukci, což novému majiteli nabízí možnost upravit si bydlení přesně podle vlastních představ nebo vytvořit atraktivní investiční nemovitost k následnému pronájmu. Příslušenstvím bytu je sklepní kóje, která poskytuje praktický úložný prostor. Velkou výhodou je klidné okolí s příjemnou atmosférou a dobrou dostupností občanské vybavenosti i centra města. Lokalita patří dlouhodobě mezi oblíbené a vyhledávané části pro bydlení. Byt představuje ideální příležitost pro jednotlivce či mladý pár jako startovací bydlení nebo jako zajímavou investici s potenciálem dalšího zhodnocení. Náklady 2905,- Kč, z toho Fond oprav 386,- Kč Elektřina 700,- Kč Pro více informací nebo domluvení prohlídky nás neváhejte kontaktovat. První zájemci si mohou byt prohlédnout již v pondělí 18.5.2026 v odpoledních hodinách.

Prodej bytu 4+kk 89 m² Norská, Liberec
Prodej bytu 4+kk 89 m² Norská, Liberec Liberec, Norská
13 100 000 Kč
108 264 Kč na m²
4-pokoj 121 m² 4 tento

Prodej exkluzivního střešního bytu 4+kk s terasou a dvěma balkony Nabízíme k prodeji výjimečný střešní byt o dispozici 4+kk a celkové užitné ploše 121,2 m² v komorním rezidenčním projektu Norská Living v Liberci. Dominantou bytu je prostorná terasa o velikosti 17 m² a dva samostatné balkony, každý o rozloze 6 m². Byt nabízí nadstandardní množství venkovního prostoru pro relaxaci, práci z domova i příjemné posezení s výhledem do okolní zeleně. Dispozice zahrnuje prostorný obývací pokoj s kuchyňským koutem, tři samostatné pokoje, koupelnu, samostatné WC, dvě chodby s dostatkem úložného prostoru. Projekt Norská Living nabízí moderní a úsporné bydlení v energetické třídě A. Samozřejmostí je podlahové vytápění, tepelné čerpadlo a fotovoltaická elektrárna, díky kterým jsou provozní náklady velmi nízké. Uzavřený areál poskytuje soukromí a bezpečí, obyvatelé mohou využívat také společnou zahradu s altánem a grilem. K bytu je možné dokoupit až dvě parkovací stání. Projekt se nachází v klidné lokalitě ulice Norská v Liberci, obklopené zelení, s rychlou dostupností do centra města. Cena bytu: 13 100 000 Kč Tento jedinečný střešní byt je ideální volbou pro každého, kdo hledá nadstandardní bydlení s velkorysým venkovním prostorem, vysokou kvalitou provedení a nízkými provozními náklady.

Prodej bytu 2+1 60 m² Oldřichova, Liberec - Liberec III-Jeřáb
Prodej bytu 2+1 60 m² Oldřichova, Liberec - Liberec III-Jeřáb Liberec, Liberec III-Jeřáb, Oldřichova, 16
4 490 000 Kč
73 607 Kč na m²
2-pokoj 61 m² 1/8 tento

Nabízíme k prodeji byt 2+1 v družstevním vlastnictví v klidné části čtvrti Liberec III - Jeřáb o ploše 60,3 m² (+ 1 m² spíž) v 1. patře revitalizovaného bytového domu. Hlavní výhody bytu: • Nízké provozní náklady: Celkové měsíční poplatky činí pouze cca 3 400 Kč (plus elektřina a plyn dle spotřeby a dodavatele), což z bytu dělá ekonomické bydlení. • Lokalita: Ulice Oldřichova nabízí klid a soukromí, přitom jste za pár minut chůze v centru (OC Forum), na nádraží nebo u terminálu MHD. Kompletní občanská vybavenost. • Stav: Kompletní rekonstrukce bytu v r. 1998, byt je průměrném stavu, k okamžitému nastěhování, bez vybavení. • Parkování: V okolí domu na základě zakoupené rezidentní parkovací karty vydané městem Liberec. Dům a technické parametry: • Dům po kompletní revitalizaci (zateplení, plastová okna). • Vytápění: Ústřední dálkové. Právní stav a cena: • Cena: 4 490 000 Kč, cena je konečná, včetně provize RK a kompletního právního servisu. • Anuita je 0 Kč (zcela splacena - privatizovaný bytový dům bez úvěrového zatížení, stav fondu oprav je velmi dobrý). • Převod do osobního vlastnictví: v případě 100% žádostí členů o převod. • Financování: Lze částečně financovat úvěrem na družstevní bydlení (např. od České spořitelny) až do 3,5 mil. Kč bez zástavy nemovitosti, případně hotovostí či hypotékou se zástavou jiné nemovitosti. Tento byt je díky nízkým nákladům a skvělé poloze také vynikající investiční příležitostí k následnému pronájmu.

Prodej bytu 2+kk 43 m² Anenská, Liberec - Liberec III-Jeřáb
Prodej bytu 2+kk 43 m² Anenská, Liberec - Liberec III-Jeřáb Liberec, Liberec III-Jeřáb, Anenská, 8
3 890 000 Kč
90 465 Kč na m²
2-pokoj 43 m² 1/4 tento

Nabízím atypicky řešený byt 2+kk v žádané lokalitě Liberec-Jeřáb, který zaujme svým originálním uspořádáním a moderním stylem. V prvním nadzemním podlaží se nachází byt. Z předsíně s vestavěnou skříní vstupujeme do obývacího pokoje opticky odděleným s kuchyňským koutem stylovým barem s bodovým osvětlením. Příprava jídla probíhá na dvouplotýnkové indukční desce. Nad schodištěm do suterénu je vybudováno praktické patro na spaní z masivu, které vytváří útulnou a oddělenou spací zónu. Po dřevěném schodišti sestoupíme do suterénu kde se nachází velká multifunkční místnost vhodná jako pracovna, šatna či hobby prostor a moderní koupelna s posuvnými dveřmi se sprchovým koutem a WC. Teplo a teplou vodu zajišťuje plynový kotel. Je zde i nový el. kotel jako varianta ohřevu vody. Samozřejmostí jsou plastová okna, plovoucí podlahy a keramická dlažba. K domu náleží malý dvorek pro relaxaci. Velkou výhodou je výborná poloha v pěší dostupnosti centra Liberce, obchodů, restaurací i vlakového a autobusového nádraží, s rychlým napojením na hlavní tah směr Praha a Hrádek nad Nisou. Významným bonusem je možnost dokoupení parkovacího místa před domem. Tento byt představuje skvělou volbu pro ty, kteří hledají moderní, zajímavé bydlení v centru dění s vynikající dopravní dostupností, kteří hledají jinou variantu bydlení než je panelákové na sídlišti. Kupní cena 3 890 000 Kč vč. RK. K nastěhování po zápisu nového majitele na kat. úřadu ihned. Ev. číslo: 656257.

Prodej bytu 4+kk 174 m² Masarykova, Liberec - Liberec I-Staré Město
Prodej bytu 4+kk 174 m² Masarykova, Liberec - Liberec I-Staré Město Liberec, Liberec I-Staré Město, Masarykova, 9
17 890 000 Kč
102 816 Kč na m²
4-pokoj 174 m² 4/5 tento

Nabízíme k prodeji výjimečný mezonetový byt s výhledem na Ještěd o dispozici 4+kk a podlahové ploše 174 m², který se nachází v posledním patře budovy bývalé Obchodní a živnostenské komory na Zlatém kříži v prestižní Masarykově ulici. Tento objekt představuje jeden z nejhonosnějších a nejhodnotnějších objektů svého druhu v celé zemi, přímo naproti se nachází Muzeum a Galerie Lázně. Masarykova ulice patří dlouhodobě mezi nejprestižnější adresy v Liberci. Byt je rozdělený do dvou podlaží a nabízí velkorysý, vzdušný prostor s klidnou a příjemnou atmosférou. Dominantou bytu je hlavní obytná část s kuchyní, která přirozeně navazuje na další místnosti a tvoří otevřený prostor pro každodenní život. Dispozice je řešena prakticky a zároveň s důrazem na komfort. Ve spodním podlaží se nachází otevřená vstupní část, která plynule přechází do hlavní obytné části s kuchyní, dále jeden samostatný pokoj a koupelna. Horní podlaží nabízí další dva pokoje, dvě koupelny, šatnu a menší komoru. Jednotlivé místnosti lze využít jako ložnice, pracovny nebo pokoj pro hosty. Interiér je kompletně řešený na míru z masivu. Důraz byl kladen na kvalitu materiálů, precizní zpracování a nadčasové provedení. Byt se prodává včetně vybavení, které tvoří jednotný celek. V celém bytě jsou použita kvalitní dřevěná okna v moderním provedení. Byt je vytápěn radiátory, které zajišťují rovnoměrné teplo v celém prostoru. Plynový kotel se nachází mimo byt na patře. Umístění v posledním patře zajišťuje klid a soukromí. Do patra se dostanete výtahem na čip, který mají k dispozici pouze rezidenti. Mimo byt se nachází prostorná komora na stejném patře a k bytu náleží také nadstandardně velké soukromé parkovací stání. Masarykova ulice nabízí výbornou dostupnost i kompletní občanskou vybavenost. Tramvajová zastávka je přímo před domem, v okolí se nachází muzeum, galerie, kavárny, restaurace i další služby. Přímo v domě jsou také lékařské ordinace. Jedná se o nemovitost, která spojuje prostor, kvalitu a adresu, která si dlouhodobě drží svou hodnotu. Umělecká díla nejsou součástí prodeje, jejich odkoupení je možné po individuální domluvě. Byt je aktuálně v procesu převodu do osobního vlastnictví. Pokud vás naše nabídka zaujala, neváhejte se ozvat a rádi vám poskytneme další informace. Prodávající si vyhrazuje právo vybrat kupujícího na základě jím zvolených kritérií.

Prodej bytu 2+kk 39 m² Nad Školou, Liberec - Liberec XXX-Vratislavice nad Nisou
Prodej bytu 2+kk 39 m² Nad Školou, Liberec - Liberec XXX-Vratislavice nad Nisou Liberec, Liberec XXX-Vratislavice nad Nisou, Nad Školou
3 990 000 Kč
95 000 Kč na m²
2-pokoj 42 m² 2 tento

Prodej bytu 2+kk 42 m² s lodžií - Liberec, Vratislavice nad Nisou Nabízíme k prodeji byt v osobním vlastnictví o dispozici 2+kk s podlahovou plochou 42 m² nacházející se v oblíbené lokalitě Vratislavice nad Nisou, ulice Nad Školou. Byt se skládá ze dvou pokojů, menší pokoj (7,6 m²) je pronajatý na základě nájemní smlouvy od SV. Byt se nachází ve 2. nadzemním podlaží dvanáctipatrového panelového domu. Lokalita nabízí ideální kombinaci klidného bydlení blízko přírody a výborné dostupnosti do centra Liberce i Jablonce nad Nisou. V bezprostředním okolí se nachází Vratislavský lesopark, dětská hřiště i místa pro sport a volnočasové aktivity. Samozřejmostí je kompletní občanská vybavenost a rychlé spojení do města díky MHD. Jsem realitní zprostředkovatel. V případě zájmu můžete kdykoliv zavolat nebo napsat SMS / e-mail a domluvíme se na prohlídce bytu.

Prodej bytu 2+1 58 m² Františkovská, Liberec - Liberec X-Františkov
Prodej bytu 2+1 58 m² Františkovská, Liberec - Liberec X-Františkov Liberec, Liberec X-Františkov, Františkovská, 20
4 800 000 Kč
82 759 Kč na m²
2-pokoj 58 m² 13/14 tento

Exkluzivně nabízíme dispozičně dobře řešený byt 2+1 v OV o ploše 58 m2 se dvěma lodžiemi a nádherným výhledem na Ještědský hřeben. Byt se nachází v předposledním patře panelového domu a je v původním udržovaném stavu. Výhodou kromě již zmíněných dvou lodžií je velká kuchyň, kam se vejde pohodlně klasický jídelní kout. Další předností je komora přímo v bytě. V suterénu je k dispozici sklepní kóje a uzamčená místnost, využívaná obyvateli domu. K dispozici jsou 2 výtahy. Vchod do domu je bezbariérový. Veřejné parkování je vedle domu. V tuto chvíli je dokončeno zateplení a fasáda, zároveň je vyhlášeno výběrové řízení na rekonstrukcirozvodů v domě. Ve fondu oprav je pro tyto účely spořena příslušná částka. Nemovitost se nachází v docházkové vzdálenosti do centra města i nedaleko veřejných dopravních prostředků. Pro větší bezpečí i zábavu dětí bylo nově vybudováno multifunkční hřiště. Doporučujeme prohlídku. V případě zájmu zodpovíme Vaše dotazy a budeme se Vám rádi i nadále věnovat.

Prodej bytu 1+kk 34 m² Nad Školou, Liberec - Liberec XXX-Vratislavice nad Nisou
Prodej bytu 1+kk 34 m² Nad Školou, Liberec - Liberec XXX-Vratislavice nad Nisou Liberec, Liberec XXX-Vratislavice nad Nisou, Nad Školou
3 600 000 Kč
105 882 Kč na m²
1-pokoj 34 m² 5/11 tento

Nabízíme k prodeji byt 1+kk a celkové ploše 34 m² se zasklenou lodžií, nacházející se v ulici Nad Školou ve Vratislavicích, části města Liberec. Bytová jednotka je umístěna v 5. nadzemním podlaží revitalizovaného a zatepleného domu s osobním i nákladním výtahem. Byt nabízí prakticky řešený obytný prostor s kuchyňským koutem a zasklenou lodžií, která poskytuje příjemné místo k odpočinku. Velkou výhodou je možnost využívání dalších dvou místností formou nájmu, díky čemuž může nemovitost sloužit nejen k bydlení, ale také například k částečnému podnikání nebo vytvoření pracovního zázemí. Lokalita nabízí ideální kombinaci klidného bydlení a výborné dostupnosti služeb. Přímo za domem se nachází lesopark vhodný pro procházky, sport i venčení psa, v blízkosti je také oblíbené koupaliště Sluníčko. Jen pár metrů od domu jsou obchody, pizzérii i další občanskou vybavenost. Tramvajová zastávka je vzdálena přibližně 350 metrů, což zajišťuje pohodlné spojení do centra Liberce. Doporučuji prohlídku.

Prodej bytu 3+kk 78 m² Vzdušná, Liberec - Liberec I-Staré Město
Prodej bytu 3+kk 78 m² Vzdušná, Liberec - Liberec I-Staré Město Liberec, Liberec I-Staré Město, Vzdušná, 9
6 898 000 Kč
88 436 Kč na m²
3-pokoj 78 m² 4/4 tento

Mám pro vás bydlení přímo v srdci Liberce, na kraji Masarykovy ulice a Lidových sadů. Praktický rodinný byt 3+kk s výměrou 77,5 m2 nabídne dostatek prostoru a soukromí. Mě si naprosto získal výhled, který v centru města nečekáte. Lokalitu ve Vzdušné ulici netřeba představovat. Dům, v jehož přízemí sídlí kavárna Mikyna, všichni dobře znáte. Místo v srdci města, které nabídne kompletní občanskou vybavenost a zároveň je na začátku ikonické Masarykovy ulice, kterou projdete do Lidových sadů, k muzeu, galerii nebo směrem k Lesnímu koupališti a lesům Jizerských hor. Zároveň jste přímo v centru města - kavárny, supermarket, školy i školky jsou opravdu pár kroků od domu. Totéž platí o zastávce tramvaje i autobusu. Na druhou stranu je potřeba počítat s tím, že se jedná o rušnější lokalitu. V samotném bytě vás to ale trápit nebude, ten je velmi klidný. Majitelé přibližně v roce 2018 dokončili kompletní modernizaci bytu a vznikl příjemný rodinný byt 3+kk. Celý byt je sladěný do světlých barev v kombinaci se šedou. Pouze kuchyňská linka je v teplých odstínech dřeva. Jestli něco bytu vévodí, tak je to severozápadní výhled, který je díky umístění ve 4.patře opravdu krásný. Podlahová plocha 77,5 m2 je optimální pro rodinu se 2 dětmi. Z centrální chodby je vstup do každé místnosti samostatně. Ložnice rodičů je menší, ale vestavěné skříně ji dodávají na praktičnosti. Dětský pokoj je velkoryse řešený i pro 2 děti. Obývací pokoj spojený s kuchyňským koutem bude středobodem života v bytě. Oddělené WC a koupelna přidávají na praktičnosti. Celý byt je vytápěn podlahovým vytápěním na elektřinu a ohřev vody řeší elektrický bojler. Byt podobné velikosti je potřeba vidět na vlastní oči a hlavně zažít. Jeho vzdušnost a prostornost zkrátka fotky ani video nepřenesou. A právě od toho jsou osobní prohlídky, kde vám vše rád ukážu a vysvětlím. Kontaktujte mě telefonicky ve všední dny od 8:00 do 18:00 nebo kdykoli přes SMS, WhatsApp či e-mail. Budu se těšit na viděnou při prohlídkách. Z důvodu absence PENB je nemovitost zařazena do kategorie G. Výměry uvedené v inzerci jsou orientačního charakteru. Prodávající si vyhrazuje právo zvolit nejvýhodnější nabídku.

Prodej bytu 3+1 87 m² U Potůčku, Liberec - Liberec VI-Rochlice
Prodej bytu 3+1 87 m² U Potůčku, Liberec - Liberec VI-Rochlice Liberec, Liberec VI-Rochlice, U Potůčku, 10
6 114 170 Kč
70 278 Kč na m²
3-pokoj 87 m² 7/8 tento

Byt, který se nepřizpůsobuje vám. Vy si přizpůsobíte jeho! Hledáte byt, který nebude jen dalším „hotovým kompromisem“, ale místem, kde si vytvoříte domov přesně podle svých představ? Pak jste ho právě našli. V liberecké Rochlici nabízíme prostorný byt 3+1 o podlahové ploše 87 m², který zaujme především svou variabilní dispozicí a velkorysým prostorem - něčím, co dnes z nabídky bytů postupně mizí. Současné uspořádání 3+1 nabízí hned několik možností budoucí úpravy: - moderní a vzdušné 4+kk, - komfortní rodinné bydlení s více pokoji, - řešení s pracovnou či nadstandardní ložnicí, - nebo otevřený koncept plný světla. Pro lepší představu byly vytvořeny také 4 varianty půdorysných vizualizací, které najdete v galerii. Byt se nachází v předposledním patře, díky čemuž působí velmi světlým a klidným dojmem. Velkým benefitem je balkon s krásným výhledem na Ještěd - ideální místo pro ranní kávu i večerní odpočinek. Potěší také prostorná vstupní chodba, která je dnes spíše výjimkou. Byt je určen ke kompletní rekonstrukci. A právě v tom je jeho největší výhoda - nemusíte bourat cizí kompromisy ani se přizpůsobovat zastaralým úpravám. Vytvoříte si bydlení přesně podle vlastního stylu a potřeb. Tato klidná část Rochlice patří dlouhodobě mezi oblíbené části Liberce. V okolí najdete školy, školky, obchody, MHD, služby i zeleň a do centra města se dostanete během několika minut. Dům je po obsáhlé rekonstrukci a ve velmi dobrém stavu. K bytu je navíc možné dokoupit garáž v docházkové vzdálenosti, což je dnes v Liberci velmi příjemný bonus. Tento byt není zajímavý jen svou velikostí. Výjimečný je hlavně potenciálem, který nabízí. A některé nemovitosti je zkrátka potřeba zažít osobně. Pro více informací nebo domluvení prohlídky mě neváhejte kontaktovat. Rád vám byt osobně ukážu.

Prodej bytu 2+1 76 m² Dr. Milady Horákové, Liberec - Liberec IV-Perštýn
Prodej bytu 2+1 76 m² Dr. Milady Horákové, Liberec - Liberec IV-Perštýn Liberec, Liberec IV-Perštýn, Dr. Milady Horákové, 14
5 980 000 Kč
78 684 Kč na m²
2-pokoj 76 m² 2/3 tento

Nabízíme Vám k prodeji bytovou jednotku o velikosti 2+1 (76 m²) za cenu 5 980 000 Kč v ulici Dr. Milady Horákové v Liberci. Byt se nachází ve 2. podlaží cihlového domu a měsíční náklady na bydlení činí 5 500 Kč. Celý byt je v dobrém technickém stavu. Při vstupu do bytu se ocitnete v malé chodbičce, kde si můžete odložit vše potřebné. Dále pokračujete do větší chodby, ze které vedou vstupy do tří místností - samostatného WC, zrekonstruované koupelny se sprchovým koutem a kuchyně s prostornou kuchyňskou linkou. Následuje obývací pokoj s výklenkem, který dodává místnosti útulný a příjemný dojem. Poslední místností tohoto bytu je pokoj, kde je chytře využitý prostor na spaní pod stropem, díky čemuž vzniklo více prostoru i dostatek úložných možností. Byt se nachází v centru Liberce, kde máte vše na dosah ruky. Jen pár kroků od domu se nachází terminál MHD, odkud se pohodlně dostanete po celém městě. Výhodou bydlení v centru je kompletní občanská vybavenost - obchody, restaurace i služby. Nedaleko bytu se nachází OC Fórum, kde se pravidelně konají trhy a najdete zde širokou nabídku obchodů, restaurací i kino. Za zábavou nemusíte chodit daleko - přibližně 400 metrů od domu se nachází vědecké centrum IQlandia. Za zmínku stojí také nedaleký Babylon, který nabízí množství volno časových aktivit - od wellness a relaxace až po bowling či další formy aktivní zábavy. V případě zájmu o prohlídku nás neváhejte kontaktovat.)

Prodej bytu 4+kk 123 m² Vzdušná, Liberec - Liberec I-Staré Město
Prodej bytu 4+kk 123 m² Vzdušná, Liberec - Liberec I-Staré Město Liberec, Liberec I-Staré Město, Vzdušná, 9
9 988 000 Kč
81 203 Kč na m²
4-pokoj 123 m² 3/4 tento

Mám pro vás bydlení přímo v srdci Liberce, na kraji Masarykovy ulice a Lidových sadů. Velkoryse řešených bytů je v nabídce minimum a tento je jako stvořený třeba pro početnou rodinu. Podlahová plocha 123 m², tři samostatné ložnice, obývací pokoj s kuchyňským koutem i krbem, koupelna s vanou i sprchovým koutem. To všechno v moderním a útulném designu, který podtrhují vysoké stropy a velká okna. Lokalitu ve Vzdušné ulici netřeba představovat. Dům, v jehož přízemí sídlí kavárna Mikyna, všichni dobře znáte. Místo v srdci města, které nabídne kompletní občanskou vybavenost a zároveň je na začátku ikonické Masarykovy ulice, kterou projdete do Lidových sadů, k muzeu, galerii nebo směrem k Lesnímu koupališti a lesům Jizerských hor. Zároveň jste přímo v centru města - kavárny, supermarket, školy i školky jsou opravdu pár kroků od domu. Totéž platí o zastávce tramvaje i autobusu. Na druhou stranu je potřeba počítat s tím, že se jedná o rušnější lokalitu. V samotném bytě vás to ale trápit nebude, ten je velmi klidný. Majitelé přibližně v roce 2018 dokončili kompletní modernizaci bytu a vznikl krásný byt 4+kk. Vkus majitelů se propsal do současné podoby interiéru, která odpovídá moderním trendům. Celý byt je sladěný do světlých barev, které doplňuje modrá kuchyně ve francouzském stylu. Atmosféru podtrhují velkoformátová okna a vysoké stropy, díky kterým působí byt vzdušně a svěže. Dispozičně je řešen jako 4+kk na velkorysé ploše 123 m². Byt pomyslně rozděluje prostorná chodba, díky které nabídne tři neprůchozí ložnice orientované severozápadně (odpolední slunce). Obývací pokoj s kuchyní a koupelna jsou orientované jihovýchodním směrem. Hlavní obytná místnost nabídne dostatek prostoru pro obývací část, velký jídelní stůl i útulnou rohovou kuchyň. Atmosféru navíc dotváří krbová kamna. Ložnice mají nadstandardní výměru - 24, 21 a 17 m². Koupelna byla navržena s ohledem na potřeby větší rodiny - najdete tu vanu, sprchu, dvě umyvadla i prostor pro pračku a sušičku. Samostatná toaleta je samozřejmostí. Celý byt je vytápěn podlahovým vytápěním na elektřinu a ohřev vody řeší elektrický bojler. Byt podobné velikosti je potřeba vidět na vlastní oči a hlavně zažít. Jeho vzdušnost a prostornost zkrátka fotky ani video nepřenesou. A právě od toho jsou osobní prohlídky, kde vám vše rád ukážu a vysvětlím. Kontaktujte mě telefonicky ve všední dny od 8:00 do 18:00 nebo kdykoli přes SMS, WhatsApp či e-mail. Budu se těšit na viděnou při prohlídkách. Z důvodu absence PENB je nemovitost zařazena do kategorie G. Výměry uvedené v inzerci jsou orientačního charakteru. Prodávající si vyhrazuje právo zvolit nejvýhodnější nabídku.

Prodej bytu 1+1 44 m² Ježkova, Liberec - Liberec VI-Rochlice
Prodej bytu 1+1 44 m² Ježkova, Liberec - Liberec VI-Rochlice Liberec, Liberec VI-Rochlice, Ježkova
3 790 000 Kč
86 136 Kč na m²
1-pokoj 44 m² 3 tento

Nabízíme k prodeji byt o dispozici 1+1 nebo 2+kk s lodžií o výměře 44 m² v žádané lokalitě Liberce, Rochlice, v ulici Ježkova. ‌ Dispozice bytu: vstupní chodba, ložnice s lodžií, obývací pokoj s kuchyňskou linkou, koupelna s vanou a samostatné WC. ‌ Byt je v dobrém a udržovaném stavu. ‌ Dům, ve kterém se byt nachází, prošel kompletní rekonstrukcí - renovace střechy, zateplení, nová fasáda, nové stoupačky, nová plastová okna včetně oken v bytě, nové vchodové dveře apod. ‌ Byt je prostorný, velmi světlý a slunný. ‌ Výhody bytu: • možnost okamžitého bydlení, • nízké náklady na bydlení, • v případě rekonstrukce příznivé podmínky pro úpravu dispozice bytu (např. možnost zvětšení koupelny), • byt se nachází ve 3. nadzemním podlaží domu, v domě je výtah, • parkování u domu, dostatek zeleně v okolí a veškerá občanská vybavenost v docházkové vzdálenosti, • byt je bez právních vad, zástav, věcných břemen či jiných omezení; koupi lze snadno financovat hypotečním úvěrem, • byt je vhodný jak pro vlastní bydlení, tak i jako investice k pronájmu (nájemníka zdarma zajistíme), • byt i dům nabízí naprosté soukromí a klidné bydlení. ‌ Rekonstrukci i koupi bytu lze financovat hypotečním úvěrem, který Vám rádi zajistíme za velmi výhodných podmínek. Více informací Vám rádi sdělíme při osobní prohlídce nemovitosti, na kterou Vás srdečně zveme.

Prodej bytu 2+kk 42 m² Borový vrch, Liberec - Liberec XIV-Ruprechtice
Prodej bytu 2+kk 42 m² Borový vrch, Liberec - Liberec XIV-Ruprechtice Liberec, Liberec XIV-Ruprechtice, Borový vrch
3 850 000 Kč
91 667 Kč na m²
2-pokoj 42 m² 6/12 tento

Nabízíme vám ke koupi světlý byt v osobním vlastnictví o dispozici 2+kk s celkovou výměrou 42,10 m² v oblíbené lokalitě Borový vrch v Liberci - Ruprechtice. Bytová jednotka se nachází v 5. patře panelového domu po kompletní revitalizaci, včetně zateplení vnějšího pláště. Komfort bydlení zvyšují dva moderní výtahy a dobře fungující správa domu s přijatelnými měsíčními náklady v částce 3.027 Kč bez elektřiny v rámci SVJ. Samotný byt působí velmi příjemným a vzdušným dojmem. Dominantou obytného prostoru je zánovní, prakticky řešená a prostorná kuchyňská linka, která přirozeně navazuje na obývací část. Koupelna prošla rekonstrukcí a nabízí moderní sprchový kout. Ložnice potěší výhledem směrem na Ještěd, zatímco z obývací části si můžete vychutnat pohled směrem na Bedřichov a okolní zeleň. K bytové jednotce náleží také sklepní kóje, která poskytuje další úložný prostor. Velkým benefitem této nabídky je samotná lokalita. Borový vrch nabízí klidné bydlení v zeleni a zároveň výbornou dostupnost do centra města. V docházkové vzdálenosti naleznete supermarket Tesco, restaurace, kavárny, zastávky MHD, dětská hřiště i sportoviště, mateřskou a základní školu. Milovníci přírody a aktivního životního stylu navíc ocení blízkost Jizerských hor. Celá lokalita Ruprechtic navíc postupně prochází revitalizací veřejného prostoru, vznikají nová parkovací místa, modernizují se hřiště a zvyšuje se celkový komfort bydlení. Dispozice 2+kk představuje ideální volbu jak pro vlastní bydlení, tak také jako investiční příležitost. Byty této velikosti patří dlouhodobě mezi velmi dobře pronajímatelné a stabilně si drží svou hodnotu. Na jednotce nevázne žádné zástavní či jiné právo, je okamžitě k užívání, čistá a vyklizena. V inzerci jsou použity 2 vizualizace pro představu v případě vybavení. Pro více informací kontaktujte makléře reality11 Liberecko. Financování formou hypotečního úvěru bezplatně zajistí naše kancelář. Ev. číslo: 28241.

Prodej bytu 4+1 96 m² Dr. Milady Horákové, Liberec - Liberec IV-Perštýn
Prodej bytu 4+1 96 m² Dr. Milady Horákové, Liberec - Liberec IV-Perštýn Liberec, Liberec IV-Perštýn, Dr. Milady Horákové, 3
7 950 000 Kč
82 813 Kč na m²
4-pokoj 96 m² 1/5 tento

Hledáte prostorný byt v centru Liberce, který nabízí dostatek místa, parkování i vlastní venkovní zázemí? V ulici Dr. M. Horákové je k dispozici mezonetový byt o dispozici 4+1 a podlahové ploše 96,5 m². Díky rozložení do dvou podlaží působí byt vzdušně a nabízí příjemné oddělení denní a klidové části. Velkou výhodou je variabilita prostoru. Byt je vhodný pro rodinné bydlení, ale zároveň představuje zajímavou příležitost i z investičního hlediska. Nemovitost je v udržovaném stavu a nabízí možnost postupné modernizace podle vlastních představ. V bytě jsou plastová okna doplněná částečně o dřevěná, elektřina je z větší části v mědi a vytápění zajišťuje plynový kotel. Součástí jsou také litinové radiátory. Byt se prodává včetně většiny vybavení včetně kuchyňské linky s indukční varnou deskou, takže je možné jej ihned využívat nebo postupně upravovat. K bytu náleží sklep a také podíl na společných prostorech půdy a kolárny, což poskytuje další praktický úložný prostor. Velkým benefitem je parkovací stání za branou přímo u domu, což je v centru Liberce výrazná výhoda. Obyvatelům domu zároveň patří zahrada umístěná vedle domu, která nabízí příjemné místo k odpočinku. Mít možnost využívat zahradu přímo v centru města je dnes poměrně unikátní benefit. Dům prošel v posledních letech úpravami včetně nové fasády a díky obvodovému zdivu o tloušťce 60 cm nabízí velmi dobré izolační vlastnosti. Lokalita patří mezi hlavní přednosti této nabídky. V bezprostředním okolí najdete kompletní občanskou vybavenost a jen pár minut chůze od domu se nachází terminál Fügnerova s přímými spoji například do Prahy. Pokud hledáte prostorný byt v centru města s parkováním a zajímavým potenciálem, tahle nabídka rozhodně stojí za osobní prohlídku. Prodávající si vyhrazuje právo vybrat kupujícího na základě jím zvolených kritérií.

Otevřít mapu Mapa