23 objekt

Pronájem bytu 3+kk 70 m² Litoměřická, Štětí
Pronájem bytu 3+kk 70 m² Litoměřická, Štětí Štětí, Litoměřice, Litoměřická
15 500 Kč
3-pokoj 70 m² 6 tento

Dovolujeme si Vám nabídnout k pronájmu byt 3+kk ve městě Štětí. Tento jednopodlažní byt se nachází v šestém patře panelového domu v družstevním vlastnictví. Díky dobrému stavu objektu se jedná o výhodnou nabídku pro ty, kteří hledají pohodlné a praktické bydlení. Byt disponuje užitnou plochou 68 m² a poskytuje dostatek prostoru pro rodinné bydlení. Součástí je také sklep o rozměrech 2 m² a kolárna, což je výhodou pro uskladnění sezónních věcí nebo sportovního vybavení. Byt je vybaven venkovními okenními rolatami pro regulaci teploty a hluku a kuchyň vestavěnými spotřebiči. Nemovitost je nyní již volná k nastěhování. Náklady na bydlení závisí na počtu obyvatel a energetické náročnosti konkrétní rodiny. Vratná kauce činí 31 000 Kč. Měsíční nájemné je stanoveno na 15 500 Kč. Vaše dotazy na provozní náklady či další informace Vám rádi poskytneme při osobní prohlídce. Pokud Vás byt zaujal, neváhejte nám napsat nebo zavolat a rádi Vám vše ukážeme osobně.

Pronájem bytu 3+kk 60 m² Platanová, Litoměřice - Předměstí
Pronájem bytu 3+kk 60 m² Platanová, Litoměřice - Předměstí Litoměřice, Předměstí, Platanová
15 200 Kč
3-pokoj 60 m² 1/6 tento

Realitní kancelář si Vám dovoluje nabídnout k dlouhodobému pronájmu bytovou jednotku o současné dispozici 3+kk s lodžií, venkovním parkovacím místem a oplocenou zahradou, a to v Litoměřicích, v ulici Platanová. Bytová jednotka je umístěna v přízemí cihlové novostavby (vila domu) a její podlahová plocha činí 60,3 m2. Jedná se o původní výměru bytu 2+1, který byl vhodně přestavěn na byt o dispozici 3+kk a je tedy po celkové rekonstrukci a velmi dobře udržován. Vstup bytu tvoří chodba s přístupy do obývací části, ložnice, koupelny a na toaletu. Součástí obývací části je kuchyňský kout s novou linkou, sklokeramickou varnou deskou a myčkou nádobí. Prostor je zde i na větší jídelní stůl, umístění sedací soupravy a nezbytných skříněk. Z této části je také přístup na lodžii, která Vám poskytne v letních měsících možnost venkovních snídaní, relaxace, ale i pěstování okrasných rostlin či drobné zeleniny (rajčata, papriky). Z obývací části je vstup do menšího pokoje, jehož využití je velmi variabilní. Pokoj Vám může sloužit jako pracovna, šatna, domácí fitness nebo i jako dětský pokoj pro jedno dítě. Ložnice má pak samostatný vstup z prostor chodby. Koupelnové jádro je zděné, obložené příjemným keramickým obkladem. K dispozici je vana, umyvadlo a přípojka pro automatickou pračku. Toaleta je samostatná. Okna v bytě jsou plastová a na podlaze je položena dlažba nebo plovoucí podlahy. Vytápění bytu a ohřev teplé vody je dálkové. Velkým bonusem je pak společná a oplocená zahrada kolem domu, která Vám umožní letní posezení s přáteli a grilování, nebo se stane bezpečným místem pro hru Vašeho dítěte. V ceně nájemného je pak také právo užívat jedno venkovní parkovací stání. V zadní části tohoto bytového domu je navíc i velké veřejné a bezplatné parkoviště. V dané lokalitě je především velké množství zeleně a tedy velmi příjemná možnost vycházek do přírody, ale také veškerá, běžně dostupná infrastruktura. Do centra města je to pěší chůzí cca 10 minut, ale k dispozici je i MHD, autobus, vlak nebo nedaleký nájezd na dálnici D8 směr Praha či Drážďany. Velmi dobrá dopravní dostupnost Vám tedy umožní snadné dojíždění za případnou prací. Nájemné činí částku 15.200,-Kč, které je hrazené vždy na měsíc předem a bude tedy nutné uhradit při podpisu Nájemní smlouvy i první nájemné. Dále bude nájemce hradit energie a služby s užíváním tohoto bytu spojených, které činí zálohu ve výši 3.360,-Kč pro dvě osoby za měsíc. Odběr elektrické energie pak bude přepsán na nového nájemce, který si tak může sám sjednat výši jejich měsíčních záloh u vybraného obchodního poskytovatele energií. Vratná kauce byla stanovena na částku 30.400,-Kč. Bytová jednotka je volná k datu 1.2.2026 a bude novému nájemci předána nezařízena. Určena je, vzhledem ke své podlahové výměře, pro 2 dospělé osoby a případně jedno dítě. Vyžadováno bude doložení pracovní smlouvy nebo daňové přiznání (OSVČ). Pro více informací a sjednání prohlídky bytu (v prvních dnech měsíce ledna 2026), pak volejte realitní kancelář. Provize realitní kanceláře je ve výši 15.200,-Kč.

Pronájem bytu 3+1 65 m² Školní, Klášterec nad Ohří
Pronájem bytu 3+1 65 m² Školní, Klášterec nad Ohří Klášterec nad Ohří, Chomutov, Školní
12 500 Kč
3-pokoj 65 m² 3 tento

Pronájem bytu 3+1, který se nachází ve 2. patře zatepleného panelového domu v ulici Školní 496, Klášterec nad Ohří. Je zde kuchyňská linka, plynový sporák, vana s umyvadlem a WC. Na podlahách je položeno lino, dlažba a plovoucí podlaha. Byt je volný k nastěhování od 1.1.2026. Profesionální přístup k nájemníkům, smlouva a vyúčtování záloh je samozřejmostí. Cena pronájmu bytu činí 12 500, Kč/měsíc. Zálohy na služby spojené s užíváním bytu činí 2 000, Kč, za každou další osobu se připočítává 700, Kč. Elektřina a plyn jsou zavedeny, pouze se přepíší na nájemníka zálohy si nájemce určí sám. Je zde nutno složit 15 000, Kč kauci, poplatek za zprostředkování pronájmu ve výši 14 500, Kč a nájemné včetně záloh na služby dle počtu osob. Dále je nutno doložit pracovní smlouvu a výpis z evidence exekucí (možno zařídit na kterékoliv poště). Volejte Po Pá od 8:0019:00.

Pronájem bytu 3+1 60 m² Stránského, Litoměřice - Předměstí
Pronájem bytu 3+1 60 m² Stránského, Litoměřice - Předměstí Litoměřice, Předměstí, Stránského
16 000 Kč
3-pokoj 60 m² 1/3 tento

K pronájmu nabízíme prostorný byt 3+1 o velikosti 60 m² ve velmi žádané lokalitě Litoměřic. Byt je v 1. nadzemním podlaží udržovaného bytového domu a je k nastěhování od 1.1.2026. Nachází se ve vyhledávané části města s výbornou dostupností centra, parku, škol, školek i sportovišť. Ideální pro rodiny s dětmi i pro páry, kteří hledají pohodlné bydlení v příjemném prostředí. Před několika lety prošel i zdařilou rekonstrukcí. K bytu náleží 2 sklepní kóje. Prohlídky jsou po domluvě možné kdykoliv. Náklady na bydlení: nájemné: 16 000 Kč / měsíc + služby. Energie (elektřina, plyn): přepis na nájemníka kauce: 30.000 Kč provize RK: 16.000 Kč Byt je vhodný pro dlouhodobý pronájem.

Pronájem bytu 3+kk 60 m² Okružní, Roudnice nad Labem
Pronájem bytu 3+kk 60 m² Okružní, Roudnice nad Labem Roudnice nad Labem, Litoměřice, Okružní
14 000 Kč
3-pokoj 60 m² 2 tento

Dovolujeme si Vám nabídnout k pronájmu prostorný mezonetový byt v oblíbené lokalitě Roudnice nad Labem. Tento byt s dispozicí 3+kk je umístěn ve druhém patře cihlové budovy, která se pyšní velmi dobrým stavem. Poskytuje tak ideální kombinaci historického kouzla a moderního bydlení. Byt se nachází v družstevním vlastnictví, což přináší výhody v podobě nižších provozních nákladů a lepší péče o společné prostory. Díky svému mezonetovému uspořádání nabízí dostatek soukromí i komfortu pro rodinné či partnerské bydlení. Užitná plocha 60 m2 poskytuje funkční prostor pro pohodlné uspořádání interiéru. Měsíční náklady na bydlení jsou 14.000,-Kč bez záloh na služby které jsou (3.600,- pro dvě osoby), nájemník si na sebe převede pouze elektřinu. Kauce činí 28.000,- Provize realitní kanceláři 14.000,-Kč Prohlídky jsou možné po předchozí domluvě. Pro více informací o této nemovitosti nebo sjednání prohlídky nás prosím kontaktujte nebo vyplňte níže uvedený formulář, rádi Vám pomůžeme.

Pronájem bytu 3+1 66 m² Školní, Klášterec nad Ohří
Pronájem bytu 3+1 66 m² Školní, Klášterec nad Ohří Klášterec nad Ohří, Chomutov, Školní
13 500 Kč
3-pokoj 66 m² 6 tento

Pronájem krásného bytu 3+1, 66,1 m2, Klášterec nad Ohří, Školní 492 Nabízíme k pronájmu krásný byt 3+1, po kompletní rekonstrukci. Byt se nachází v 6. nadzemním podlaží (5. patře) panelového domu a disponuje novou kuchyňskou linkou se sklokeramickou varnou deskou, elektrickou pečící troubou, myčkou a digestoří. V koupelně se nachází sprchový kout, umyvadlo se skříňkou, koupelnová skříňka se zrcadlem a toaleta. Součástí pronájmu je i komora ve společných prostorách domu. Byt není vybaven nábytkem. Nájemné zde činí 13 500,- Kč, záloha na služby 2 500,- Kč pro 1 osobu + 500,- Kč každá další osoba. Vratná kauce je 25 000,- Kč. Při rezervaci se platí provize realitní kanceláři ve výši 16 000,- Kč. Elektřina se přepisuje na nájemce. Byt je volný ihned. V případě zájmu o prohlídku či více informací neváhejte kontaktovat makléře.

Pronájem bytu 3+kk 72 m² Kratochvílova, Roudnice nad Labem
Pronájem bytu 3+kk 72 m² Kratochvílova, Roudnice nad Labem Roudnice nad Labem, Litoměřice, Kratochvílova
17 000 Kč
3-pokoj 72 m² 2/3 tento

Pronájem bytu 3+kk s pracovnou, 72 m² - Kratochvílova ul., Roudnice nad Labem Kompletně zrekonstruovaný byt s parkováním ve dvoře a praktickou dispozicí, která umožní komfortní bydlení i práci z domova. Poblíž centra města v ulici Kratochvílova nabízíme k pronájmu byt o dispozici 3+kk doplněný o samostatnou pracovnu s příjemným výhledem. Byt o obytné ploše 72 m² prošel kompletní rekonstrukcí - od nových podlah, přes moderní kuchyňskou linku až po plně zrenovovanou koupelnu. Díky tomu poskytuje nájemcům čisté, funkční a pohodlné zázemí bez nutnosti dalších investic. Vstup do bytu je řešen netradičně bočním vchodem domu v průjezdu, což přináší více soukromí a pocit vlastního odděleného prostoru. Kuchyně je propojena s obývacím prostorem s možností jídelního koutu. Další dva pokoje doplňuje samostatná pracovna - ideální pro ty, kteří pracují z domova nebo potřebují klidné místo pro studium. Velkou výhodou je vlastní parkovací stání přímo ve dvoře domu. Další možnosti parkování jsou k dispozici na přilehlém parkovišti supermarketu Billa. Dům je navíc vybaven úpravnou vody, která zvyšuje komfort užívání a eliminuje problémy s tvrdou vodou. Lokalita - Roudnice nad Labem Roudnice nad Labem je město ležící na levém břehu řeky Labe pod památnou horou Říp v okrese Litoměřice. V Roudnici nad Labem je perfektní občanská vybavenost a skvělá dopravní dostupnost - vše je v dosahu chůze: MHD, vlak, autobus. Okolní příroda je ideální pro relaxaci a sportovní aktivity, jako jsou procházky podél řeky Labe, projížďky po Labské cyklostezce, slalomový kanál či YCR - Jachting Roudnice nad Labem. K rekreaci slouží také rekreační středisko Pod lipou. Díky výbornému spojení po dálnici D8 se můžete dostat do Prahy za 30 minut autem, nebo jedním z mnoha autobusových spojů. Město má také přímé vlakové spojení na Prahu. Plánovaná vysokorychlostní trať ještě více zatraktivní město. Měsíční nájemné činí 17.000 Kč. K této částce se hradí zálohy na služby: 2.000 Kč teplo, vodné 700 Kč, elektřina 1.300 Kč. Při podpisu nájemní smlouvy splatná kauce 2x nájem. Provize RK se neplatí, hradní majitel. Majitel si vyhrazuje právo vybrat si nájemce dle vlastních kritérií. Kontaktujte makléře pomocí odpovědního formuláře u inzerátu, případně e-mail a dohodněte si termín prohlídky.

Pronájem bytu 3+1 73 m² Terezínská, Lovosice
Pronájem bytu 3+1 73 m² Terezínská, Lovosice Lovosice, Litoměřice, Terezínská
16 500 Kč
3-pokoj 73 m² 5/5 tento

Nabízíme k pronájmu prostorný světlý byt 3+1 o rozloze 73 m2 v žádané lokalitě Lovosic, ul. Terezínská. Byt se nachází ve 4.patře cihlového domu bez výtahu. Byt je ve výborném stavu, po kompletní rekonstrukci a nabízí se zařízený pouze s kuchyňskou linkou s kombinovaným sporákem. Ostatní vybavení si nový nájemník může dovybavit dle vlastních představ. Dispozice bytu: - prostorná vstupní chodba - samostatný pokoj - další pokoj průchozí do třetího (vhodné jako ložnice + dětský pokoj/pracovna) - kuchyň - koupelna s vanou a WC K bytu náleží sklepní kóje a možnost využít kočárkárny/kolárny v domě. Byt se nachází v klidné a velmi dostupné části města. V docházkové vzdálenosti veškerá občanská vybavenost - supermarket, školy, školky, pošta, zdravotní středisko, restaurace i městská doprava. Do centra Lovosic i na vlakové nádraží je to pár minut chůze. Lokalita nabízí také blízkost parků, dětských hřišť a rychlý nájezd na dálnici D8. Vhodné pro pár nebo pro rodinu s dětmi. K nastěhování ihned.

Pronájem bytu 3+1 60 m² Vrchlického, Litoměřice - Předměstí
Pronájem bytu 3+1 60 m² Vrchlického, Litoměřice - Předměstí Litoměřice, Předměstí, Vrchlického
13 000 Kč
3-pokoj 60 m² 4/4 tento

Realitní kancelář RENO Vám v exkluzivním zastoupení majitele nemovitosti zprostředkuje pronájem bytu 3+1 s lodžií nedaleko historického centra města Litoměřice. Hledáte byt, který spojuje klidné bydlení s výbornou dostupností centra? Tento prosvětlený byt o velikosti cca 60 m² s balkonem a výhledem do zeleně je ideální volbou. Nachází se jen pár kroků od městského parku, s MHD zastávkou doslova za rohem. Byt prošel částečnou modernizací: má nově zrekonstruovanou koupelnu a WC, nové podlahové krytiny a dveře, repasovanou kuchyňskou linku. Najdete jej ve 3. patře kompletně revitalizovaného panelového domu. Dispozice je velmi praktická - tři pokoje, kuchyně ve tvaru L, koupelna, šatna a prostorná předsíň. Zděná koupelna je vybavena sprchovým koutem, umyvadlem se skříňkou, zrcadlovou skříňkou, toaletou a přípojkou na pračku. V kuchyni je kombinovaný sporák a zachovalá linka s repasovanými dvířky. Předsíň nabízí samostatnou šatnu. K bytu náleží také komora v mezipatře a plechová kóje u vstupu do budovy. Momentálně probíhá výměna interiérových dveří - nové bílé dveře dodají bytu svěží vzhled. Měsíční náklady na bydlení rádi sdělíme na vyžádání podle počtu osob. Provize: 13 000 Kč.

Pronájem bytu 3+kk 56 m² Prokopa Holého, Lovosice
Pronájem bytu 3+kk 56 m² Prokopa Holého, Lovosice Lovosice, Litoměřice, Prokopa Holého, 27
19 000 Kč
3-pokoj 63 m² 1/3 tento

Dovoluji si Vám nabídnout k pronájmu pečlivě udržovanou bytovou jednotku o dispozici 3+kk, a výměře 55,30 m2, která se nachází na adrese Prokopa Holého 889/27 v Lovosicích. Bytová jednotka je ve zvýšeném přízemí cihlového domu. K domu náleží i travnatá plocha, jenž se dá použít k odpočinku, případně si zde mohou hrát děti. Bytový dům je nově zateplen i zastřešen a energetická náročnost budovy je C. Dům se nachází velmi blízko centra Lovosic, dále je poblíž supermarket, vlakové a autobusové nádraží, mateřská školka, dětské hřiště a v neposlední řadě krytý bazén. Nájezd na dálnici D8 směr Praha/Ústí n. Labem je vzdálený zhruba 5 minut jízdy. Veřejné parkování je možné přímo u domu nebo v Žižkově ulici. Bytová jednotka prošla před 16 lety rekonstrukcí, a je ve velice dobrém stavu. Ve dvou místnostech jsou zachovalé parketové podlahy a v jedné plovoucí podlaha. V kuchyni, koupelně a v předsíni je dlažba. Byt je nabízen částečně vybavený. Ve výbavě najdete kuchyňskou linku s myčkou nádobí, sklokeramickou varnou desku, elektrickou troubu, mikrovlnnou troubu a lednici s mrazákem. V koupelně pak automatickou pračku, sprchový kout a WC s umyvadlem. V koupelně se také nachází plynový kotel, zajišťující vytápění bytu a ohřev vody, jenž umožňuje korigovat vytápění a ohřev dle uvážení nájemce. V bytě se již nachází dvě velké skříně kam si může potenciální nájemce uložit své věci a také psací stůl. Dále jako úložný prostor slouží botník a policové skříňky. K bytové jednotce náleží i laťková sklepní kóje. Možnost nastěhování od 1.1. 2026 nebo po předchozí domluvě. Nájemné: 19.000,- Kč za měsíc, cena k jednání. Přepis elektřiny a plynu na nájemce. Pokud Vás byt zaujal, neváhejte mě kontaktovat ráda Vám vše ukážu osobně.

Pronájem bytu 3+1 78 m² Vrchlického, Roudnice nad Labem
Pronájem bytu 3+1 78 m² Vrchlického, Roudnice nad Labem Roudnice nad Labem, Litoměřice, Vrchlického
15 000 Kč
3-pokoj 78 m² 1 tento

Nabízíme vám pronájem bytové jednotky o 78 m2 na žádaném místě města Roudnice nad Labem. Vybavený byt s dispozičním řešením 3+1 je po rekonstrukci, nachází v prvním patře cihlového domu se čtyřmi bytovými jednotkami. Součástí bytové jednotky je sklep poskytující další úložné možnosti. Parkování přímo u domu. Měsíční nájemné činí 15 000,- Kč, služby spojené s užíváním 2 000,- Kč měsíčně, kauce v hodnotě dvou nájmů a provize RK. Energie budou přepsány na nájemce (elektrika a plyn cca 2 500,- Kč) Neváhejte mě kontaktovat pro sjednání prohlídky.

Pronájem bytu 3+1 66 m² Školní, Klášterec nad Ohří
Pronájem bytu 3+1 66 m² Školní, Klášterec nad Ohří Klášterec nad Ohří, Chomutov, Školní
13 500 Kč
3-pokoj 66 m² 6 tento

Pronájem bytu 3+1, který se nachází ve 5. patře zatepleného panelového domu v ulici Školní 498, Klášterec n. Ohří. Příjemný, slunný a čistý byt je po celkové rekonstrukci. Byt je volný k nastěhování od IHNED. Profesionální přístup k nájemníkům, smlouva a vyúčtování záloh je samozřejmostí. Cena pronájmu bytu činí 13 500, Kč/měsíc a poplatky spojené s užíváním bytu za 1 osobu činí 2000, Kč (každá další osoba 700, Kč navíc). Kauce ve výši 15 000, Kč a poplatek za zprostředkování pronájmu ve výši 15 500, Kč. Důležitou podmínkou k pronájmu je pracovní smlouva a čistý výpis z evidence exekucí, který lze získat na kterékoliv poště. Plyn a elektřina jsou zařízeny, pouze se přepíší na nájemníka. Volejte v pracovní dny od 8,00 19,00 hod.

Pronájem bytu 3+kk 127 m² Dlouhá, Litoměřice
Pronájem bytu 3+kk 127 m² Dlouhá, Litoměřice Litoměřice, Dlouhá
22 800 Kč
3-pokoj 127 m² 2 tento

Nabízíme pronájem velice pěkného, celkově zrekonstruovaného a částečně zařízeného bytu o celkové velikosti 127m2, který se nachází nedaleko Mírového náměstí v Litoměřicích. Klimatizovaný byt o dispozici 3+kk je situován v podkroví třípodlažního domu v centru města. Do bytu se dostanete po schodišti, dále do vstupní chodby a následně do velkého obývacího pokoje s plně vybaveným kuchyňským koutem, pracovním ostrůvkem a jídelním koutem. Vedle kuchyňské linky je samostatná spíž. Z centrálního obývacího pokoje kde je umístěn krb je vstup do dalších dvou pokojů a do koupelny. Koupelna je vybavena vanou a sprchovým koutem, umyvadlem, pračkou a sušičkou a je zde vstup na samostatné wc. V koupelně je dále umístěn nový plynový kotel, kterým je zajištěno vytápění a ohřev vody, v celém bytě jsou nová okna a kvalitní vinylové podlahy. K bytu dále náleží sklad, velká půda a sklep. Zajímavostí bytu jsou dvě velká výklopná okna s vyhlídkou. Parkování je možno přímo před domem. Litoměřice jsou městem s plnou občanskou vybaveností a skvělou dopravní dostupností. Ve městě a okolí je velké možnosti sportovního a kulturního vyžití. Nájemné činí 22.800,-Kč/ měsíčně a zálohy na služby 5.000,-Kč. Při podpisu nájemní smlouvy se skládá vratná kauce ve výši 45.000,- Kč a provize RK V případě zájmu o bližší informace kontaktujte makléře.

Pronájem bytu 3+1 71 m² Luční, Klášterec nad Ohří - Miřetice u Klášterce nad Ohří
Pronájem bytu 3+1 71 m² Luční, Klášterec nad Ohří - Miřetice u Klášterce nad Ohří Klášterec nad Ohří, Chomutov, Miřetice u Klášterce nad Ohří, Luční
12 000 Kč
3-pokoj 71 m² 5/9 tento

Nabízíme k pronájmu prostorný byt 3+1 o užitné ploše 71 m², situovaný v klidné části Klášterce nad Ohří. Byt se nachází ve 4. patře panelového domu s výtahem a bezbariérovým přístupem. Nemovitost je ve velmi dobrém stavu a skládá se z velké světlé chodby, tří pokojů, kdy jednomu z nich náleží prostorná lodžie, kuchyně s rohovou linkou, koupelny s vanou a samostatného WC. K dispozici je sklep. V blízkosti domu naleznete veškerou občanskou vybavenost. Podmínkou pronájmu je doložení pracovní smlouvy a výpisu z exekucí. Majitel preferuje zájemce o dlouhodobý pronájem. Pro více informací, či prohlídku kontaktujte realitního makléře.

Pronájem bytu 3+kk 84 m² Vchynice
Pronájem bytu 3+kk 84 m² Vchynice Vchynice, Litoměřice
19 700 Kč
3-pokoj 84 m² 1/2 tento

Nabízíme k pronájmu velmi prostorný a originálně řešený byt v rodinném domě, který má pouze dvě bytové jednotky - tedy naprostý klid a soukromí. Byt zaujme hned na první pohled svou jedinečnou architekturou - různá podloubí, zákoutí a dlouhá chodba, která se dá skvěle využít třeba jako pracovna nebo relaxační zóna. Dominantou bytu je velká kuchyň propojená s obývacím prostorem, moderní koupelna a další dva samostatné pokoje. Všude působí útulně a vzdušně, ideální pro ty, kdo hledají něco víc než jen běžný byt. Před domem je možnost využití společné zahrádky, kde si můžete posedět nebo odpočinout. K bytu také patří prostor na uskladnění věcí - menší sklep vhodný například na dřevo, pneumatiky nebo sportovní vybavení. Holý nájem bytu je 19 700,- Kč, Voda na osobu je 700,- Kč a elektřina 5900,-Kč/ měsíc. Majitel požaduje kauci ve výši 40 000,- Kč. Pokud máte jakýkoliv dotaz, neváhejte mne kontaktovat. Ev. číslo: 652963.

Pronájem bytu 3+1 57 m² Školní, Klášterec nad Ohří
Pronájem bytu 3+1 57 m² Školní, Klášterec nad Ohří Klášterec nad Ohří, Chomutov, Školní
13 500 Kč
3-pokoj 66 m² 7/7 tento

Nabízíme k pronájmu světlý a prostorný byt 3+1 o velikosti 66 m, který se nachází v 7. podlaží panelového domu v klidné části Klášterce nad Ohří. Byt je volný ihned a připravený k nastěhování. Byt disponuje praktickou dispozicí, prostorným obývacím pokojem, dvěma ložnicemi, kuchyní a koupelnou s toaletou. Díky vyššímu patru nabízí krásný výhled a dostatek denního světla. Nájemné: 13 500 Kč / měsíc Služby: 5 500 Kč / měsíc pro jednu osobu (každá další osoba +900 Kč) Kauce: 20 000 Kč Provize RK: 13 000 Kč Volný ihned Byt je ideální pro jednotlivce, pár nebo rodinu, kteří hledají klidné bydlení s dobrou dostupností do centra města i přírody. Více informací na uvedeném telefonním čísle Těšíme se na viděnou

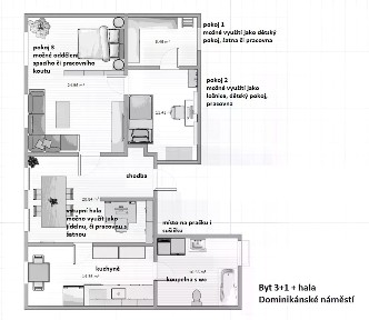
Pronájem bytu 3+1 89 m² Dominikánské náměstí, Litoměřice - Litoměřice-Město
Pronájem bytu 3+1 89 m² Dominikánské náměstí, Litoměřice - Litoměřice-Město Litoměřice, Litoměřice-Město, Dominikánské náměstí
13 700 Kč
3-pokoj 89 m² 2/4 tento

Realitní kancelář RENO Vám zprostředkuje pronájem zrekonstruovaného bytu 3+1 s halou (možné využít také jako 4+1) v historickém centru města Litoměřice. REZERVACE!Byt o výměře cca 89 m2 se nachází v prvním patře zrekonstruovaného historického domu. Dispozičně je řešen dvěma pokoji, menším pokojem využitelným jako šatna, dětský pokojíček či pracovna. Srdcem bytu je prostorná vstupní hala s variabilním využitím. Samostatná kuchyň je vybavena stylovou kuchyňskou linkou s vestavěným elektrickým sporákem a digestoří. Moderní koupelna s oknem do dvora nabízí dostatek prostoru pro pračku i sušičku a koupelnový nábytek, součástí je sanitární zařízení. Byt působí velmi světleným dojmem a dispozičně nabízí mnoho různých řešení. Nájemné: 13.700,- Kč + zálohy na energie a služby (vodné-stočné, topení, elektřina a úklid spol. prostor: 3.500,- Kč) + elektřina na nájemce Jistota (vratná kauce) 27.000,- Kč Provize RK: 13.000,- Kč Energetický průkaz budovy se zpracovává, do doby vypracování jsme nuceni udávat energetickou třídu G.

Pronájem bytu 3+1 70 m² Snědovice - Sukorady
Pronájem bytu 3+1 70 m² Snědovice - Sukorady Snědovice, Litoměřice, Sukorady
12 000 Kč
3-pokoj 70 m² 3/5 tento

Nabízíme k pronájmu velkorysý byt 3+1 o užitné ploše 70 m² ve vyhledávané a klidné části obce Sukorady. Byt nachází ve 2. patře cihlového domu. Byt prošel kompletní a zdařilou rekonstrukcí, která zajišťuje moderní a komfortní bydlení. Topení zajišťují dva zdroje, elektrické moderní přímotopy a krbová kamna. Ideální pro rodinu nebo pár, kteří ocení klidné prostředí obklopené přírodou. Měsíční nájemné činí 12.000,- Kč, poplatky pro dvě osoby 3.000,- Kč, elektřinu si nájemce převádí na sebe. Kauce je stanovena na 24.000,- Kč a provize RK činí 10.000,- Kč. Neváhejte a domluvte si prohlídku tohoto atraktivního bydlení!

Pronájem bytu 3+1 67 m² Jungmannova, Litoměřice - Předměstí
Pronájem bytu 3+1 67 m² Jungmannova, Litoměřice - Předměstí Litoměřice, Předměstí, Jungmannova, 1
14 000 Kč
3-pokoj 67 m² 2/3 tento

K pronájmu nabízíme prostorný, světlý byt 3+1 o velikosti 67 m² ve velmi žádané lokalitě Litoměřic. Byt se nachází ve 2. nadzemním podlaží udržovaného bytového domu a je k nastěhování ihned. Klidná a vyhledávaná část města s výbornou dostupností centra, parku, škol, školek i sportovišť. Ideální pro rodiny s dětmi i pro páry, kteří hledají pohodlné bydlení v příjemném prostředí. Byt disponuje zasklenou lodžií s výhledem do zeleně. Dále k bytu náleží sklepní kóje a spíž na chodbě. Byt je po částečné rekonstrukci, velmi udržovaný a čistý k nastěhování ihned Náklady na bydlení: nájemné: 14 000 Kč / měsíc + služby. Energie (elektřina, plyn): přepis na nájemníka kauce: 2× měsíční nájem provize RK: ve výši jednoho měsíčního nájmu Byt je vhodný pro dlouhodobý pronájem.

Pronájem bytu 3+kk 90 m² Velemín - Oparno
Pronájem bytu 3+kk 90 m² Velemín - Oparno Velemín, Litoměřice, Oparno
19 000 Kč
3-pokoj 90 m² 1 tento

Nabízíme pronájem zrekonstruovaného apartmánu k trvalému bydlení i rekreaci v malebné přírodě v obci Opárno nedaleko Lovosic v centru Českého středohoří. Opárno je vyhledávanou rekreační oblastí na úpatí hory Lovoš. Do Lovosic, spádového města s veškerou občanskou vybaveností a velkým množstvím pracovních možností se dostanete za 5 min. Sjezd dálnice D8 (Praha-Drážďany) je vzdálen od Opárna 2,5 km. Do okresního a královského město Litoměřice je 15 km. Apartmán se nachází v přízemí bytového domu (bývalý penzion kolaudovaný r.2002) o celkem 5 jednotkách. Jednotka je po kompletní rekonstrukci, která probíhala v průběhu roku 2022. Okna jsou plastová, podlahy pokryty dlažbou. Nové rozvody vody a elektřiny. Koupelna se sprchovým koutem, společná s WC. Nová kuchyňská linka na míru včetně spotřebičů. Nové bezpečnostní vchodové dveře, nové veškeré interiérové dveře skleněné posunovací, laminátové s panty, včetně zárubní. Veškeré vybavení je moderní a nové, zařízeno s vkusem a elegancí. Topení je centrální pro celý objekt, vytápí se kotlem na topný olej. Teplá voda je zajištěna individuálním el. bojlerem. Apartmán má dispozici 3 kk o podlahové ploše 47 m2. Z kuchyně se vchází na krytou rozlehlou terasu o výměře 43 m2, která je vzhledem k tomu, že je dům postaven ve stráni, v úrovni prvního podlaží a tudíž poskytuje krásný výhled na okolní přírodu a pocit většího bezpečí. K apartmánu náleží sklep, společná místnost jako komora. Pozemek okolo domu má celkovou výměru 1.291 m2 a je možno jej využívat. Vlastní parkovací místo. Měsíční nájemné je 14.000Kč plus zálohy na teplo a studenou vodu cca 5.000Kč, celkové nájemné tedy činí 19.000Kč, plus individuální spotřeba el. energie. Kauce pro majitele po dohodě a provize pro RK 1 měsíční nájem bez záloh na energie. Volné od 1.10.2025. Pro případné další info a prohlídky volejte makléři.

Otevřít mapu Mapa